RUIME TWEE-ONDER-EEN-KAPWONING MET GARAGE IN RHOON
Soms stap je een huis binnen en voelt het meteen goed. De ruimte, het licht, de rust — alles valt op zijn plek.
Zilvermijn 29 in Rhoon is zo’n woning. Een fijne gezinswoning waar geleefd kan worden, met genoeg ruimte voor ieder gezinslid en een prettige balans tussen binnen en buiten. Hier woon je rustig, comfortabel en met alles wat je nodig hebt binnen handbereik.
ENGLISH VERSION BELOW
Op een rustige en prettige locatie in Rhoon staat deze goed onderhouden twee-onder-een-kapwoning uit 2009. De woning beschikt over circa 170 m² woonoppervlakte, vier slaapkamers, een ruime woonkamer met gashaard, vloerverwarming op de begane grond, een verzorgde tuin en een geïsoleerde garage. Een praktische woning met een fijne indeling, geschikt voor wie op zoek is naar ruimte en comfort — nu én in de toekomst.
WIJK & OMGEVING – RHOON-PORTLAND
De woning is gelegen in de geliefde en ruim opgezette wijk Rhoon-Portland. Een rustige en groene woonwijk die bekendstaat om haar kindvriendelijke karakter en prettige leefomgeving. In de directe omgeving vind je basisscholen, kinderopvang, sportverenigingen en diverse speel- en wandelmogelijkheden.
Voor dagelijkse boodschappen kun je terecht in winkelcentrum Portland en het dorpscentrum van Rhoon, met supermarkten, speciaalzaken en verschillende restaurants en lunchgelegenheden.
De bereikbaarheid is uitstekend: metrostation Rhoon (lijn D richting Rotterdam) ligt op korte afstand en ook de uitvalswegen richting de A15 en A29 zijn snel bereikbaar.
ALGEMEEN
• Woonoppervlakte: ca. 170 m²
• Perceeloppervlakte: ca. 290 m²
• Bouwjaar: 2009
• Energielabel: A
• Zonnepanelen
• Volledig geïsoleerd
• Verwarming en warm water via cv-installatie
• Vloerverwarming op de begane grond
• Gashaard in de woonkamer
• Vliering (stahoogte) bereikbaar via vaste trap
BEGANE GROND
De entree geeft toegang tot de hal met toilet en trapopgang. De woonkamer is ruim, licht en vormt het hart van de woning. De gashaard zorgt voor sfeer en warmte, terwijl de vloerverwarming bijdraagt aan het comfort.
De open keuken sluit prettig aan op de woonkamer en biedt voldoende ruimte om te koken en samen te zijn. Vanuit de woonkamer is er directe toegang tot de tuin.
EERSTE VERDIEPING
Op de eerste verdieping bevinden zich twee ruime slaapkamers en een complete badkamer. De badkamer is uitgerust met een ligbad, inloopdouche, dubbele wastafel, toilet en vloerverwarming. Verzorgd en praktisch ingericht.
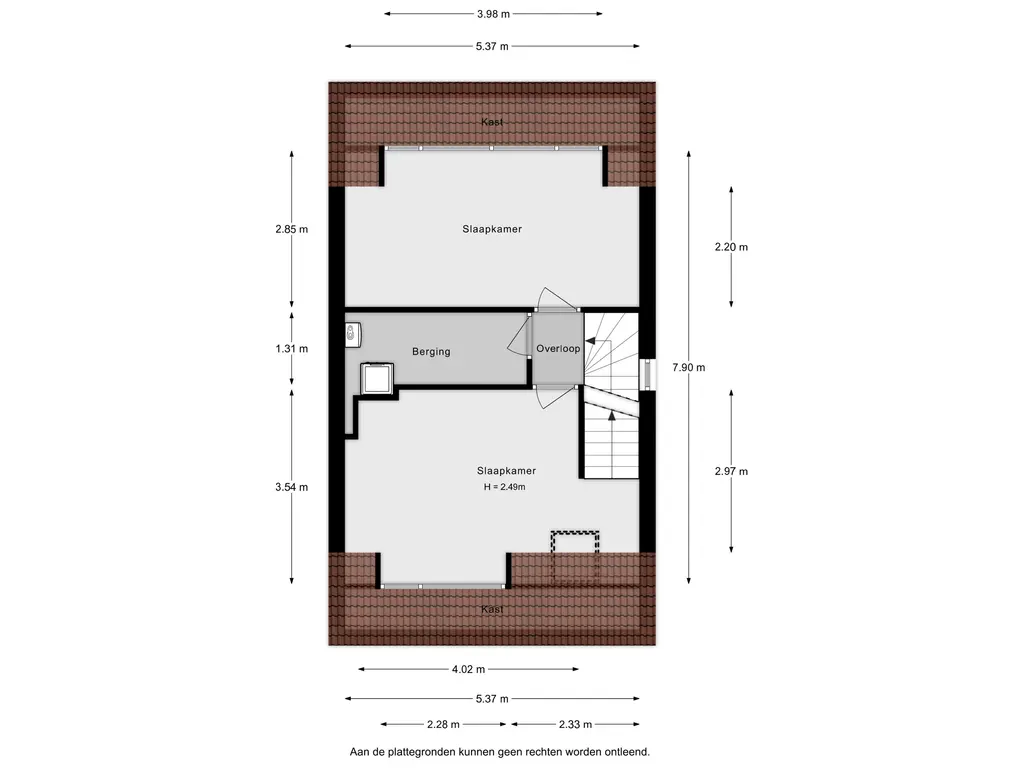
TWEEDE VERDIEPING
De tweede verdieping beschikt over nog twee volwaardige slaapkamers. Deze ruimtes zijn geschikt als kinder-, werk- of logeerkamers en maken de woning zeer geschikt voor gezinnen en thuiswerkers.
VLIERING
Vanuit de slaapkamer op zolder (voorzijde) is de vliering bereikbaar door middel van een vaste trap. De vliering heeft stahoogte en kan gebruikt worden als speelhoek of bergruimte.
TUIN
De heerlijke tuin, 127 m2, is gelegen op het oosten, maar biedt dankzij de open ligging de hele dag zon. Een fijne en ruime buitenplek om te ontspannen, te spelen of gezellig buiten te zitten.
Daarnaast beschikt de woning over een praktische zij-ingang/-uitgang. Ook is er een vrijstaande houten berging met elektra aanwezig.
GARAGE & EXTRA MOGELIJKHEDEN
De geïsoleerde garage is voorzien van verwarming, elektra, water en een elektrische garagedeur. Deze ruimte is geschikt voor meerdere doeleinden, zoals parkeren, opslag of werken aan huis. Met de juiste aanpassingen en vergunningen zijn er tevens mogelijkheden om de ruimte bij het wonen te betrekken, bijvoorbeeld voor mantelzorg of kangoeroewonen.
Parkeren kan op eigen terrein en in de directe omgeving is voldoende openbare parkeergelegenheid. Op straat is een laadpaal voor elektrische auto’s aanwezig.
BIJZONDERHEDEN
• Ruime twee-onder-een-kapwoning
• Vier slaapkamers
• Woonkamer met gashaard
• Vloerverwarming op de begane grond en in de badkamer
• Zonnepanelen
• Energiezuinig (label A); label van voor plaatsing zonnepanelen
• Zonnige tuin met zij-ingang
• Geïsoleerde garage met extra gebruiksmogelijkheden
• Oplevering begin mei 2026
BEZICHTIGEN OF MEER INFORMATIE
Benieuwd of deze woning bij je past? Neem gerust contact met ons op voor een bezichtiging.
Denk je daarnaast na over het verkopen van je eigen woning? We geven je graag vrijblijvend inzicht in de waarde en denken met je mee over een doordachte en realistische verkoopaanpak, passend bij jouw situatie en de actuele markt.
MAKELAARS
Libby Voormeulen
Raymond Kempen
REMAX Totaal Makelaars
www.makelaarv.nl
www.remax-totaal.nl
libbyvoormeulen@remax.nl
raymondkempen@remax.nl
AANSPRAKELIJKHEID
Deze informatie is met zorg samengesteld. Aan eventuele onjuistheden of onvolledigheden kunnen geen rechten worden ontleend. Alle opgegeven maten, oppervlakten en inhoud zijn indicatief.
De koper wordt geadviseerd de voor hem/haar belangrijke zaken zelf te onderzoeken of te laten onderzoeken. De makelaar aanvaardt geen aansprakelijkheid voor eventuele afwijkingen.
ENGLISH VERSION
SPACIOUS SEMI-DETACHED FAMILY HOME WITH GARAGE IN RHOON
Sometimes you walk into a house and it simply feels right. The space, the light, the calm — everything falls into place.
Zilvermijn 29 in Rhoon is one of those homes. A comfortable family house with plenty of room for everyone and a pleasant balance between indoor and outdoor living. A place where you can live peacefully, comfortably, and with all daily amenities close at hand.
Situated in a quiet and pleasant residential area, this well-maintained semi-detached home was built in 2009. The property offers approximately 170 m² of living space, four bedrooms, a spacious living room with gas fireplace, underfloor heating on the ground floor, a well-kept garden and an insulated garage. A practical and comfortable home, suitable for those looking for space now and in the future.
NEIGHBOURHOOD & SURROUNDINGS – RHOON-PORTLAND
The property is located in the popular and spacious residential area of Rhoon-Portland. This green and family-friendly neighbourhood is known for its calm atmosphere and pleasant living environment. Schools, childcare facilities, sports clubs and various playgrounds and walking areas can be found nearby.
For daily shopping you can visit shopping centre Portland or the charming village centre of Rhoon, offering supermarkets, specialty shops, restaurants and lunch spots.
Accessibility is excellent: Rhoon metro station (line D towards Rotterdam) is within easy reach, and the A15 and A29 motorways provide quick connections to Rotterdam, The Hague and beyond.
GENERAL
• Living area: approx. 170 m²
• Energy label: A
• Fully insulated
• Central heating system
• Underfloor heating on the ground floor
• Gas fireplace in the living room
• Loft (standing height), accessible via a fixed staircase
GROUND FLOOR
The entrance hall provides access to the toilet and staircase. The living room is spacious and bright and forms the heart of the home. The gas fireplace adds warmth and atmosphere, while underfloor heating ensures comfort throughout the year.
The open kitchen connects seamlessly to the living area and offers ample space for cooking and spending time together. From the living room there is direct access to the garden.
FIRST FLOOR
The first floor features two spacious bedrooms and a complete bathroom. The bathroom is equipped with a bathtub, walk-in shower, double washbasin, toilet and underfloor heating. Neatly finished and practically laid out.
SECOND FLOOR
On the second floor you will find two additional full-sized bedrooms. These rooms are ideal as children’s bedrooms, guest rooms or home offices, making the house very suitable for families and people working from home.
LOFT
From the attic bedroom at the front of the house, the loft is accessible via a fixed staircase. The loft has full standing height and can be used as a play area or for storage.
GARDEN
The spacious and pleasant garden of approximately 127 m² is east-facing, yet thanks to its open position it enjoys sunlight throughout the day. A comfortable and generous outdoor space to relax, play or enjoy time outside together.
GARAGE & ADDITIONAL OPTIONS
The insulated garage is equipped with heating, electricity, water and an electric door. This space is suitable for various purposes such as parking, storage or a home workspace. Subject to the necessary permits and adjustments, it may also be possible to integrate the space into the living area, for example for informal care or multi-generational living.
Parking is available on private property and in the surrounding area. A public charging point for electric vehicles is located on the street.
KEY FEATURES
• Spacious semi-detached family home
• Four bedrooms
• Living room with gas fireplace
• Underfloor heating on the ground floor and in the bathroom
• Energy-efficient (label A)
• Sunny garden with side access
• Insulated garage with multiple use options
• Transfer around 1 May 2026
VIEWING OR MORE INFORMATION
Curious whether this home suits your needs? Please feel free to contact us to arrange a viewing.
Are you also considering selling your current home? We are happy to provide a free, no-obligation valuation and think along with you about a clear and well-considered sales strategy, tailored to your situation and the current market.
REAL ESTATE AGENTS
Libby Voormeulen
Raymond Kempen
RE/MAX Totaal Makelaars
www.makelaarv.nl
www.remax-totaal.nl
libbyvoormeulen@remax.nl
raymondkempen@remax.n




















































