Charmante jaren ’30 parterrewoning met lichte woonkamer, ruime woonkeuken en twee tuinen, gelegen in het populaire Voorburg-West op loopafstand van alle voorzieningen.
In Voorburg-West, een geliefde en centraal gelegen woonomgeving, ligt deze karakteristieke parterrewoning uit de jaren ’30. De woning beschikt over een lichte woonkamer met erker, een ruime woonkeuken, twee slaapkamers, een kelder en zowel een achtertuin als een zonnige voortuin met veel privacy.
De locatie is ideaal: op loopafstand van de Herenstraat, station Voorburg en park Sonnenburgh. Het centrum van Den Haag ligt op korte fietsafstand en de uitvalswegen richting Amsterdam, Rotterdam en Utrecht zijn snel bereikbaar.
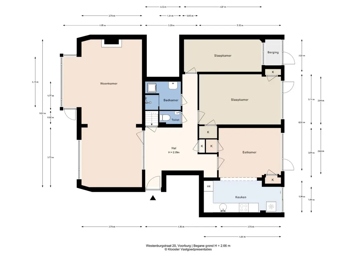
Indeling
Bij aankomst valt meteen de ruime, verzorgde voortuin op die de woning een uitnodigende uitstraling geeft. Via het gedeelde portiek stap je binnen in de ruime hal die toegang geeft tot alle vertrekken. Aan de voorzijde ligt de lichte woonkamer over de volledige breedte van de woning. De erker met openslaande deuren naar de voortuin zorgt voor veel daglicht en een charmante sfeer, terwijl de glas-in-looddetails tussen hal en woonkamer extra karakter toevoegen.
Aan de achtertuinzijde bevindt zich de royale woonkeuken. Deze ruimte is flexibel in te delen en biedt de mogelijkheid om de eetkamer eenvoudig af te sluiten en te gebruiken als extra slaapkamer, afhankelijk van je woonwensen.
Naast de eetkamer liggen de twee bestaande slaapkamers, beide aan de rustige achterzijde. Een van de kamers beschikt over een praktische aanbouw waar een extra ruimte is gecreëerd door middel van een berging.
De badkamer is praktisch ingericht met een douche, wastafel en radiator. Het separate toilet ligt direct naast de badkamer. Vanuit de hal is bovendien de kelder bereikbaar. Deze heeft stahoogte en biedt ruime mogelijkheden voor opslag.
De achtertuin is speels ingedeeld en biedt veel privacy, waardoor je hier op elk moment van de dag prettig kunt verblijven.
Bijzonderheden
– Jaren ’30 benedenwoning met karakteristieke details
– Woonlaag met voor- en achtertuin
– Kelder op stahoogte
– Eigen grond
– Dubbel glas aanwezig
– Energielabel D
– Actieve VvE
– Rustige en centrale ligging in Voorburg-West
– Oplevering in overleg



















































