Ruime en goed onderhouden maisonnette met zonnige voortuin in geliefde wijk “Ter Leede” – Barendrecht
Op een groene en rustige locatie, met een zonnige voortuin mogen wij je deze royale en verzorgde maisonnette aanbieden.
Gelegen in de populaire wijk Ter Leede, bekend om haar centrale ligging, brede opzet, kindvriendelijke karakter en degelijke bouw, is dit een plek waar je je direct thuis zult voelen.
De woning beschikt over een lichte woonkamer met twee Franse balkons, een nette open keuken, toiletruimte op de eerste verdieping, twee ruime slaapkamers waarvan één met dakkapel, een verzorgde badkamer en een praktische stook-/wasruimte.
In de directe omgeving vind je alles wat je nodig hebt: scholen, supermarkten, winkels, sportverenigingen, horeca, recreatiegebied de Zuidpolder, én uitstekende verbindingen met het openbaar vervoer en uitvalswegen.
Zie jij jezelf hier net zo fijn wonen als de huidige eigenaar? Dan nodigen we je van harte uit voor een bezichtiging op maat.
Indeling
Begane grond
Toegang tot de woning via de verzorgde voortuin, voorzien van sierbestrating, plantenbakken en buitenverlichting.
Entree met hal, meterkast, praktische trapkast en trapopgang naar de verdieping.
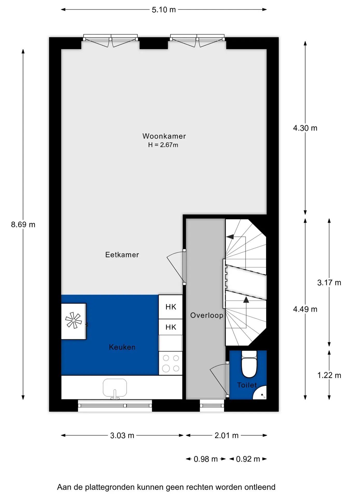
Eerste verdieping
Overloop met toegang tot de toiletruimte en trapopgang naar de tweede verdieping.
De toiletruimte is volledig betegeld en voorzien van een duoblok toilet en fonteintje.
Ruime, lichte woonkamer met dubbele Franse balkons aan de achterzijde, die zorgen voor een fijne lichtinval.
Aan de voorzijde bevindt zich de nette open keuken in L-opstelling, uitgerust met:
Inductie kookplaat
Afzuigkap
Spoelbak
Vriijstande koel-/vriescombinatie
Vaatwasser
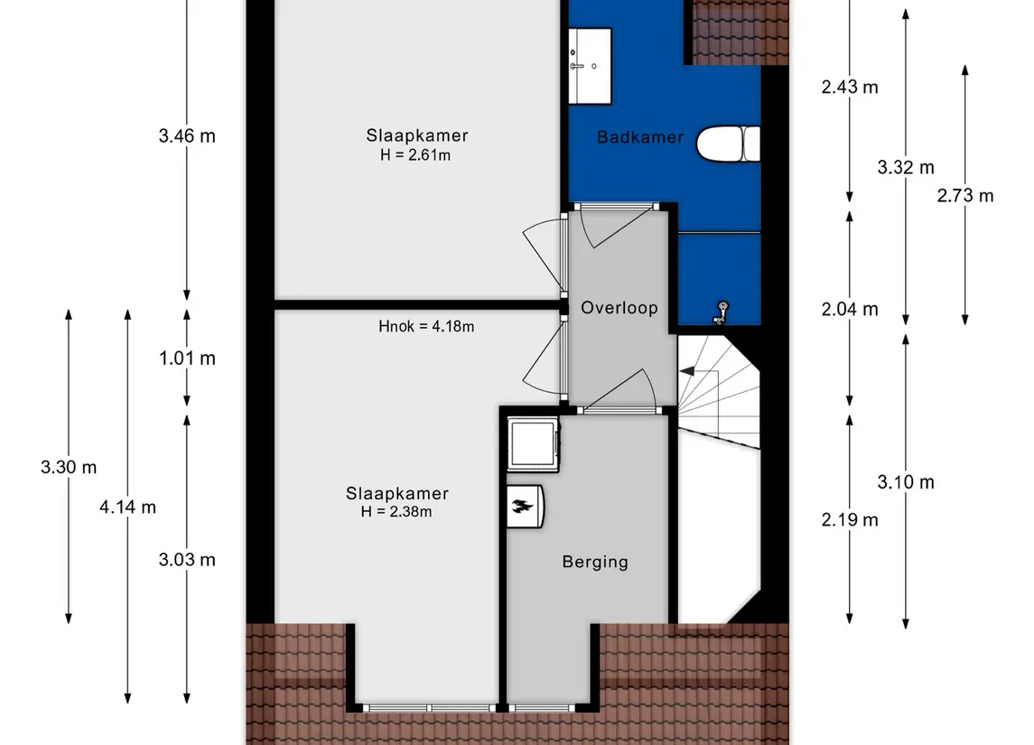
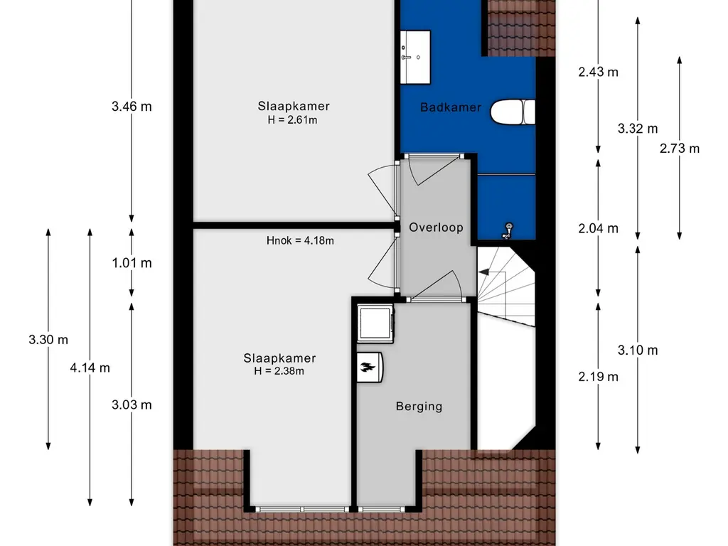
Tweede verdieping
Overloop met toegang tot alle vertrekken.
Slaapkamer 1 (achterzijde): ruime kamer met een brede dakkapel.
Slaapkamer 2 (voorzijde): tevens voorzien van dakkapel.
Badkamer: volledig betegeld, met douchecabine, wastafelmeubel, spiegel, radiator en raam voor natuurlijke ventilatie.
Stook-/wasruimte: met opstelling voor de HR cv-combiketel (Intergas, 2009), aansluiting voor wasmachine en droger, mechanische ventilatie-unit en een Velux dakraam.
Bijzonderheden
• Bouwjaar: 2009
• Actieve Vereniging van Eigenaren
• Woonoppervlakte: ca. 91 m2
• Energielabel: A
• Bijdrage VvE: € 85,82 per maand
• Eigendom: volle eigendom
• Verwarming/warm water via een goed onderhouden cv-ketel (2009) en vloerverwarming op de eerste verdieping.
• Voorzieningen: alles binnen handbereik – winkels, openbaar vervoer, horeca, recreatie
en uitvalswegen
Verkopend makelaar: Richard Baldew
Deze informatie is zoals je mag verwachten van ons, met veel zorg samengesteld. Toch komt het in uitzonderlijke gevallen voor dat blijkt dat de informatie niet volledig is.
Daarom aanvaarden wij, als verkopend makelaar, geen aansprakelijkheid voor de juistheid en/of volledigheid ervan.
Wat betekent dat er geen rechten ontleend kunnen worden aan de vermelde gegevens.
We verstrekken je deze informatie om je uit te nodigen voor het plannen van een bezichtiging en het doen van een bod onder voorbehoud van gunning.































