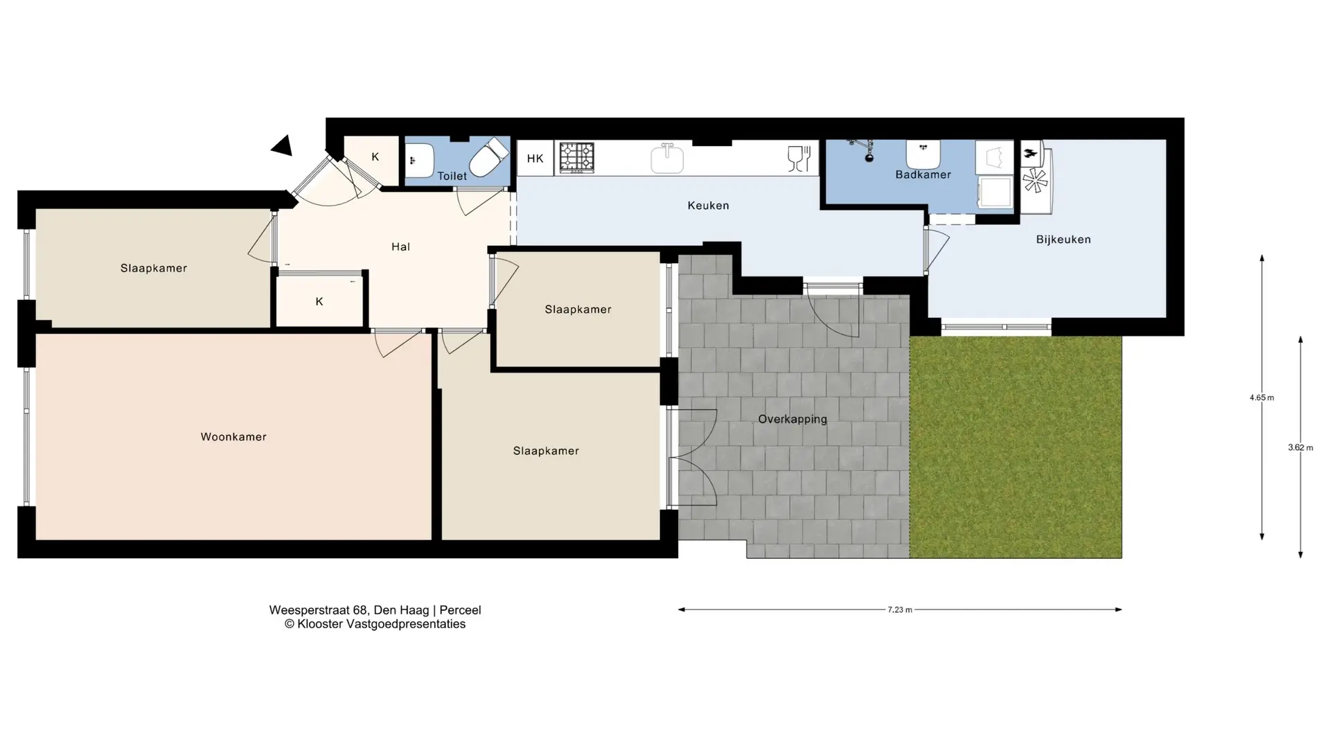
Bent u op zoek naar een fijne benedenwoning (ca. 82m2)met een zonnige achtertuin, 3 slaapkamers en een lichte woonkamer? Dan bent u hier aan het juiste adres
De woning is gelegen in een kindvriendelijke omgeving en ligt op loopafstand van een mooi, groot en groen plein met speelfaciliteiten. Tevens nabij diverse voorzieningen: winkelcentrum Leyenburg en de Dierenselaan voor uw dagelijkse boodschappen, sportfaciliteiten zoals o.a. aanwezig in het groene Zuiderpark en er is een goede bereikbaarheid met openbaar vervoer en auto. Met slechts 15 minuten fietsen ligt u heerlijk op het strand of loopt u door de duinen van badplaats Kijkduin.
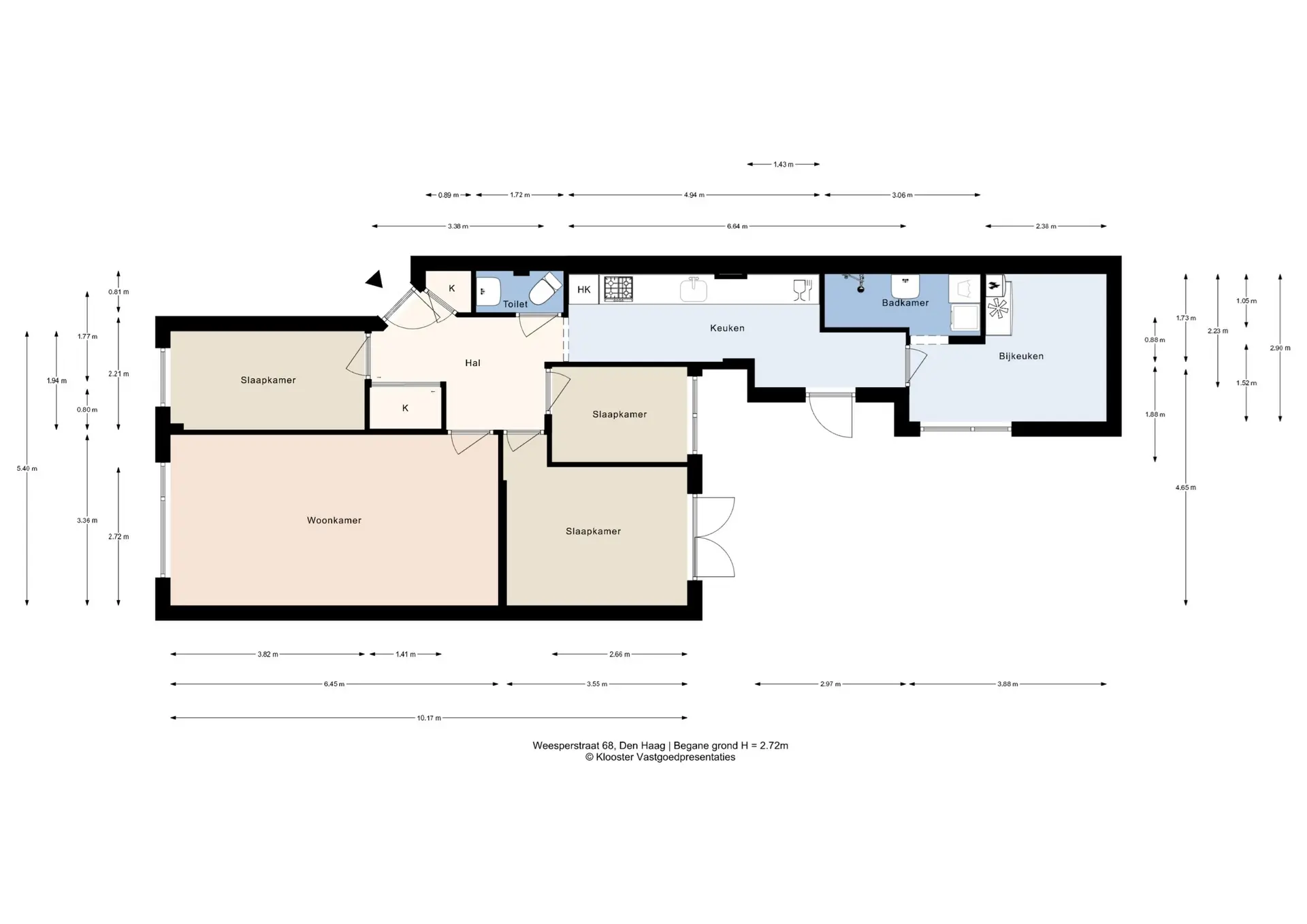
Indeling
Entree woning, hal v.v. meterkast en toilet (hangend met fontein), ruime kast in de hal, vanuit de hal toegang tot de woonkamer, de woonkamer is voorzien van veel lichtinval, nette laminaatvloer en een prima zit-*en eethoek. Aan de achterzijde een ruime slaapkamer met openslaande deuren naar de tuin, de tweede slaapkamer (tussenkamer) is eveneens aan de achterzijde gelegen. De keuken is netjes onderhouden en v.v. 4 pits gaskookplaat, oven, vaatwasser, afzuigkap, koel-/vriescombinatie (los), aan de voorzijde treft u de derde slaapkamer aan en de badkamer is in de uitbouw gelegen v.v. inloopdouche, wastafel, wasmachine-/droger opstelling en handdoekradiator
Kortom een fijn appartement met zonnige achtertuin
Bijzonderheden
• Type woning: appartement (benedenwoning)
• Bouwjaar 1927
• Woonoppervlak: ca. 82 m2
• De V.v.E. is actief, bijdrage € 100,- per maand (1/3e aandeel)
• De grond is belast met erfpacht
• Verwarming en warm water middels cv combi ketel (bouwjaar 2012)
• De woning is geheel v.v. dubbel glas met kunststof kozijnen
• Uitgevoerde werkzaamheden: voor-en achtergevel zijn gevoegd en geïsoleerd, plafond + renovatie 5 jaar gelegen, kunststof-/dubbel glas 6 jaar
• Oplevering in overleg
