Unieke kans om deze woning geheel naar eigen smaak en stijl in te richten. Na een modernisering heeft u een heerlijke woning in een gewild complex.
3 kamer- hoekappartement op de 2e verdieping van het in 2004 opgeleverde complex “Hof Loevesteijn”. Grote woonkamer met open keuken en 2 royale slaapkamers met tussenliggende badkamer. Loggia op het oosten.
De woning is gunstig gelegen nabij het Zuiderpark, winkelcentrum Leyweg en de Betje Wolffstraat, sport en recreatievoorzieningen, scholen, openbaar vervoer en de uitvalswegen A4, A12 en A13. Centrum en strand zijn op fietsafstand.
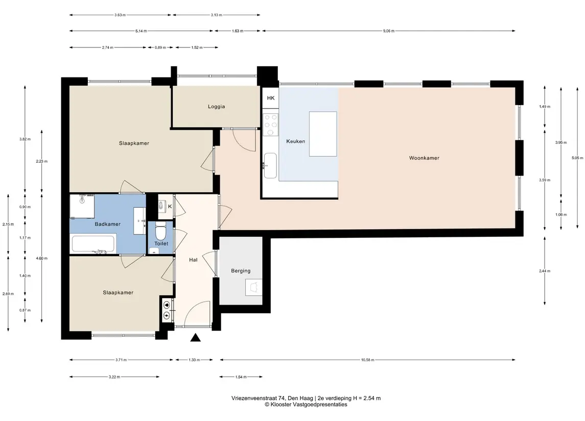
Indeling
Afgesloten entree tot het complex “Hof Loevesteijn” met lift en trap naar de 2e verdieping alwaar gemeenschappelijk dakterras.
Tweede woonlaag: entree woning, royale hal met meterkast en inwendige berging met wasmachine aansluiting, CV-combiketel (Intergas) en WC met fonteintje.
Vanuit de hal toegang tot de royale woon- eetkamer met veel lichtinval door grote raampartijen. Open keuken met diverse inbouw-apparatuur. Vanuit de hal bereikt u ook de twee ruime slaapkamers en van daaruit de tussenliggende badkamers met bad, douche en wastafel. Tevens bereikt u vanuit de hal de loggia.
Het hele appartement is voorzien van parket. In de onderbouw heeft u een eigen berging en een gezamenlijke fietsenstalling.
Het appartement kunt u geheel naar eigen smaak opnieuw inrichten. De woning heeft een praktische indeling met veel mogelijkheden.
Bijzonderheden
- type woning : portiekflat
- bouwjaar 2004
- woonoppervlakte 99.8 m²
- energielabel A
- grond is belast met erfpacht, canon eeuwigdurend afgekocht
- actieve VvE, bijdrage € 228,43 per maand
- verwarming en warm water middels cv combi ketel (Intergas 2004)
- de woning is geheel v.v. HR dubbel glas
- oplevering in overleg
- niet bewoners clausule van toepassing
