Ruime woning te koop met lichte, speelse indeling in Ravels
Deze opvallend ruime woning (deels gerenoveerd in 2010 en 2020) met een speelse indeling vormt een aangename leefomgeving.
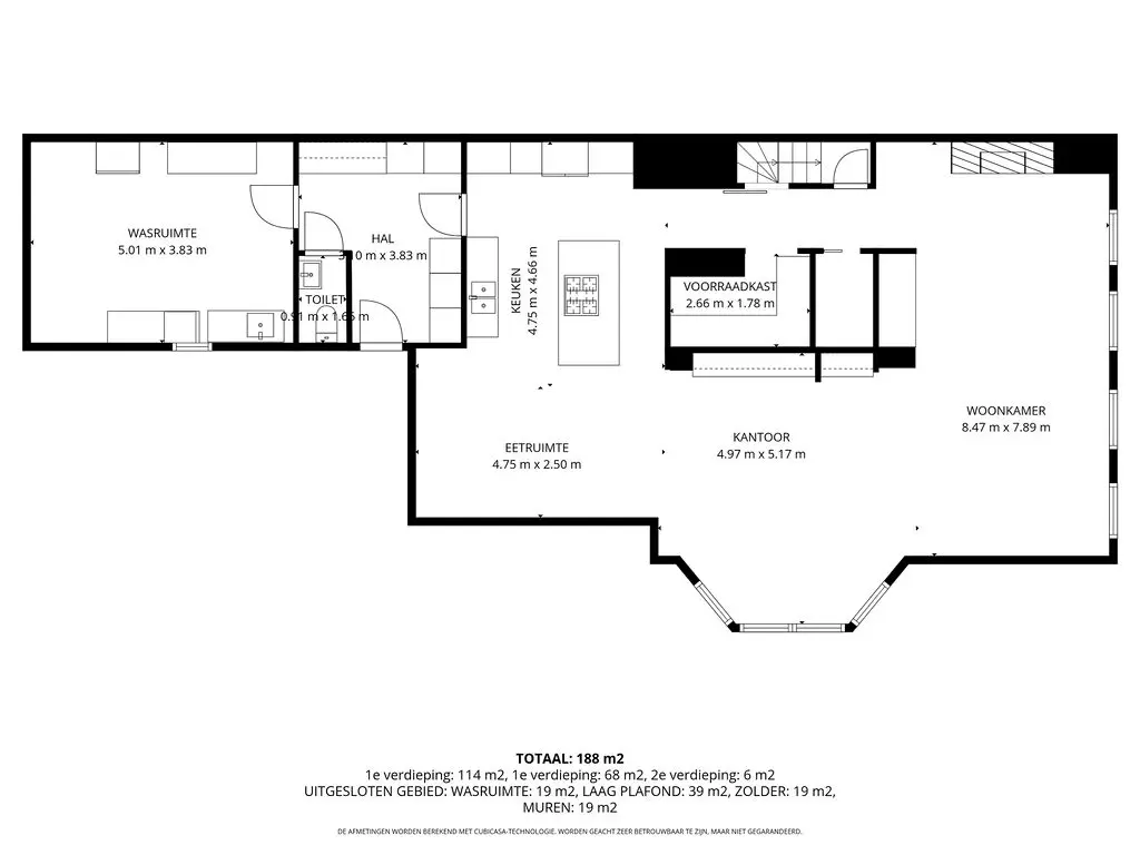
Bij binnenkomst valt de creatief ingerichte leefruimte u meteen op. De woonkamer is gedeeltelijk verhoogd en voorzien van een volle eikenhouten vloer.
De rest van de leefruimte is voorzien van een PVC-vloer van horeca-kwaliteit, wat voor gebruiksgemak zorgt.
De leefruimte beschikt over een gezellige pelletkachel en ingebouwde airco voor optimaal comfort tijdens alle seizoenen.
Wat extra leuk is om te vermelden, is dat de woning vroeger dienstdeed als bakkerij, wat haar een uniek en karaktervol verleden geeft.
De gietijzeren fronten van de oude bakkerijoven zijn verwerkt in het metselwerk in de woonkamer.
De ruime leefkeuken vormt het middelpunt van de woning en is uitgerust met kwalitatieve toestellen:
een Falcon 5-pits gasfornuis met wokbrander, warmhoudkast, oven en grill, een combi-microgolf van Atag, een Qooker, een dubbele wastafel, een AEG-vaatwasser en een Atag-afzuiging.
De aanwezige lichtkoepels laten volop daglicht binnen, wat zorgt voor een extra ruimtelijk gevoel.
Naast de keuken bevindt zich een achterinkom met veel bergruimte en een wasplaats.
Verder beschikt de woning over verschillende inbouwkasten, waaronder ingebouwde kasten in de gang op het gelijkvloers richting de trap naar boven.
Op de eerste verdieping bevinden zich drie slaapkamers en een recent vernieuwde badkamer (ca. vijf jaar geleden) met twee wastafels, toilet en inloopdouche.
De zolder is deels geïsoleerd en biedt eventueel een vierde slaapkamer.
De woning is voorzien van aluminium ramen met rolluiken (voorgevel en overige ramen vernieuwd rond 2005) en de verwarming gebeurt via radiatoren op aardgas, gecombineerd met een Junkers-ketel.
Voor extra energie-efficiëntie is de woning uitgerust met 20 zonnepanelen met batterij (geplaatst in 2021) en een zonneboiler.
De woning beschikt over een droge kelder en de vloeren zijn gedeeltelijk geïsoleerd.
Buiten vindt u een onderhoudsvriendelijke tuin met speelse hoogteverschillen en diverse bijgebouwen:
een gezellig overdekt terras achter de woning, naast de woning een hoge overkapping die tevens kan dienen als terras of carport voor bijvoorbeeld een camper, een kippenhok en een houthok.
Daarnaast is er een dubbele garage (ca. 45 m²) met twee elektrische poorten en een handmatige poort.
Verder is er een elektrische luifel aan de woning voorzien. Het perceel is bereikbaar via zowel de voor- als achterzijde.
Kortom, een fijne en complete woning met veel ruimte, comfort en potentieel, ideaal voor wie op zoek is naar een aangename thuis met uitbreidingsmogelijkheden.
Troeven:
- Oriëntatie van de achtergevel op het zuidwesten
- Diepe tuin, zodat u altijd de zon kunt opzoeken
- Zeer ruime dubbele garage van ca. 45 m²
- Energielabel B
- Voorzien van zonnepanelen, thuisbatterij en zonneboiler voor laag energieverbruik
- Gezellige en ruime leefruimte met open keuken
- Veel bergruimte aanwezig
- Onderhoudsvrije aluminium ramen
- Zolderverdieping biedt mogelijkheid tot uitbreiding




























