Ben je op zoek naar jouw eigen knusse plekje in het hart van Schiedam? Ontdek dan dit aantrekkelijke appartement op de eerste en tweede verdieping van een pand, gebouwd in 1930. Deze bovenwoning straalt een bijzondere mix van moderne gemakken en klassieke charme uit, met een woonoppervlakte van 90 m2. Met de ruime woonkamer, een keuken voorzien van inbouwapparatuur en semi open indeling en uitstekend onderhoud, kun je hier helemaal tot rust komen.
Het appartement ligt aan de rustige Van Ostadelaan in het sfeervolle Schiedam. Deze locatie combineert het beste van twee werelden: je woont hier in alle rust, terwijl je binnen een handomdraai in het bruisende stadscentrum bent. In de nabijheid vind je ook voldoende wandelparken voor je dagelijkse portie frisse lucht en met de uitvalswegen om de hoek ben je zo op weg naar je volgende bestemming.
Dit appartement is recent gerenoveerd en kent toch een klassieke uitstraling dankzij het bouwjaar van 1930. Het heeft een woonoppervlakte van 90 m2 wat je voldoende ruimte biedt om je te settelen. Het energielabel D verzekert je bovendien van een redelijk energie-efficiënte woning, waardoor je kunt rekenen op comfortabel wonen met een verantwoord energieverbruik.
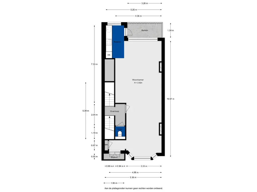
Kom binnen via de eigen entree op de begane grond en loop via de keurig gestoffeerde trap naar de eerste verdieping, waar de voormalige en-suite woonkamer en de halfopen keuken met inbouwapparatuur zich bevinden. Met de keuken gelegen op het westen, met aansluitend het ruime balkon, kun je rekenen op een aangename lichtinval tijdens het koken.
Op de eerste verdieping vind je twee goed formaat slaapkamers. De badkamer is uitgerust met een wastafel, een wastafelmeubel en een inloopdouche, en heeft een oppervlakte van 4 m2. Bovenop deze verdieping vind je nog een praktische bergvliering, te bereiken via een vlizotrap. Wat je niet dagelijks nodig hebt berg je hier lekker op.
Bijzonderheden
- Vrij parkeren
- Keuken voorzien van inbouwapparatuur in een semi open setting
- Recent gerenoveerd
- Eigen grond
- Splitsing nog in voorbereiding
- VvE wordt nader geactiveerd bij splitsing
Zie je jezelf al wonen in dit karaktervolle appartement in Schiedam? Grijp dan nu je kans en plan vandaag nog een bezichtiging in! We kijken er naar uit om je rond te leiden in jouw mogelijk nieuwe woning.
Remko Schrijver
meer.Makelaar


























