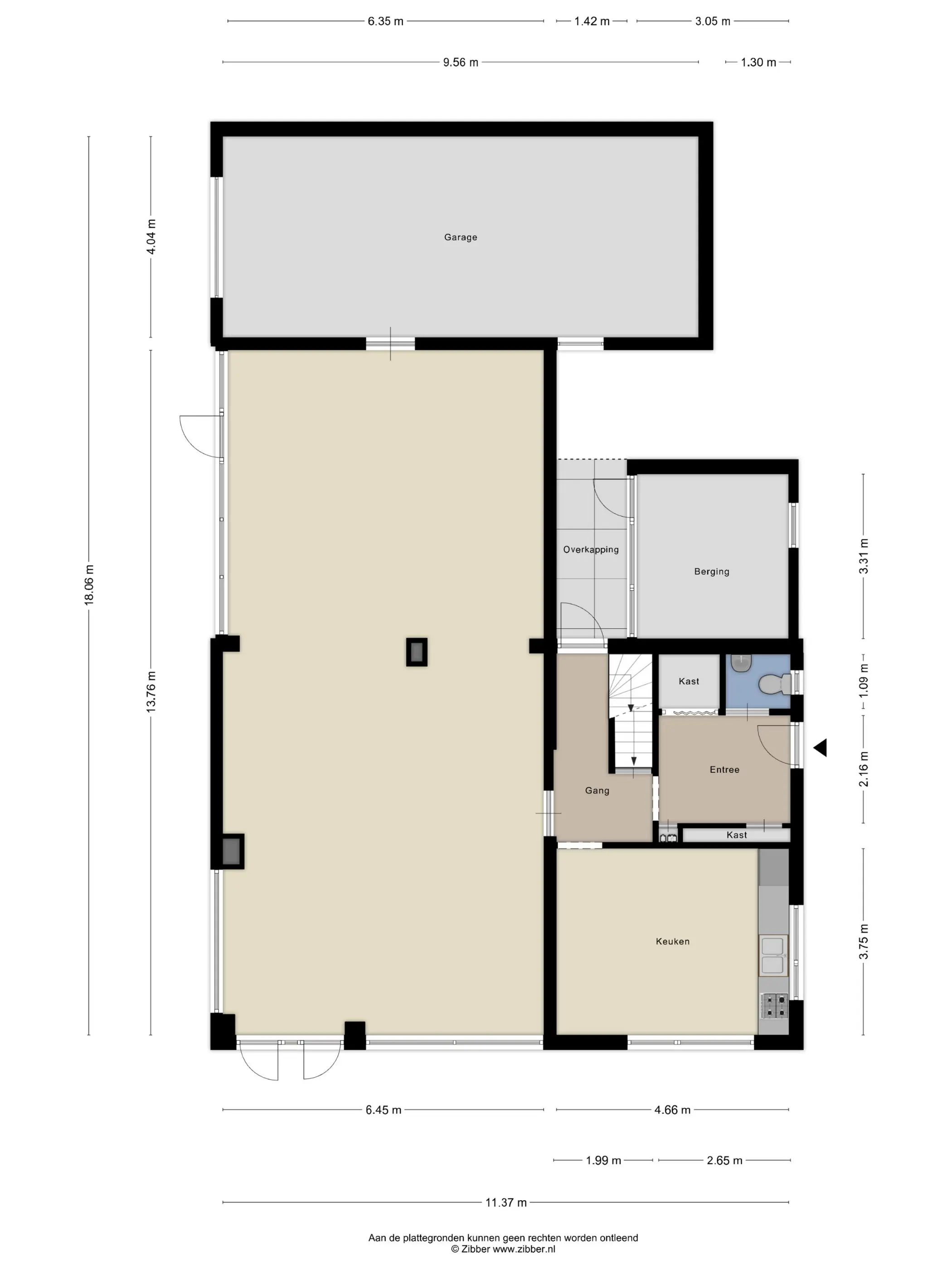
Op een rustige en groene locatie in Groesbeek staat deze vrijstaande woning op een royaal hoekperceel. Een unieke kans voor wie ruim wil wonen en op zoek is naar een woning met potentie en mogelijkheden. De brede voorgevel, grote raampartijen en de royale oprit op eigen terrein geven de woning direct een karakteristieke uitstraling. Dankzij de hoekligging en de vele ramen valt het natuurlijke licht prachtig naar binnen, waardoor de woning ruim en open aanvoelt, ongeacht de indeling die je kiest.
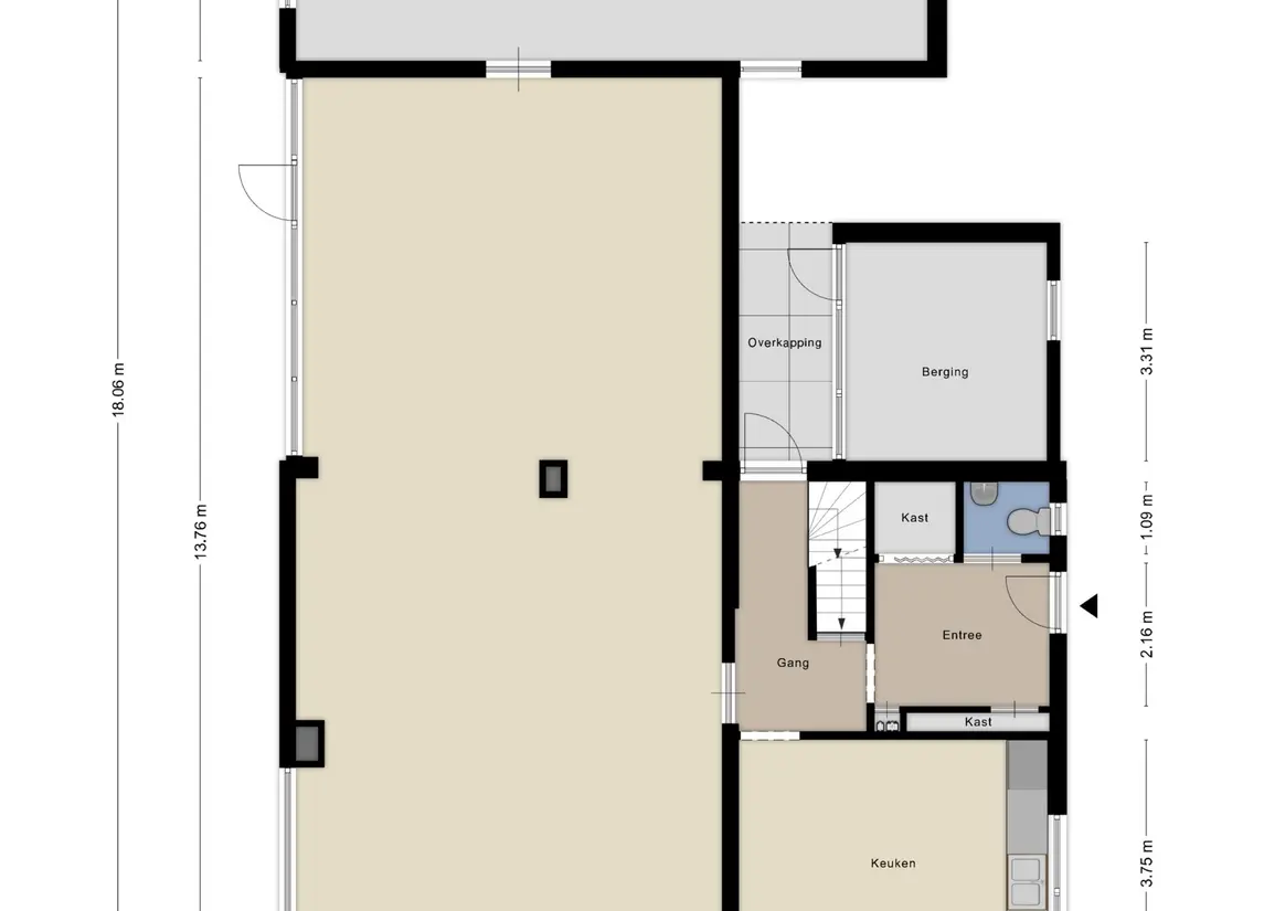
Bij binnenkomst valt de ruimte meteen op. De begane grond biedt een fijne basis om volledig naar eigen smaak te moderniseren. De brede ruimtes en grote ramen maken het gemakkelijk om hier een prachtig leefgedeelte te creëren, denkend aan een ruime woonkamer, een open keuken of misschien zelfs een werkruimte aan huis. De mogelijkheden zijn volop aanwezig voor wie graag zijn eigen woonstijl wil realiseren.
Op de eerste verdieping bevinden zich meerdere goed bemeten kamers, ideaal als slaapkamers, thuiskantoor of hobbyruimte. Door de rechte gevels is er veel praktische indelingsruimte beschikbaar. Licht en rust domineren op deze verdieping, wat zorgt voor een prettige sfeer. De zolder, bereikbaar met een vlizotrap, biedt extra opslagruimte en toekomstig potentieel. Voor wie verder wil uitbreiden of moderniseren, biedt deze verdieping voldoende mogelijkheden, uiteraard afhankelijk van de wensen en plannen van de koper.
De kelder maakt de woning extra functioneel. Ideaal voor opslag, provisie of het opbergen van spullen die je niet dagelijks nodig hebt. Het is juist die combinatie van ruimte, licht en indelingsvrijheid die deze woning zo aantrekkelijk maakt voor verschillende doelgroepen: gezinnen die willen groeien, koppels die ruimte zoeken of kopers die graag een woning volledig naar eigen hand willen zetten.
De buitenruimte is een groot pluspunt. Het perceel rondom de woning biedt de mogelijkheid om een heerlijke tuin, terras of speelruimte te creëren. De brede oprit maakt parkeren op eigen terrein eenvoudig. De ligging aan een rustige straat draagt bij aan het gevoel van privacy en comfort, terwijl alle voorzieningen binnen handbereik zijn. Winkels, scholen, sportfaciliteiten en natuurgebieden liggen op korte afstand. Groesbeek staat bekend om zijn groene, heuvelachtige omgeving en fijne leefklimaat, met Nijmegen op slechts enkele minuten rijden.
Deze woning is perfect voor wie op zoek is naar ruimte, licht en de mogelijkheid om een huis volledig naar eigen smaak te moderniseren. De basis is solide, het perceel is royaal en de ligging is uitstekend. Een woning die je moet ervaren om de mogelijkheden écht te zien. Maak daarom gerust een afspraak voor een bezichtiging — we laten je dit bijzondere object graag zien.













































