*English below*
Ruim wonen in het gewilde en bruisende Zeeheldenkwartier!
Dit ruime (ca. 145 m2) en zeer verzorgde 5 kamer dubbel bovenhuis is voorzien van een zeer lichte woon-/eetkamer, open keuken, verzorgde badkamer en maar liefst 4 slaapkamers, 2 balkon en een ruim dakterras.
De woning is gelegen op loopafstand van het gezellige Prins Hendrikstraat en plein met voldoende lunch en diner mogelijkheden maar ook de Piet Heinstraat biedt u diverse winkel mogelijkheden. De wijk bruist en er is altijd wel wat te doen.
Kom gerust langs en ervaar het zelf!
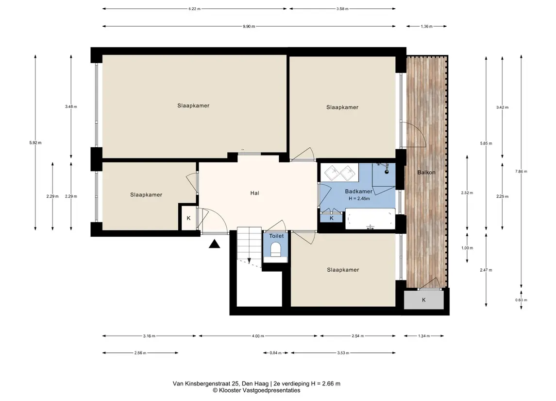
Indeling
Entree via gesloten portiek, trap naar de 2e verdieping, entree van het appartement, hal v.v. modern toilet. Ruime slaapkamer aan de achterzijde met deur naar balkon over de volle breedte, de 2e slaapkamer is eveneens aan de achterzijde gelegen, de naastgelegen verzorgde badkamer is v.v. ligbad, douche en dubbele wastafel. zeer ruime slaapkamer aan de voorzijde en een 4e slaapkamer is ook aan de voorzijde gelegen (thans in gebruik als kastenkamer).
Trap naar 3e verdieping: Waanzinnig lichte woon-eetkamer (ca. 75m2) met openhaard, rondom uitzicht door de grote raampartijen, het zitgedeelte loopt door naar het eetgedeelte. De open keuken is ruim opgezet en netjes onderhouden. De keuken is v.v. een granieten aanrechtblad, vaatwasser, inductie kookplaat en oven, ruime kastenwand alwaar opstelplaats koel-/vriescombinatie en opstelplaats voor de cv-combiketel. De tweede toilet is tevens de opstelplaats voor de wasmachine/droger, welke ruimte ook zou kunnen dienen als tweede badkamer. Balkon op de ochtendzon aan de keukenzijde over de volle breedte en een heerlijk zonnig terras (ca. 10m2) aan de voorzijde aan u de gehele middag van de zon geniet tot een prachtige ondergang.
Kortom een heerlijke woning op een geweldige locatie gelegen!
Bijzonderheden
- Type woning: dubbel bovenhuis
- Bouwjaar: 1964
- Woonoppervlak: ca. 145m2
- De V.v.E. is actief, de bijdrage is € 80,- per maand
- De woning is gelegen op eigen grond
- Geheel v.v. dubbel glas
- Verwarming en warm water middels cv-combi ketel
- 4 slaapkamers- het huis is volledig geïsoleerd (dubbelglas en muurisolatie)
- Alle radiatoren zijn verwijderd en vervangen door muur- en vloerverwarming
- Vloer op 2e verdieping voorzien van larix en douglasie vloerdelen
- Vloer op 3e verdieping voorzien van massief eikenhouten parket
- Vloerverwarming in badkamer en keuken
- Het betreft een beschermd stadsgezicht
- Oplevering in overleg
Spacious living in the desirable and vibrant Zeeheldenkwartier!
This spacious (approx. 145 m²) and very well-maintained 5-room duplex apartment features a bright living/dining room, open-plan kitchen, well-maintained bathroom, and no fewer than 4 bedrooms, 2 balconies, and a spacious roof terrace.
The apartment is within walking distance of the charming Prins Hendrikstraat and square, offering ample lunch and dinner options. Piet Heinstraat also offers a variety of shops. The neighborhood is vibrant and there's always something to do.
Come visit and experience it for yourself!
Layout:
Entrance through a secure porch, stairs to the second floor, entrance to the apartment, hallway with a modern toilet. Spacious bedroom at the rear with a door to the full-width balcony. The second bedroom is also located at the rear. The adjacent well-maintained bathroom has a bathtub, shower, and double sink. A very spacious bedroom is at the front, and a fourth bedroom is also located at the front (currently used as a closet). Stairs to 3rd floor: Wonderfully bright living/dining room (approx. 75m²) with a fireplace, panoramic views through the large windows. The sitting area extends into the dining area. The open-plan kitchen is spacious and well-maintained. It features granite countertops, a dishwasher, an induction cooktop, and an oven, along with a spacious wall of cabinets housing the fridge/freezer and the central heating boiler. The second toilet also houses the washer/dryer, which could also serve as a second bathroom. A full-width balcony overlooking the kitchen catches the morning sun, and a lovely sunny terrace (approx. 10m²) at the front allows you to enjoy the sun all afternoon, right up to a beautiful sunset.
In short, a wonderful home in a fantastic location!
Details:
- Type of property: semi-detached house
- Year built: 1964
- Living area: approx. 145m²
- Owners' association (V.v.E.) is active, the monthly fee is €80.
- The house is located on freehold land
- Fully double-glazed
- Heating and hot water via a central heating boiler
- 4 bedrooms - The house is fully insulated (double glazing and wall insulation)
- All radiators have been removed and replaced with wall and underfloor heating
- The second floor features larch and Douglas fir flooring
- The third floor features solid oak parquet flooring
- Underfloor heating in the bathroom and kitchen
- The property is located in a protected cityscape
- Delivery by arrangement