Welkom aan de Streksingel 61 – stijlvol wonen in het charmante Hillegersberg
In één van de meest geliefde en groene buurten van Rotterdam ligt deze prachtige woning aan de Streksingel 61. Hier woon je in alle rust, omgeven door statige lanen, lommerrijke parken en karakteristieke bebouwing. Een perfecte harmonie tussen stedelijk comfort en serene rust – precies wat je zoekt.
WAAROM IS DIT JOUW NIEUWE THUIS?
Deze fraaie woning is gelegen in een ruim opgezette, kindvriendelijke buurt met een fijne mix van jonge gezinnen, stellen en senioren. De omgeving ademt een gevoel van geborgenheid en kwaliteit. Het complex waarin de woning zich bevindt, wordt professioneel beheerd door een actieve Vereniging van Eigenaren (VvE). De maandelijkse bijdrage bedraagt circa €336,-. De VvE heeft bovendien ambitieuze plannen voor het isoleren van het dak en het renoveren van kozijnen en ramen — waardevolle investeringen die het wooncomfort en de duurzaamheid aanzienlijk zullen verhogen.
Dit ruime 3- v/h 4-kamerappartement bevindt zich op de 5e verdieping en biedt veel licht en een fraai uitzicht.
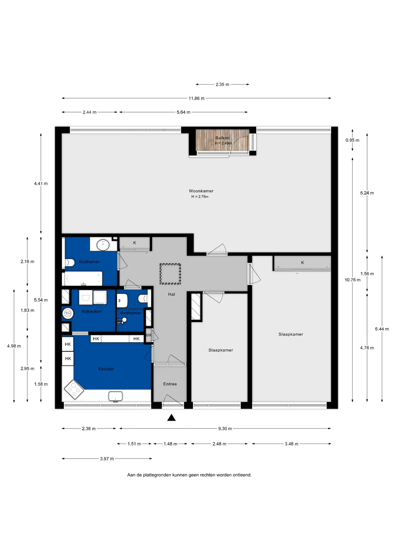
INDELING
Op de begane grond afgesloten entree met intercominstallatie, centrale hal met trappenhuis en lift; toegang tot privéberging in de kelder.
5e ETAGE
Entree met garderobe, ruime centrale hal met lichtkoepel waar alle vertrekken op uitkomen. Ruime woonkeuken met inductiekookplaat, elektrische oven, koelkast, vrieskast en vaatwasser. In de bijkeuken aansluiting voor wasmachine en droger. De grote woonkamer heeft over de hele breedte ramen en geeft toegang tot het balkon. In de ruime master slaapkamer bevindt zich een grote 3-deurskast en ruimte voor een zitje of werkplek. Slaapkamer 2 kan prima als kinder- of logeerkamer worden gebruikt. De badkamer is voorzien van een bad met douche, wastafelmeubel, handdoekenradiator en 2e toilet. Bij het toilet bevindt zich een aparte douche en wastafel. Verder beschikt het appartement over veel bergruimte.
WINKELS & VOORZIENINGEN BINNEN HANDBEREIK
De locatie biedt werkelijk alles wat je nodig hebt. Van de bekende namen zoals Albert Heijn, Hema en Kruidvat tot ambachtelijke speciaalzaken en lokale ondernemers met persoonlijke service en kwaliteit. Of je nu snel een boodschap moet doen of juist uitgebreid wilt struinen door het winkelgebied: je vindt het bij je voordeur.
Goed om te weten: het winkelgebied kent betaald parkeren, maar voor slechts circa €10,- per maand heb je een parkeervergunning.
PERFECT BEREIKBAAR, HOE JE OOK REIST
De bereikbaarheid is onovertroffen. Met tramlijn 4 om de hoek reis je comfortabel en snel naar hartje Rotterdam. Fietsliefhebbers zijn bovendien in minder dan 20 minuten in het centrum. Voor forenzen is station Rotterdam Noord op korte afstand een ideale uitvalsbasis en met de auto bereik je in een paar minuten een van de uitvalswegen.
GROENE LUXE EN RECREATIE OM DE HOEK
Voor wie houdt van de buitenlucht en natuur is dit een waar paradijs. De uitgestrekte Bergse Plassen, het prachtige Lage Bergse Bos en de oevers van de Rotte liggen op loop- of fietsafstand. Hier wandel je, fiets je of vaar je in een omgeving waar rust en schoonheid de hoofdrol spelen. Een zeldzaam stukje natuur midden in de Randstad.
CULINAIR GENIETEN
De buurt biedt een verfijnde selectie aan eetgelegenheden — van gezellige koffietentjes tot uitstekende restaurants. Voor de wijnliefhebber is er Grapedistrict, een elegante winkel met zorgvuldig geselecteerde wijnen van kleine, gepassioneerde wijnboeren. Hier is elke maaltijd een gelegenheid, elke borrel een belevenis.
Streksingel 61 is meer dan een woning – het is een uitnodiging tot stijlvol wonen, in een rustige, groene wijk met stadse allure. Alle gemakken, sfeer en ruimte die je zoekt, gecombineerd op één unieke locatie.
Ontdek het zelf – en voel je direct thuis.
Plan snel een bezichtiging en ontdek wat deze bijzondere plek jou te bieden heeft!
BIJZONDERHEDEN
• Bouwjaar Woning 1969
• Eigen grond
• Energielabel D
• Woonoppervlak 136 m2
• 5e etage
• 2 Badkamers
• Blokverwarming
• Elektrische boiler
• Overdracht in overleg
• Ouderdomsclausule van toepassing
Eigen woning nog verkopen? We geven je gratis advies en een gratis waardebepaling.
Verkopen doe je met RE/MAX Totaal Makelaars | Libby Voormeulen.
Deze informatie is met de nodige zorgvuldigheid samengesteld. Hierbij zijn wij deels afhankelijk van informatie die wij van derden ontvangen. Onzerzijds wordt geen aansprakelijkheid aanvaard voor enige onvolledigheid, onjuistheid of anderszins, dan wel de gevolgen daarvan. Alle opgegeven maten en oppervlakten zijn indicatief.
MAKELAAR Libby Voormeulen











































