XXL instapklaar hoekhuis
• Wil je een instapklaar hoekhuis met veel leefruimte?
• Hou je van een moderne woonkeuken met kookeiland, Quooker en ingebouwd koffiezetapparaat?
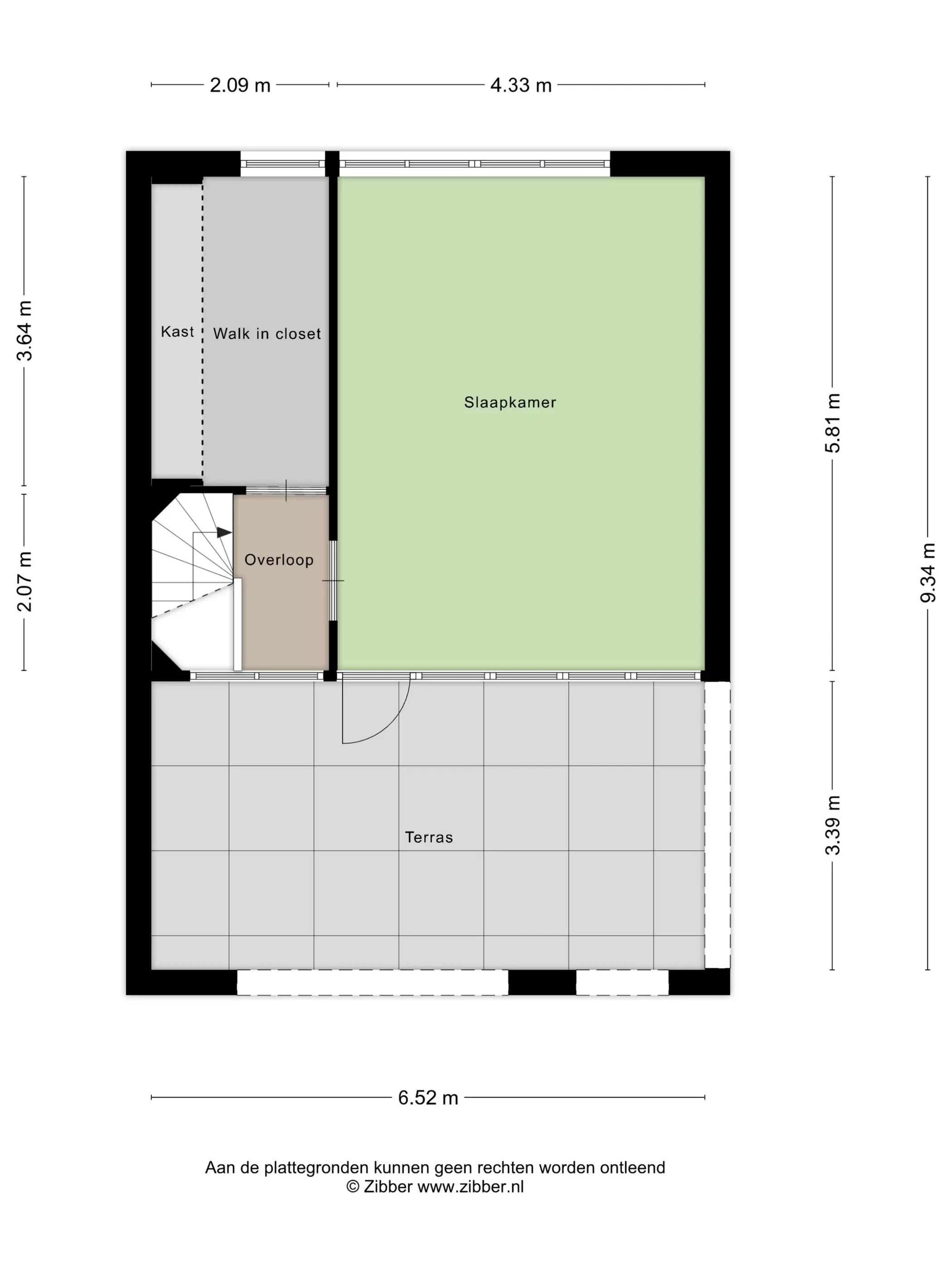
• Droom je van zes slaapkamers zodat ieder zijn eigen plek heeft?
• Vind je een zonnige tuin op het oosten fijn voor je ochtendkoffie?
• Verlang je naar een grote overkapping en buitenkeuken voor lange avonden met familie of vrienden?
• Kijk je uit naar een zolder met grote slaapkamer, airco en een dakterras als extra buitenruimte?
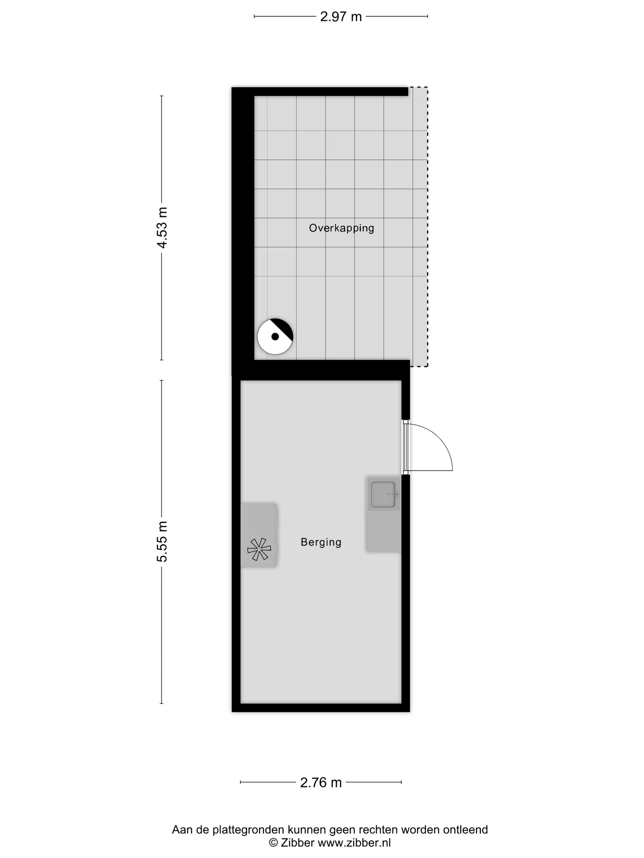
• Heb je graag extra bergruimte of een (weer te maken) garage van 17 m² achter de hand?
• Past een recente bouwjaarwoning (2012) met comfort zoals airco op de overloop bij jouw wensen?
• Lijkt het je wat om dicht bij “gasloos-klaar” te wonen met energielabel A?
Heb je meer dan 1 keer JA IK WIL gezegd op deze vragen, dan is dit wellicht je nieuwe droomhuis.
• XXL instapklaar hoekhuis — verhuizen, neerzetten en leven; weinig klussen nodig
• 6 slaapkamers — ruimte voor gezin, kantoor aan huis of logees
• Energielabel A — goede basis om zuinig te wonen
• Luxe keuken met kookeiland, Quooker en inbouw koffiezetapparaat — elke dag kookgemak
• Airco op de overloop en in de grote zolderkamer — snel het juiste klimaat
• Zolderkamer met terras — fijn privé-buiten voor een momentje rust
• Zonnige tuin op het zuidoosten — start je dag met licht en een ontbijtje buiten
• Garage omgebouwd tot schuur (ca. 17 m²), weer tot garage te maken — flexibiliteit voor fietsen, hobby of auto
• Ruime overkapping met buitenkeuken — droog, gezellig en klaar voor etentjes buiten
Foto’s geven een indruk, maar pas als je binnen bent voel je of dit huis jou past—en dat gevoel vang je niet op een scherm. Daarnaast is deze woning, ondanks voorgaande poging, met geen pen te beschrijven :-). Wacht niet langer en maak een afspraak! Neem contact op met Ad Krijnen, de ADnormale makelaar bij REMAX. Ad is 365 dagen per jaar bereikbaar en flexibel met bezichtigingen, ook 's avonds of in het weekend. Dus neem vandaag nog contact op en zet je eerste stap naar jouw nieuwe thuis!

















































