RUIME WONING MET INPANDIGE GARAGE OF MOGELIJKHEID VOOR LEVENSLOOPBESTENDIG WONEN
• Wil je wonen in een ruime 2-onder-1-kapwoning met inpandige garage op een fijne, rustige woonlocatie?
• Zoek je een huis waar je nú lekker kunt wonen en later eenvoudig levensloopbestendig en gelijkvloers kunt maken?
• Hou je van een lichte woonkamer met vloerverwarming en een strakke epoxyvloer waar je zo je meubels kunt neerzetten?
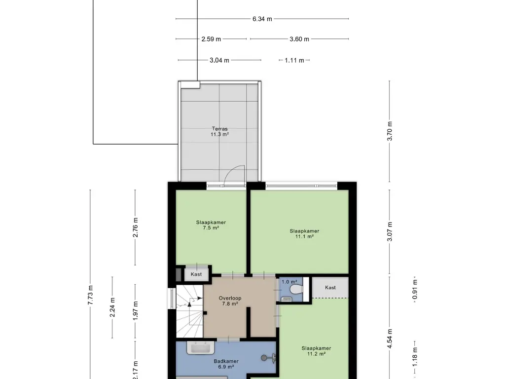
• Droom je van 4 slaapkamers, zodat iedereen zijn eigen plek heeft of je logees comfortabel kunt ontvangen?
• Vind je het belangrijk dat de woning netjes is afgewerkt én goed is onderhouden, zodat je niet direct hoeft te verbouwen?
• Verlang je naar een badkamer met zowel ligbad als inloopdouche én een separaat toilet op de eerste verdieping?
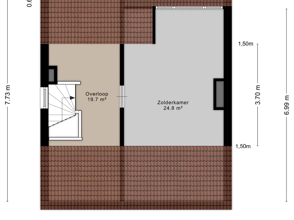
• Kijk je uit naar een inpandige garage van ruim 30 m² in spouw, die je kunt ombouwen tot gelijkvloerse slaap-/badkamer, tweede woonunit of kantoor aan huis?
• Lijkt het je fijn om op eigen terrein 2 auto’s te kunnen parkeren én daarnaast veel parkeerruimte in de straat te hebben?
• Overweeg je een woning met vernieuwde elektra, moderne groepenkast, jonge cv-ketel en recente platte daken, zodat je technisch al een flinke stap voor ligt?
• Sta je open voor een huis met energielabel D dat bijna overal nieuwe kozijnen en rolluiken heeft, waardoor je comfortabel en met meer privacy woont?
Heb je meer dan 1 keer JA IK WIL gezegd op deze vragen, dan is dit wellicht je nieuwe droomhuis.
Ik loop graag samen met je door de belangrijkste punten van deze woning:
• Ruime 2-onder-1-kapwoning met inpandige garage – ideaal als je nét wat meer ruimte wilt dan gemiddeld, binnen én rondom het huis.
• Net afgewerkt en goed onderhouden – je kunt hier meteen prettig wonen en stap voor stap je eigen smaak verder toevoegen.
• 4 slaapkamers – fijn voor een gezin, maar ook handig als je een werk-/hobbykamer wilt of logees regelmatig blijft ontvangen.
• Woonkamer met keuken en bijkeuken – veel praktische leefruimte, met korte looplijnen tussen koken, eten, wassen en opbergen.
• Vloerverwarming met epoxyvloer – zorgt voor een gelijkmatige warmte en een strakke, onderhoudsvriendelijke vloer.
• Inpandige garage van ruim 30 m² in spouw – ideaal om te transformeren naar levensloopbestendig gelijkvloers wonen, een eigen plek voor een 2e generatie of een representatief kantoor/praktijk aan huis.
• Mogelijkheid levensloopbestendig wonen – juist voor senioren of doorstromers is het prettig te weten dat je hier op termijn gelijkvloers kunt wonen.
• Ruim parkeren: 2 auto’s op eigen perceel plus extra parkeergelegenheid in de omgeving – geen gedoe met zoeken naar een plekje.
• Vernieuwde elektra en moderne groepenkast – een gerust gevoel als het gaat om veiligheid en het aansluiten van moderne apparatuur.
• Platte daken vernieuwd in 2020 – een grote kostenpost die al voor je is gedaan, prettig voor nu én straks bij onderhoudsplanning.
• Cv-ketel uit 2016 – relatief jong, wat bijdraagt aan comfort en bedrijfszekerheid.
• Bijna overal nieuwe kozijnen en rolluiken – verbeterde isolatie, meer comfort, minder onderhoud en extra privacy en veiligheid.
• Badkamer (2016) met ligbad én inloopdouche – je kiest zelf of je even snel wilt douchen of rustig wilt ontspannen in bad.
• Separaat toilet op de 1e verdieping – praktisch in het dagelijks gebruik, zeker met meerdere personen in huis.
Foto’s geven een indruk, maar pas als je binnen bent voel je of dit huis jou past—en dat gevoel vang je niet op een scherm. Daarnaast is deze woning, ondanks voorgaande poging, met geen pen te beschrijven :-). Wacht niet langer en maak een afspraak! Neem contact op met Ad Krijnen, de ADnormale makelaar bij REMAX en de Langstraat. Ad is 365 dagen per jaar bereikbaar en flexibel met bezichtigingen, ook 's avonds of in het weekend. Dus neem vandaag nog contact op en zet je eerste stap naar jouw nieuwe thuis!








































