Op een van de mooiste plekken van Schiedam, midden in het bruisende centrum, mag ik u dit prachtige en levensloopbestendige appartement aanbieden. Het appartement heeft een royaal woonoppervlak van maar liefst 153 m² en beschikt over drie slaapkamers. Bovendien is de woning zeer duurzaam en voorzien van energielabel A.
Locatie
De woning ligt in het hart van Schiedam, tussen de Schie en de Grote Markt. Vanuit de woonkamer kijkt u direct uit op de Grote Markt, waar u diverse horecagelegenheden en winkels vindt. Alle voorzieningen, zoals supermarkten, horeca en de bibliotheek, bevinden zich op loopafstand. Ook het openbaar vervoer en de uitvalswegen zijn binnen enkele minuten bereikbaar, waardoor steden als Rotterdam, Den Haag en Delft snel te bereiken zijn.
Huurcontract
– ROZ-model
– Huurperiode: Onbepaalde tijd
– Borgsom: € 5100,–
– Nutsvoorzieningen voor rekening van huurder
Bijzonderheden
– Gestoffeerd en gemeubileerd
– Ruime berging aanwezig
– Lift aanwezig
– Energielabel A
– Gelegen in een monumentaal pand
– Geschikt voor gezinnen, expats en ouderen
– Woonoppervlakte: 153 m²
– Royale patio van 26 m²
– Beschikbaar; per direct
– Levensloopbestendige woning
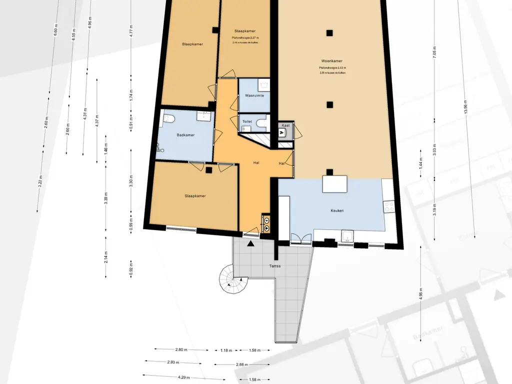
Indeling
Via de entree aan de Schiezijde betreedt u de hal met toegang tot de berging, het trappenhuis en de lift. Op de tweede verdieping bevindt zich de voordeur van het appartement. Eenmaal binnen vindt u aan de voorzijde een slaapkamer met directe toegang tot de badkamer. De badkamer is tevens bereikbaar via de hal. Aan de voorzijde bevinden zich nog twee slaapkamers. Verder is er een aparte wasruimte en een separaat toilet. De ruime woonkamer aan de achterzijde biedt een prachtig uitzicht op de Grote Markt en beschikt over sfeervolle balken. Aan de achterzijde bevindt zich ook de riante open keuken.
Bent u geïnteresseerd? Neem dan gerust contact op voor een bezichtiging!
Makelaar
Mike Lamnadi
English version
In one of the most beautiful locations in Schiedam, right in the vibrant city centre, I am delighted to offer this stunning and future-proof apartment. The property offers an impressive living space of 153 m² and features three bedrooms. It is also highly energy-efficient, with an energy label A.
Location
The apartment is ideally situated in the heart of Schiedam, between the Schie River and the Grote Markt. From the living room, you have a direct view of the lively Grote Markt, home to several cafés, restaurants, and shops. All amenities such as supermarkets, dining options, and the library are within walking distance. Public transport and main roads are easily accessible, providing quick connections to nearby cities like Rotterdam, The Hague, and Delft.
Rental conditions
– ROZ model contract
– Rental period: Indefinite time
– Security deposit: € 5,100
– Utilities at tenant’s expense
Key features
– Fully furnished and upholstered
– Spacious private storage room
– Lift access
– Energy label A
– Located in a monumental building
– Suitable for families, expats, and seniors
– Living area: 153 m²
– Generous patio of 26 m²
– Availablility; immediate
– Future-proof, accessible apartment
Layout
The main entrance on the Schie side gives access to the hallway, storage room, staircase, and lift. The apartment is located on the second floor. Upon entering, you will find a bedroom at the front with its own door to the bathroom, which can also be accessed via the hallway. Two additional bedrooms are located at the front. The apartment further includes a separate laundry room and a guest toilet. The spacious living room at the rear offers a beautiful view of the Grote Markt and features charming wooden beams. At the back, you’ll also find the large open kitchen.
Interested? Please contact us to schedule a viewing!
Real estate agent
Mike Lamnadi
























































