Deze unieke luxe turn key woning uit de jaren 30 is echt een plaatje!
Zo compleet kom je ze zelden tegen. Verhuizen zonder klussen, dit is je kans.
Dit pand is de afgelopen jaren volledig gestript, verbouwd en opgeknapt; van voormalig winkelpand naar een zeer complete woning. Dubbele bewoning is mogelijk!
De woning is strak afgewerkt en voorzien van een zeer luxe keuken met A kwaliteit apparatuur, luxe badkamer met A kwaliteit sanitair en een fraaie PVC vloer- en wandafwerking in mooie neutrale kleuren. Een zonnige tuin maakt het plaatje compleet. Aan alles is gedacht, alle raamdecoratie en maatwerk kasten zijn inclusief.
Op een steenworp afstand van winkelcentra. Het openbaar vervoer, diverse scholen en speelgelegenheden zijn in de buurt te vinden. De uitvalswegen zijn vanaf de woning makkelijk en snel bereikbaar.
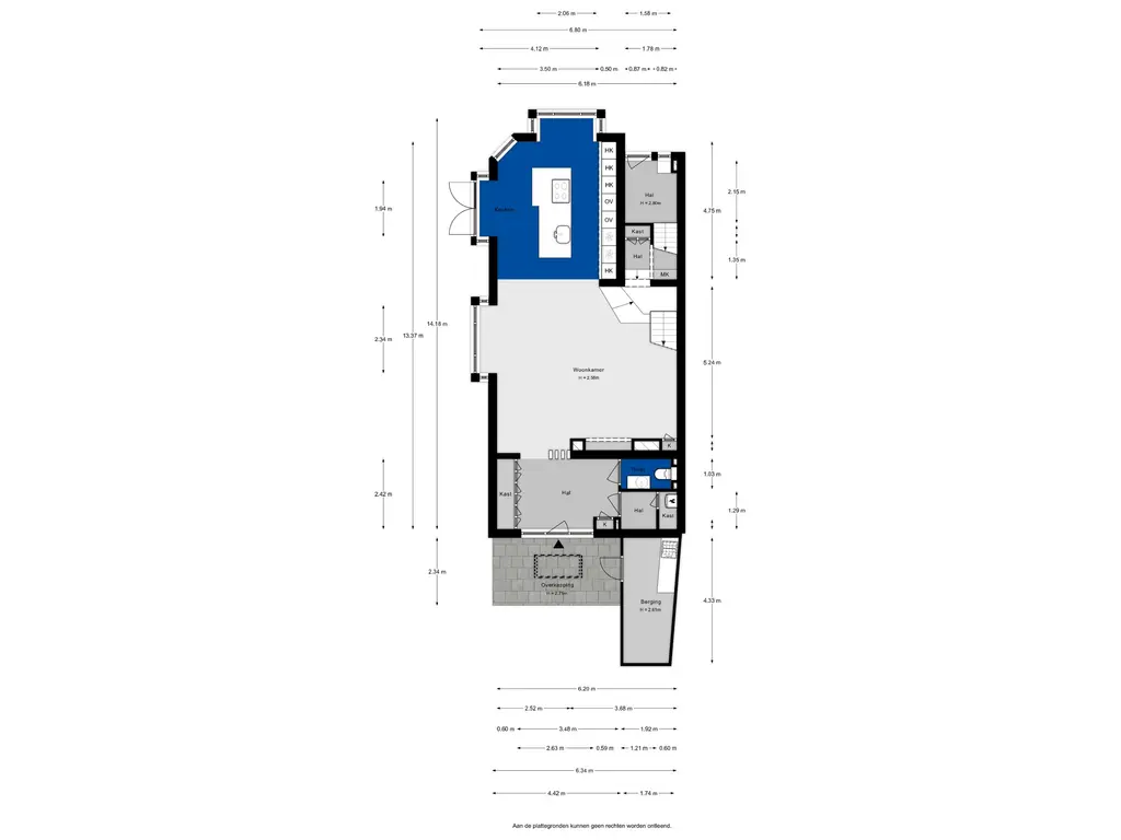
INDELING
BEGANE GROND (85,3 m2)
Kom binnen op Rozenlaan 1A, het hoofdhuis met nieuwe ingang, en ervaar vanaf de entree de adembenemende sfeer van deze woning, via de hal met op maat gemaakte garderobekasten waar ook de meterkast en de modern uitgevoerde toilet zich bevinden betreed je de ruime woonkamer voorzien van airco, en kijk je via de sfeervolle living naar de luxe open keuken. Laat je verwonderen door de riante en gezellige woonkamer met open keuken van tezamen ruim 70 m2.
De woonkamer is voorzien van een hoge kwaliteit pvc vloer met vloerverwarming, airco unit met extra capaciteit, een mooie grote gashaard en een speciale televisiewand. Via openslaande deuren bereik je de zonnige tuin.
1E VERDIEPING (82,3)
Deze verdieping heeft 3 slaapkamers en een riante luxe badkamer. De masterbedroom is voorzien van een grote complete inloopkast.
ZOLDER (45 m2)
De zolder is bereikbaar via een aparte ingang op Burgemeester de Bordesplein 7. Deze 3 kamer studio is geschikt voor aparte bewoning. Het is ook mogelijk de zolder bij de woning te betrekken of apart te houden voor een studerend kind welke toch nog thuis wil blijven wonen of een guesthouse voor logees.
Deze verdieping is voorzien van 2 slaapkamers, een woonkamer met keukenblok en een degelijke badkamer. De zolder heeft een vliering waar bergruimte gecreëerd is.
TUIN
De woning beschikt over een heerlijke zonnige tuin rondom, waar vele mogelijkheden zijn. Bij de ingang van het hoofdhuis is een schuur gecreëerd en beschik je over een eigen privé parkeerplaats.
OMGEVING
Vlaardingen is een aantrekkelijke stad in Zuid-Holland met een mix van historische charme en moderne woonvoorzieningen. Het biedt diverse woonwijken, van het historische centrum met karakteristieke panden tot groene, ruim opgezette wijken zoals Holy en de nieuwere Broekpolder. De stad is goed bereikbaar via de A4 en A20, en beschikt over uitstekende openbaar vervoerverbindingen, waaronder metroverbindingen naar Rotterdam. Vlaardingen heeft ook een breed scala aan scholen, winkelcentra en recreatiemogelijkheden, wat het een ideale woonplaats maakt voor zowel gezinnen als werkenden.
BIJZONDERHEDEN
- energielabel B
- volledig verbouwd
- volledig gestukt en geschilderd (binnen en buiten)
- extra geïsoleerd met voorzetwanden en vloerisolatie
- HR ++ glas
- zonnepanelen mogelijk
- bouwjaar 1931
- woonoppervlak 213 m2
- eigen grond 263 m2
- zeer luxe turn key woning
- camerabeveiliging (5 stuks) en alarmsysteem
- gekoppelde rookmelders
- glasvezel internet, netwerkaansluitingen hele huis
- airco 7.2 in woonkamer extra capaciteit met mogelijkheid tot verwarming
- vloerverwarming gehele woning
- luxe keuken
- speciale verlichting in keuken
- bartafel in keuken
- luxe badkamer
- A merk sanitair
- inloopkast slaapkamer
- extra inloopkast
- wasruimte met op maat gemaakte kasten
- gastenverblijf of dubbele bewoning mogelijk via eigen entree
- tuin met achterom
- gratis parkeren, voldoende parkeergelegenheid
- schuur met stroom en verlichting
- sleuteloverdracht in overleg, kan spoedig
WOZ waarde
Burgemeester de Bordesplein 7
3135HE Vlaardingen
01-01-2023 188.000 euro
WOZ-waarde
Rozenlaan 1A (nieuwe ingang hoofdhuis)
3135XL Vlaardingen
01-01-2023 363.000 euro
We laten deze gave en complete turn key woning graag zien en laat je verrassen door de sfeer en afwerking.
Eigen woning nog verkopen? We geven je gratis advies en een gratis waardebepaling.
Verkopen doe je met RE/MAX Totaal Makelaars | Libby Voormeulen.
Deze informatie is met de nodige zorgvuldigheid samengesteld. Hierbij zijn wij deels afhankelijk van informatie die wij van derden ontvangen. Onzerzijds wordt geen aansprakelijkheid aanvaard voor enige onvolledigheid, onjuistheid of anderszins, dan wel de gevolgen daarvan. Alle opgegeven maten en oppervlakten zijn indicatief.
MAKELAAR Libby Voormeulen
