Prinses Margrietlaan 20 te Maasland
In een rustige en prettige woonstraat in het geliefde Maasland staat deze fijne eengezinswoning met een woonoppervlakte van circa 114 m². De woning is gebouwd in 1963 en beschikt over drie woonlagen, meerdere slaapkamers en een praktische indeling. Dankzij de aanwezige isolatievoorzieningen en zonnepanelen heeft de woning een energielabel B, wat zorgt voor comfortabel en energiezuinig wonen.
De woning biedt een solide basis voor wie op zoek is naar een ruime gezinswoning op een mooie plek in het dorp.
Een huis waar u uw eigen woonwensen verder vorm kunt geven en waar ruimte, licht en ligging samenkomen.
Indeling
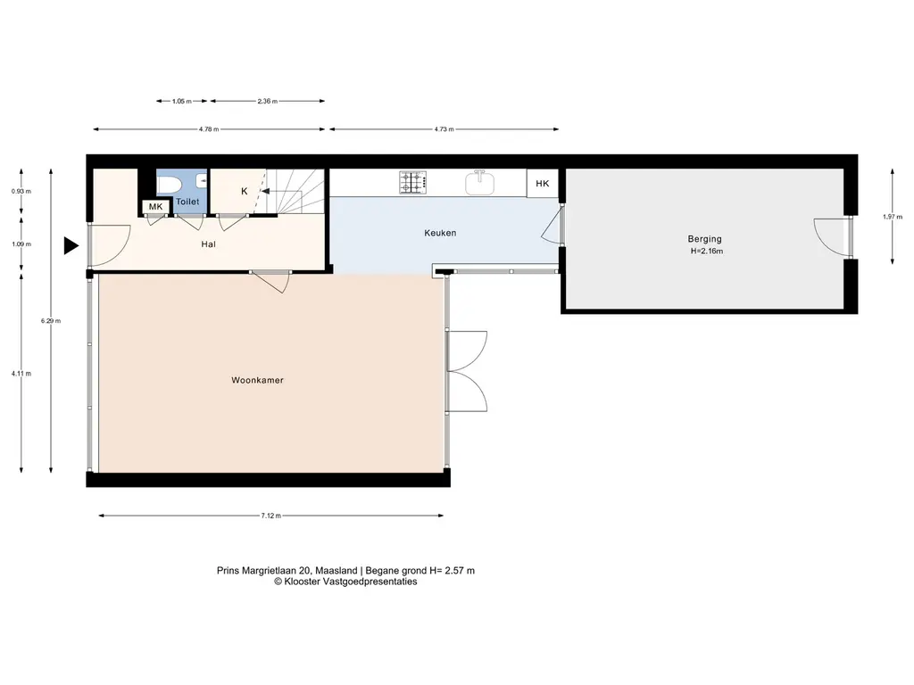
Bij binnenkomst komt u in de hal met meterkast, toilet en de trap naar de eerste verdieping.
Vanuit de hal loopt u door naar de woonkamer, een lichte en prettige leefruimte met uitzicht op de voortuin.
Aan de achterzijde van de woning bevindt zich de keuken met zicht op de tuin. Vanuit hier heeft u direct toegang tot de achtertuin, waar zich tevens een praktische berging bevindt.
Op de eerste verdieping bevinden zich drie slaapkamers en de badkamer. De badkamer dateert oorspronkelijk uit 2003 en is in 2025 gedeeltelijk vernieuwd met onder andere een nieuwe douchecabine, douchekop, wastafel en spiegelkast.
Via een vaste trap bereikt u de tweede verdieping. Deze verdieping wordt momenteel gebruikt als slaapkamer en biedt daarnaast ruimte voor opslag of een werkplek.
Kenmerken van de woning:
- 114 m2 woonoppervlakte
- Aangebouwd stenen berging van 17 m2
- De woning beschikt over HR++ beglazing en kunststof kozijnen.
- 10 zonnepanelen (2020)
- CV-ketel Remeha (2019)
- Energielabel B
- Voorzien van airconditioning
- Voorzien van op maat gemaakt screen
Wonen in Maasland
Maasland is een sfeervol dorp in de gemeente Midden-Delfland en staat bekend om zijn karakter, rust en groene omgeving. Het dorp heeft een gezellige dorpskern met winkels, horeca en voorzieningen. Tegelijkertijd bevindt u zich hier midden in het prachtige polderlandschap van Midden-Delfland, waar u eindeloos kunt wandelen, fietsen en genieten van de natuur.
De ligging is daarnaast bijzonder gunstig. Steden als Delft, Rotterdam en Den Haag zijn eenvoudig bereikbaar, waardoor u hier rustig en dorps woont met alle stedelijke voorzieningen binnen handbereik.
Kadastrale gegevens
De woning is kadastraal bekend als gemeente Midden-Delfland, sectie H, perceel 2522.
Clausules
In de koopovereenkomst zal een ouderdomsclausule worden opgenomen, aangezien de woning ouder is dan 20 jaar. Dit betekent dat koper accepteert dat de woning mogelijk niet voldoet aan de hedendaagse eisen die men aan nieuwbouw of moderne woningen mag stellen.
Bent u benieuwd of deze woning bij u past? U bent van harte welkom om de woning te komen bekijken.
Neem gerust contact met ons op voor het plannen van een bezichtiging, wij laten u deze woning graag persoonlijk zien.



















































