APPARTEMENT MET DRIE SLAAPKAMERS EN ZONNIG BALKON!
In een fijne omgeving met het winkelcentrum “Wijkerbaan” om de hoek ligt op de vierde verdieping van een keurig appartementencomplex dit ruime en netjes onderhouden 4-kamer appartement. Met maar liefst 82 vierkante meter gebruiksoppervlakte is dit echt een groot appartement. Vanuit de woonkamer en vanaf het zonnige balkon heeft u een vrij uitzicht over Beverwijk. Dit appartement aan Pelikaanhof 68 heeft een groot en zonnig balkon, ruime woonkamer, moderne keuken (2021), badkamer, apart toilet, maar liefst drie slaapkamers en natuurlijk een ruime eigen berging. Tel daarbij op dat het appartementencomplex is voorzien van een lift en u bent verkocht!
RE/MAX makelaar Daan Happe laat u graag dit mooie appartement zien.
Neem snel contact met hem op om een bezichtiging in te plannen.
Het appartementencomplex is zeer centraal gelegen tussen Beverwijk en Heemskerk. Het winkelcentrum “Wijkerbaan” is naast het appartementencomplex gelegen. Hier vindt u diverse winkels, supermarkten en horecagelegenheden. Busverbindingen, scholen en sportcomplexen zijn op korte afstand te vinden en met de fiets bent u binnen een paar minuten bij het treinstation en het centrum van Beverwijk. Met de auto bent u via de uitvalswegen zo op de A9 of de A22 welke verbinding geven met de kop van Noord-Holland en Amsterdam.
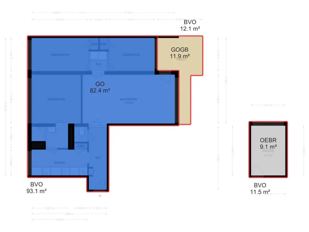
Vanuit de ruime centrale hal waar ook de brievenbussen zijn te vinden bereikt u via de trap of lift de vierde verdieping met de voordeur van het appartement. De grote berging van maar liefst 9 m² is op de begane grond van het complex gesitueerd.
Woonkamer:
De woonkamer is ruim en door de grote raampartijen voorzien van veel lichtinval. Vanuit de woonkamer heeft u een vrij uitzicht over Beverwijk. De wanden en het plafond zijn strak afgewerkt en voorzien van stucwerk of behang. De vloer is voorzien van laminaat welke in 2024 is gelegd. Zo goed als nieuw dus!
Uniek Balkon:
Vanuit de woonkamer heeft u toegang tot het zeer ruime balkon welke op het zuidoosten is gelegen. Het balkon is ruim genoeg om een lounge set neer te zetten of meerdere stoelen. De combinatie van de ruimte, uitzicht en zonnige ligging maken dit balkon uniek! Hier kunt u echt genieten.
Keuken:
De keuken is geplaatst in 2021, van alle gemakken voorzien en geheel van deze tijd. Alles wat u nodig heeft is aanwezig. Denk hierbij aan een vaatwasser, koel-vries combinatie, combi-oven, inductiekookplaat en een kraan voor kokend en gekoeld water. Kortom: een zeer recente keuken waarin het u aan niets ontbreekt!
Slaapkamers:
Het appartement beschikt over drie ruime slaapkamers. U vindt twee slaapkamers aan de achterzijde van het appartement. Vanuit de grootste slaapkamer heeft u een directe toegang tot de badkamer. De slaapkamer aan de voorzijde heeft uitzicht op het ruime balkon. Ook in de slaapkamers ligt een laminaatvloer en zijn de wanden voorzien van stucwerk of behang.
Badkamer en toilet:
De badkamer is vanuit de grootste slaapkamer en de keuken bereikbaar. U vindt hier een ruime douche en wastafel met spiegel. Het aparte toilet is vanuit de hal bereikbaar.
Berging:
Dit appartement beschikt over een aparte berging. Met een vloeroppervlakte van bijna 9 m² betreft het echt een grote berging. Hier kunt u met gemak meerdere fietsen plaatsen en spullen opbergen die u niet dagelijks gebruikt.
Bijzonderheden:
- Moderne keuken (2021)
- Ruim en zonnig balkon
- Lift aanwezig in complex
- Actieve VVE met een meer jaren onderhoudsplan
- Energielabel B
- Drie slaapkamers
- Nabij winkelcentrum Wijkerbaan
- Zeer ruime berging van bijna 9 m²
RE/MAX makelaar Daan Happe laat u graag dit mooie appartement zien.
Neem snel contact met hem op om een bezichtiging in te plannen.
