Koper-/klussers opgelet!
Bent u handig, creatief en niet bang om de handen uit de mouwen te steken? Droomt u ervan een woning volledig naar eigen smaak en stijl te moderniseren? Dan is Oudemansstraat 81 in Den Haag een unieke kans.
Dit charmante 3-kamer appartement op de eerste verdieping wacht op een nieuwe eigenaar die er weer iets moois van maakt. Een woning met karakter, potentie én een aantrekkelijke vraagprijs.
Gelegen in het levendige Laakkwartier, vindt u hier een centrale locatie met winkels, openbaar vervoer, uitvalswegen en het centrum van Den Haag op korte afstand.
Indeling
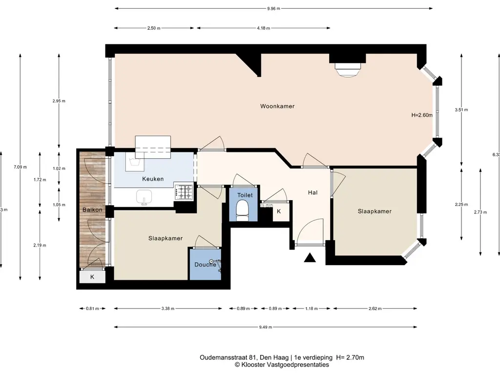
Via de open portiek bereikt u de entree van de woning op de eerste verdieping.
Entree woning, hal v.v. meterkast en separaat toilet. De woonkamer is ruim opgezet en geniet van veel natuurlijk licht. Authentieke details, zoals het prachtige glas-in-lood, zijn behouden gebleven en geven de woning direct sfeer en karakter. De keuken is basic doch netjes uitgevoerd en voorzien van 4-pits gaskookplaat, afzuigkap en wasmachineaansluiting
Vanuit de keuken heeft u toegang tot het balkon aan de achterzijde. Tevens is er een gezellige barverbinding tussen de woonkamer en de keuken, wat zorgt voor een speelse en open uitstraling.
Aan de achterzijde bevindt zich de ruime hoofdslaapkamer, voorzien van een douchegedeelte met mechanische ventilatie. Aan de voorzijde treft u de tweede slaapkamer - ideaal als werk-, kinder- of logeerkamer.
Kortom een woning welke om aandacht vraagt maar absoluut potentie heeft!
Bijzonderheden
- Type woning: Appartement (1e etage)
- Woonoppervlak: ca. 61 m²
- Bouwjaar: 1933
- Gelegen op eigen grond
- Actieve VvE, bijdrage € 150,- per maand (achterzijde wordt momenteel geschilderd)
- Verwarming middels gaskachels
- De woning dient gerenoveerd te worden
- Ouderdoms- en materialenclausule van toepassing
- Gelegen in beschermd stadsgezicht
- Oplevering in overleg
Een kans voor de handige koper
Bent u op zoek naar een betaalbare woning met karakter én toekomstwaarde? Dan is dit appartement absoluut een bezichtiging waard.
Neem contact op en ontdek zelf de mogelijkheden van Oudemansstraat 81.
Wie ziet hier zijn of haar droomproject?

































