Je wil heel graag in het centrum wonen met alle voorzieningen op loop- fietsafstand? Neem dan zeker een kijkje bij dit 3-kamer appartement aan de Nieuwe Markt 75b in Roosendaal.
Op deze absolute toplocatie, midden in het centrum, nabij winkels, terrasjes, restaurants en schouwburg gelegen, royaal 3-kamer appartement op de tweede verdieping met berging op de begane grond.
Bekijk de woning ook via onze Virtual Tour op onze website.
HARTJE STAD! TWEE BALKONS!
Dit lichte appartement is grotendeels voorzien van kunststof kozijnen, HR++ dubbele beglazing, eigen HR CV combiketel (Remeha, 2016), apart toilet, badkamer, keuken en 2 slaapkamers.
Voorpui/entree: de huidige entree (voorpui) wordt op (korte) termijn gemoderniseerd (vervangen/gerenoveerd) naar een meer representatieve entree.
Begane grond
Gemeenschappelijke entree voorzien van trappenhal, brievenbussen en meterkasten. Via een trap naar beneden is de eigen berging (circa 6 m²) in het souterrain bereikbaar.
2e verdieping
Gang/entree met intercom, twee handige vaste kasten, waarvan één voorzien van de meterkast (4 groepen en een aardlekschakelaar). Vanuit de hal zijn eigenlijk alle ruimtes in het appartement te bereiken.
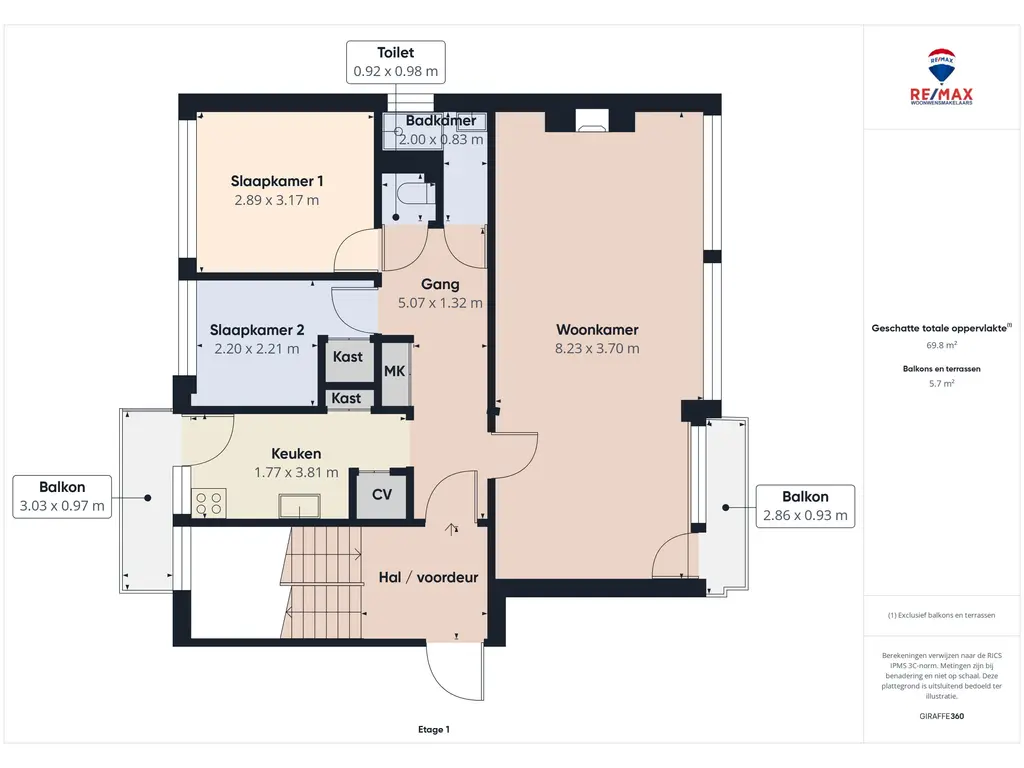
Mooie, lichte, royale woonkamer (circa 30 m²) met sierhaard en toegang tot zonnig balkon (circa 3 m²) aan de voorzijde gelegen op het zuidwesten. De vloer van de woonkamer is voorzien van een nette lichte laminaatvloer.
Keuken (circa 6 m²) met kast waarin de opstelplaats van de HR CV combiketel (Remeha, 2016). Net keukenblok voorzien van afzuigkap en wasmachineaansluiting en toegang tot balkon (circa 3 m²) aan de achterzijde. Verder aansluitingen voor losse apparatuur. De keuken is voorzien van houten kozijnen met enkele beglazing en de vloer is afgewerkt met plavuizen.
Het separate toilet is geheel betegeld. Compacte badkamer voorzien van doucheruimte en wastafelmeubel.
Slaapkamer I (circa 9 m²) is aan de achterzijde gelegen en voorzien van kunststof kozijnen met een draai-/kiepraam. Slaapkamer II (circa 6 m²) is ook aan de achterzijde gelegen en voorzien van vaste kast en aansluitingen voor wasmachine/droger. Beide slaapkamers zijn voorzien van een nette lichte laminaatvloer.
Momenteel wordt door de VvE ook nog een garagebox in de Torenstraat gehuurd ten behoeve van het stallen van uw fiets. Dit zit ook in de servicekosten.
Kortom: bent u op zoek naar een leuk, modern 3-kamer appartement midden in het bruisende centrum van de stad, dan maken wij graag met u een afspraak voor bezichtiging.
Aanvaarding in overleg.
Bouwjaar: ca. 1962.
Woonoppervlakte: ca. 67 m².
Berging: ca. 6 m².
Energielabel: C
Servicekosten € 248,- per maand.
