Zoek je een eigen plek op een centrale locatie, maar zonder het gevoel van inkijk van alle kanten? Dan is dit jouw kans.
Deze lichte bovenwoning ligt in een rustige straat in het populaire Valkenboskwartier en biedt vrij uitzicht op een groen park en speelplein. Hier woon je rustig, terwijl je binnen enkele minuten de levendigheid van de Weimarstraat en Fahrenheitstraat bereikt voor koffie, lunch, boodschappen of een borrel.
De woning op de eerste verdieping combineert karakter – met bouwjaar 1909 en hoge plafonds – met volop potentie en een indeling die goed aansluit bij een moderne levensstijl.
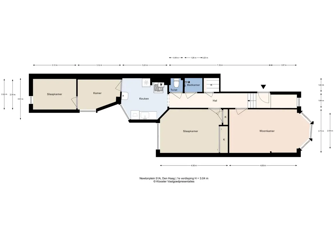
Indeling
Via de vaste trap bereik je de eerste verdieping. De hal geeft toegang tot de ruime woonkamer: een prettige leefruimte met hoge plafonds en grote ramen, waardoor het daglicht rijkelijk naar binnen valt. Overdag werk je hier comfortabel aan de eettafel met uitzicht op het groen en ’s avonds kom je tot rust in een lichte en sfeervolle woonkamer.
De master bedroom is ruim en licht en beschikt over dubbele beglazing en de karakteristieke hoge plafonds die zo kenmerkend zijn voor woningen uit deze periode.
Verder beschikt de woning over een separaat toilet en een aparte badkamer.
De keuken biedt de mogelijkheid om deze volledig naar eigen smaak te moderniseren — dé kans om hier jouw eigen stijl te realiseren en tegelijkertijd waarde toe te voegen aan de woning.
Aan de achterzijde bevinden zich twee kamers, waarvan de achterste bereikbaar is via de eerste. Ideaal als combinatie van slaapkamer met walk-in-closet, thuiswerkruimte of hobbykamer. Perfect voor wie hybride werkt of extra flexibiliteit zoekt.
Kortom, een woning met:
- Vrij uitzicht zonder directe inkijk
- Een centrale locatie met alle voorzieningen op loopafstand
- Hoge plafonds en veel lichtinval
- Flexibele indeling, ideaal voor thuiswerken
- Mogelijkheden om te moderniseren en waarde toe te voegen
- Een woning waar je direct comfortabel kunt wonen én die ruimte biedt om er echt jouw eigen plek van te maken.
Plan een bezichtiging en ervaar zelf hoe licht, rustig en prettig deze woning aanvoelt.
Bijzonderheden
WONINGKENMERKEN
Adres: Newtonstraat 51-A
Type woning: Bovenwoning
Bouwjaar: 1909
Woonoppervlakte: 69 m²
Aantal kamers: 4
Energielabel: F
Verwarming: CV-ketel (Remeha, 2021)
Deels voorzien van dubbel glas
Hoge plafonds
Gelegen nabij de Weimarstraat en Fahrenheitstraat
Are you looking for a place of your own in a central location, but without the feeling of living in a standard apartment overlooked from every side? Then this could be your opportunity.
This bright upper-floor apartment is located on a quiet street in the popular Valkenboskwartier, with open views over a green park and playground. Here you enjoy peaceful living while being just a few minutes away from the lively Weimarstraat and Fahrenheitstraat, where you’ll find cafés, lunch spots, shops, and everything you need for daily life.
Situated on the first floor, this charming apartment combines character (built in 1909 with high ceilings) with plenty of potential and a layout that fits perfectly with modern living.
Layout
A fixed staircase leads to the first floor. The hallway provides access to the spacious living room — a comfortable living area with high ceilings and large windows that allow plenty of natural light to flow in. During the day you can work at your dining table overlooking the greenery, while in the evening you can relax here in complete tranquility.
The master bedroom is spacious and bright, featuring double glazing and characteristic high ceilings.
The property also includes a separate toilet and an independent bathroom.
The kitchen offers the opportunity to fully redesign it to your own taste — the perfect chance to create your own style and add value to the home.
At the rear of the property there are two additional rooms, with the second room accessible through the first. These spaces are ideal as a bedroom with a walk-in closet, a home office, or a hobby room — perfect for those who work hybrid.
In short, a home that offers:
- Open views without direct overlooking neighbours
- A central location with everything within walking distance
- High ceilings and abundant natural light
- A flexible layout ideal for working from home
- The opportunity to modernize and create additional value
- A home where you can live comfortably today while still having the space and potential to truly make it your own.
Schedule a viewing and experience for yourself how bright and peaceful this apartment feels.
Specialties
PROPERTY FEATURES
Address: Newtonstraat 51-A
Property type: Upper-floor apartment
Year of construction: 1909
Living area: 69 m²
Number of rooms: 4
Energy label: F
Heating: Central heating boiler (Remeha, 2021)
Partially fitted with double glazing
High ceilings
Located near Weimarstraat and Fahrenheitstraat
















