Bent u op zoek naar een 3/4 kamer appartement op een super leuke locatie dan bent u hier aan het juiste adres.
Dit appartement is voorzien van ruime woon-/eetkamer, moderne keuken, keurig nette badkamer (voorheen slaapkamer), 2 ruime slaapkamers en een zonnig balkon.
Gelegen in de gewilde Vruchtenbuurt, op loopafstand van de gezellige Vlierboomstraat met winkels en lunchgelegenheden, nabij het strand en diverse recreatie gebieden.
Kortom een heerlijk appartement welke zeker een bezichtiging waard is!
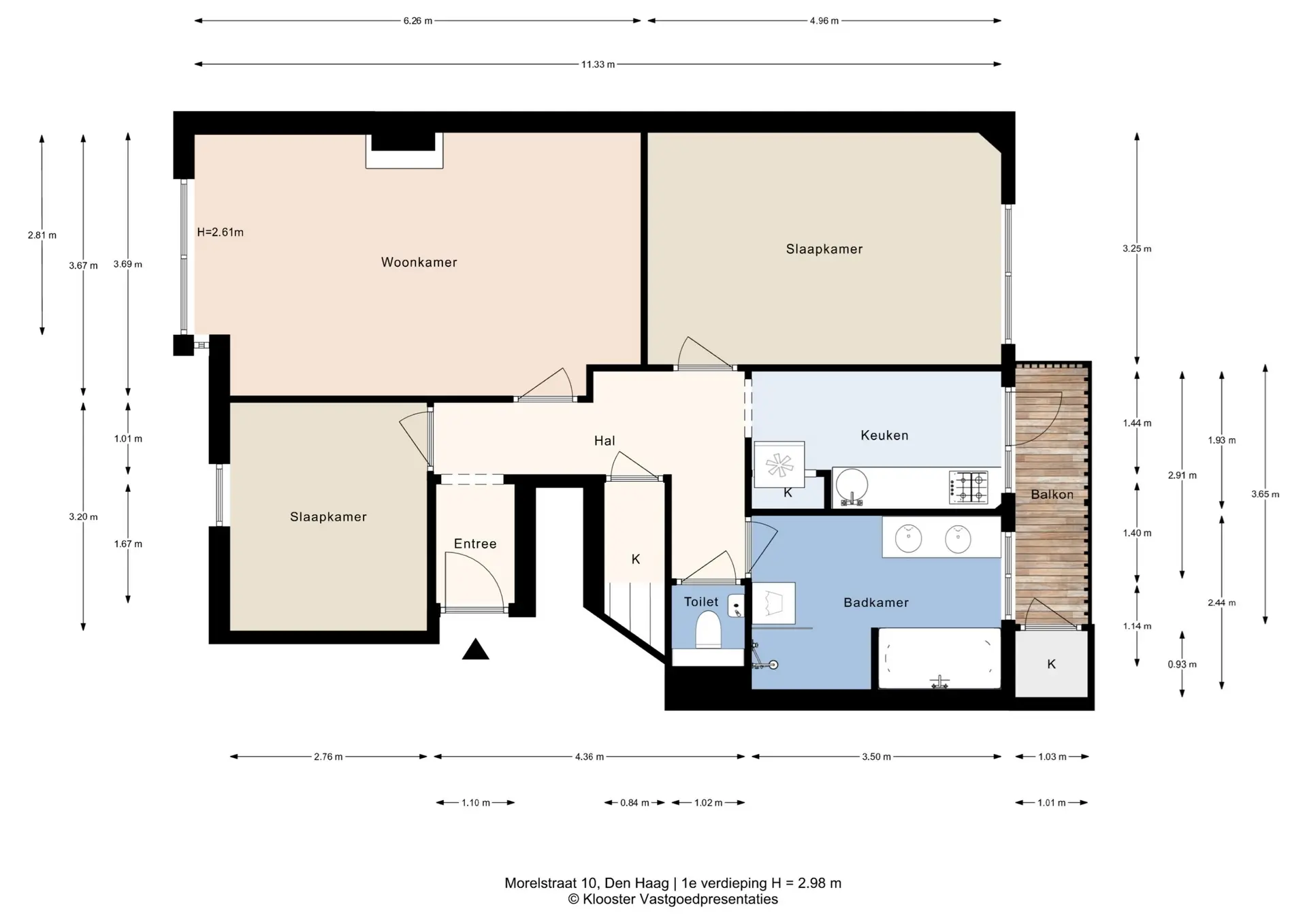
Indeling
Open portiek, trapopgang naar de eerste verdieping, entree woning, ruime hal v.v. meterkast en modern hangend toilet. Vanuit de hal toegang tot alle vertrekken. De woon-/eetkamer is aan de voorzijde van de woning gelegen en voorzien van veel lichtinval en er zitten oude details in het appartement zoals de prachtige lijst plafonds en het glas in lood raam, de achterkamer is thans in gebruik als werkkamer maar kan uiteraard ook prima fungeren als hoofdslaapkamer. Aan de voorzijde treft u de slaapkamer aan. De keuken is uitgerust in een neutrale kleurstelling en is voorzien van 4 pits gas kookplaat, oven, recirculatie kap, vaatwasser, koel-/vriescombinatie en opstelplaats cv-combi ketel (Remeha, bouwjaar 2021). Vanuit de keuken toegang tot het fijne balkon met vaste kast. De naastgelegen badkamer (voorheen slaapkamer) is van zeer riante afmetingen en v.v. ligbad, inloopdouche, dubbel wastafelmeubel, handdoekradiator, mechanische ventilatie en ook vanuit de badkamer heeft u openslaande deuren naar het balkon.
Kortom een keurig onderhouden appartement welke u zonder extra kosten zo kunt betrekken!
Bijzonderheden
- Type woning: appartement
- Woonoppervlak: ca. 77 m2
- De grond is belast met erfpacht, de canon bedraagt € 198,- per ½ jaar (eeuwigdurend uitgegeven)
- De V.v.E. is actief, bijdrage € 75,- per maand
- De woning is grotendeels v.v. dubbel glas
- Verwarming en warm water middels cv-combi ketel (Remeha, bouwjaar 2021)
- De woning is keurig onderhouden
- De woning beschikt over energielabel B
- Gezien het bouwjaar van de woning zullen wij de ouderdom-en materialenclausule opnemen in de koopovereenkomst
- De woning is gelegen in een beschermd stadgezicht
- Oplevering in overleg

















































