Deze ruime en luxe afgewerkte 2-onder-1-kapwoning is prachtig gelegen aan de geliefde Meerwedesingel.
Hier geniet u dagelijks van een vrij uitzicht over het water aan de voorzijde, terwijl u profiteert van alle comfort en luxe binnenshuis. De woning biedt een eigen oprit, een aangebouwde garage, achtertuin op het zuiden, maar liefst vier slaapkamers én een lichte tuinkamer. Ook heeft u de mogelijkheid om een kantoor of praktijk aan huis te realiseren in de huidige garage.
Dankzij de combinatie van hoogwaardige afwerking, moderne installaties zoals vloerverwarming, airco en zonnepanelen, én de centrale ligging nabij winkelcentrum Carnisse Veste en de snelle tramverbinding naar Rotterdam, is dit een woning die alles heeft om jarenlang comfortabel te wonen.
Of u nu houdt van gezellig samenzijn bij de haard, koken in een luxe keuken met diverse inbouwapparatuur, of buiten genieten in de zonnige tuin met olijfboom en volop privacy: deze woning biedt het allemaal.
Indeling met indicatieve maten
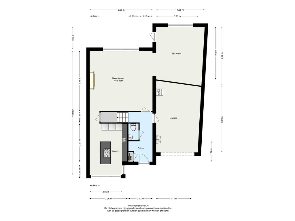
BEGANE GROND:
U betreedt de woning via de ruime hal met garderobe, meterkast en modern toilet. Vanuit hier heeft u toegang tot de aangebouwde garage met aansluiting voor wasmachine, droger en een vaste wastafel.
Een fraaie zwart stalen deur leidt naar de lichte woonkamer (ca. 30 m²), voorzien van een stijlvolle parketvloer met vloerverwarming en glad gestucte wanden en plafonds. De sfeervolle open haard vormt een centraal middelpunt en via de grote schuifpui bereikt u de zonnige achtertuin.
Achter de garage is een lichte tuinkamer (ca. 19 m²) gecreëerd, grenzend aan de woonkamer, met een groot raam en toegang tot de tuin, een heerlijke plek om te lezen, te werken of heerlijk te tafelen met vrienden of familie.
De halfopen keuken (ca. 13 m²) aan de voorzijde is een echte blikvanger: een modern kookeiland met 5-pits inductiekookplaat en bar voor vier personen vormt het hart. De hoekopstelling is voorzien van een Quooker, vaatwasser, combi-oven, combi-stoomoven, aparte koelkast en vriezer. De hoge ramen aan de voorzijde zorgen voor een mooie lichtinval en uitzicht over de singel.
De zonnige achtertuin, gelegen op het zuiden, is fraai aangelegd met veel groen, een markante olijfboom en diverse zitplekken. Dankzij de hoge schuttingen, de leibomen en het elektrische zonnescherm geniet u van privacy en comfort.
EERSTE VERDIEPING:
De overloop geeft toegang tot twee royale slaapkamers en de badkamer.
Slaapkamer 1 (ca. 21 m²) ligt aan de voorzijde.
Slaapkamer 2 (ca. 21 m²) ligt aan de achterzijde en is voorzien van een elektrsich bedienbaar zonnescherm. Deze kamer biedt de mogelijkheid om eenvoudig op te splitsen in twee kamers.
Beide slaapkamers zijn voorzien van airconditioning.
De badkamer (ca. 8 m²) is modern en compleet: een ligbad in de uitbouw, een aparte inloopdouche, een dubbel wastafelmeubel en een tweede hangend toilet. De combinatie van grote witte tegels en donkergrijze tegels geeft een luxe uitstraling. Ook hier is vloerverwarming aanwezig.
TWEEDE VERDIEPING:
De tweede verdieping biedt nog eens twee volwaardige slaapkamers.
Slaapkamer 3 (ca. 21 m²) aan de achterzijde beschikt over een dakkapel, een Velux dakraam met plissé rolgordijn, een op maat gemaakte kast en airconditioning. Zowel de dakkapel en het Velux dakraam zijn voorzien van een elektrisch rolluik.
Slaapkamer 4 (ca. 12 m²) aan de voorzijde heeft twee grote Velux dakramen met plissé rolgordijnen. Ook hier is airconditioning aanwezig.
Daarnaast vindt u op deze verdieping een bergkast met de opstelling van de CV-ketel en extra bergruimte onder het schuine dak. De Velux ramen zijn in 2024 vervangen door kunststof varianten, waardoor onderhoud minimaal is.
- Riante 2-onder-1-kapwoning aan de singel met vrij uitzicht over water
- Eigen oprit en aangebouwde garage met aansluitingen voor de wasmachine en de droger
- Zonnige achtertuin op het zuiden met olijfboom, veel privacy en een achterom
- Tuinkamer grenzend aan de woonkamer
- Moderne open keuken met luxe inbouwapparatuur en Quooker
- Parketvloer met vloerverwarming op de begane grond
- Sfeervolle open (hout)haard in de woonkamer
- Complete badkamer met ligbad, inloopdouche en vloerverwarming
- Vier slaapkamers, allen voorzien van airconditioning
- 12 zonnepanelen en recent vernieuwde kunststof Velux dakramen (2024)
Makelaar: Marco Bos
