for English see text below
Families opgelet!
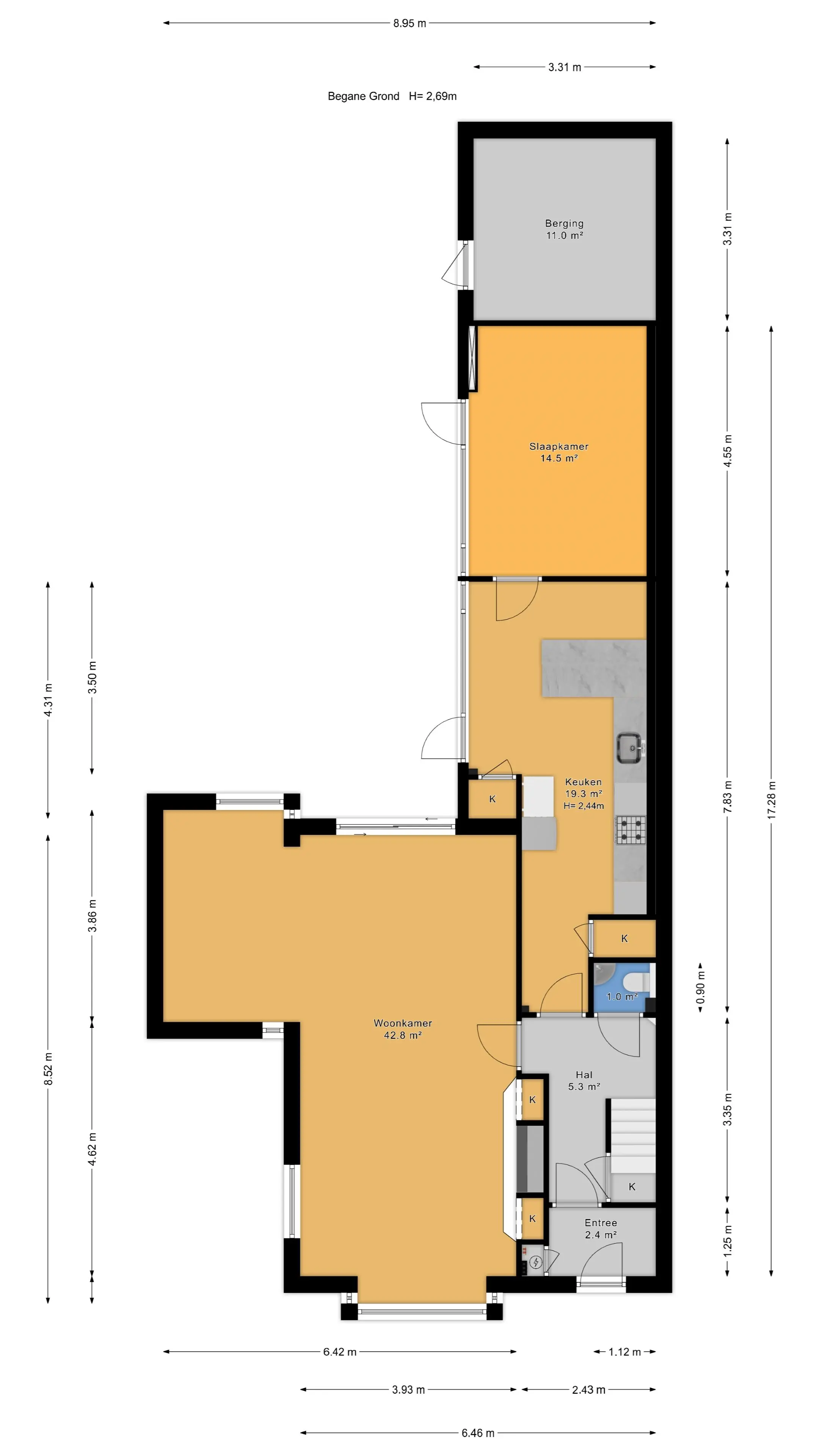
Ruim drielaags herenhuis met 6 slaapkamers, zonnige achtertuin, 2 balkons én berging
Dit rustig gelegen half vrijstaand hoekherenhuis (1950) heeft een gebruiksoppervlakte wonen van 180m² en ligt op een perceel van 292m². De woning heeft een sfeervolle uitstraling en kenmerkt zich door overhellende daklijsten, een erker en fraai metselwerk. Daarnaast beschikt het huis over een royale voor-, zij- en achtertuin, een eigen oprit en is het gelegen op eigen grond.
De woning is gelegen in een populaire en kindvriendelijke wijk met groene lanen en veel jonge gezinnen. De ligging is bijzonder gunstig door de directe nabijheid van een manege en diverse sportverenigingen zoals hockey en tennis. Het winkelcentrum Westfield Mall of the Netherlands bevindt zich op loopafstand. Zowel het historische centrum van Voorburg als het oude centrum van Leidschendam zijn snel per fiets bereikbaar.
Daarnaast is de woning uitstekend bereikbaar via uitvalswegen en openbaar vervoer en zijn er scholen voor basis- en middelbaar onderwijs in de directe omgeving aanwezig.
Deze woning is vanwege grootte en indeling uitermate geschikt voor meerpersoons huishoudens. Het betreft een karaktervol familiehuis met een prettige ligging en volop mogelijkheden om naar eigen wens te moderniseren. Een bezichtiging is zeker de moeite waard. Zie ik u snel?
Pluspunten
Sfeervol hoekherenhuis met karakteristieke architectuur
Veel licht en privacy door de hoekligging
Zes slaapkamers (!) verdeeld over drie woonlagen
Royale woon-/eetkamer (43m²) met werkende open haard en schuifpui
Eenvoudige keuken (19m²) met inbouwapparatuur
Badkamer met douche en dubbele wastafel
Zonnige, diepe en brede achtertuin
Stenen berging met elektra
Gemakkelijk parkeren; royale oprit op eigen terrein
Energielabel C, geldig tot mei 2028
Overige kenmerken
Eigen grond
Kozijnen voorzien van HR en HR++ glas
Nefit CV installatie is van 2004, januari 2026 onderhoudsbeurt gehad
Vloer-, dak- en spouwmuurisolatie
Buitenschilderwerk uitgevoerd in 2022 door erkend schildersbedrijf
Oplevering in overleg
—-----------------------------------------
Attention families!
Spacious three-story townhouse with 6 bedrooms, a sunny backyard, 2 balconies, and a storage room.
This quietly located semi-detached corner townhouse (built in 1950) has a living area of 180m² and sits on a 292m² plot. The house has a charming appearance and is characterized by sloping rooflines, a bay window, and beautiful brickwork. In addition, the house has a spacious front, side, and back garden, a private driveway, and is situated on freehold land.
The house is located in a popular and family-friendly neighborhood with green lanes and many young families. The location is particularly advantageous due to the immediate proximity of a riding school and various sports clubs such as hockey and tennis. The Westfield Mall of the Netherlands shopping center is within walking distance. Both the historic center of Voorburg and the old center of Leidschendam are easily accessible by bike. In addition, the house is easily accessible via arterial roads and public transport and there are primary and secondary schools in the immediate vicinity.
This property, due to its size and layout, is ideal for multi-person households. It's a charming family home in a convenient location with ample opportunities for modernization. A viewing is definitely worthwhile. See you soon!
Pro’s
Charming corner townhouse with distinctive architecture
Lots of light and privacy thanks to the corner location
Six bedrooms (!) spread over three floors
Spacious living/dining room (43m²) with a working fireplace and sliding doors
Simple kitchen (19m²) with built-in appliances
Bathroom with shower and double sink
Sunny, deep, and wide backyard
Brick shed with electricity
Easy parking; Spacious driveway on private property
Energy label C, valid until May 2028
Other features
Freehold land
Frames fitted with HR and HR++ glass
Nefit central heating system from 2004, serviced in January 2026
Floor, roof, and cavity wall insulation
Exterior painting carried out in 2022 by a certified painting company
Completion date in consultation





























