INSTAPKLAAR, 100 M², A++ EN EIGEN CARPORT – COMFORTABEL WONEN
Aan het groene Marshallplein in Rijswijk ligt dit ruime, lichte en uitstekend onderhouden 4-kamerappartement van circa 100 m², gelegen op de tweede verdieping van een verzorgd appartementencomplex. Wat deze woning écht bijzonder maakt, is de recente grootschalige verduurzaming (2024), waardoor je hier woont met het comfort van nieuwbouw, maar in een rustige en groene woonomgeving.
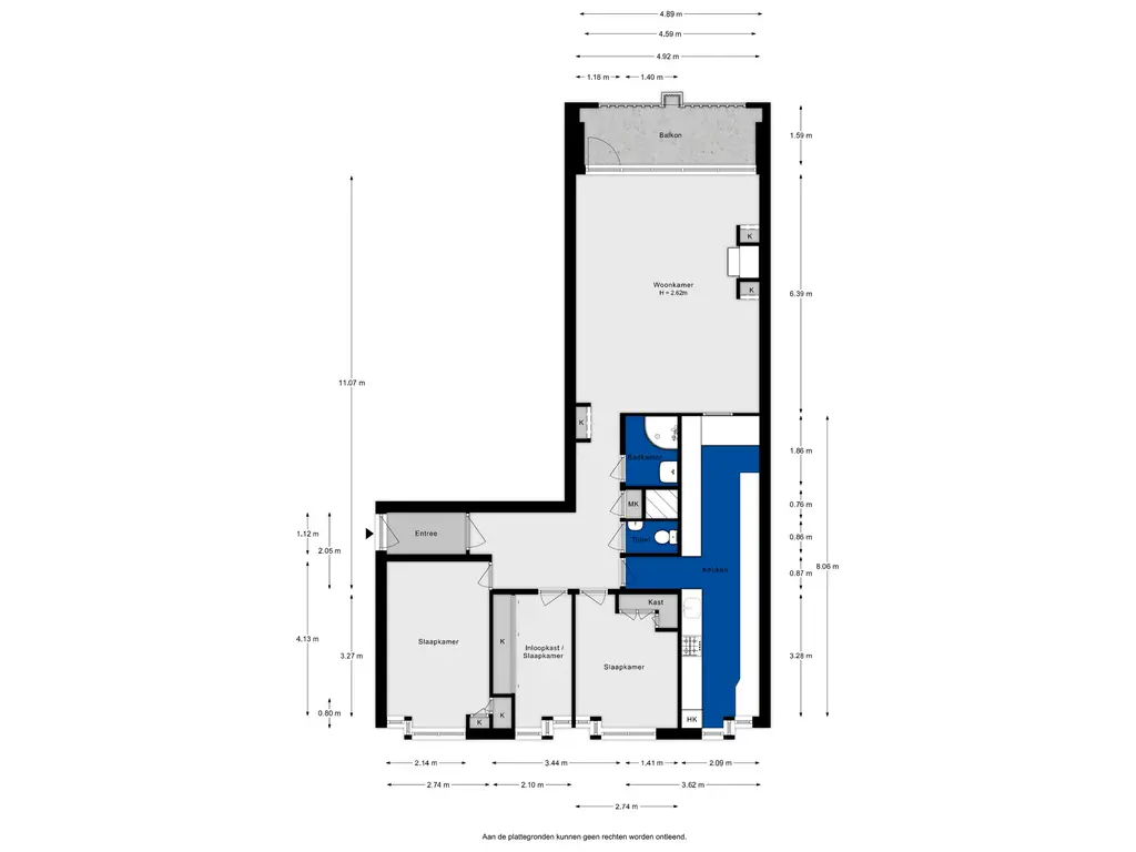
Met drie volwaardige slaapkamers, een royale woonkamer, een ruime designkeuken, een zonnig balkon én een eigen carport biedt dit appartement een prettige combinatie van ruimte, comfort en gebruiksgemak — ideaal voor starters die willen doorgroeien, senioren die gelijkvloers en comfortabel willen wonen, of expats die op zoek zijn naar een goed bereikbare en instapklare woning. Woningen uit 1979 die zó ver zijn verduurzaamd, kom je zelden tegen — en hier hoef je zelf niets meer te investeren.
ENGLISH VERSION BELOW
DUURZAAM & TOEKOMSTBESTENDIG
Dit appartement maakt onderdeel uit van een omvangrijk verduurzamingsproject (totale investering circa € 5,5 miljoen), waarmee het gehele complex naar een zeer hoog niveau is gebracht. Het resultaat is een energiezuinige, comfortabele en toekomstbestendige woning met onder andere:
• Energielabel A++
• Warmtepompen en zonnepanelen
• Dak-, vloer-, gevel- en muurisolatie (circa 16 cm)
• Hardhouten kozijnen met triple glas
• Nieuwe groepenkast en slimme meter
Deze maatregelen zorgen niet alleen voor lagere energielasten, maar ook voor een stiller, prettiger en constanter binnenklimaat — zomer én winter. Dit maakt de woning extra aantrekkelijk voor wie comfort en voorspelbare woonlasten belangrijk vindt.
WOONKAMER
De royale woonkamer van circa 31 m² is ruim opgezet en voorzien van grote raampartijen, waardoor je geniet van veel natuurlijk licht en een vrij, open uitzicht. De indeling biedt voldoende ruimte voor zowel een comfortabele zithoek als een aparte eethoek, wat de woning prettig maakt voor dagelijks gebruik én voor bezoek.
KEUKEN (2019)
De ruime designkeuken van circa 17 m² is met oog voor detail ontworpen en uitgevoerd in hoogwaardige materialen. De zorgvuldige afwerking en doordachte indeling maken duidelijk dat hier niet is bespaard op kwaliteit of comfort.
De keuken is voorzien van onder andere:
• AEG inbouwapparatuur (pyrolyse oven, vaatwasser, koel-/vriescombinatie)
• ATAG gas-op-glaskookplaat en afzuigkap
• Geïntegreerde wasmachine en droger (blijven optioneel achter)
• Royale werk- en kastruimte
• Philips Hue-verlichting
Het geheel voelt als een hoogwaardige, professionele werkkeuken: strak, degelijk en prettig in gebruik — een ruimte die is gemaakt om dagelijks met plezier in te koken.
SLAAPKAMERS & BADKAMER
Het appartement beschikt over drie goed bemeten slaapkamers, geschikt voor uiteenlopende woonwensen — bijvoorbeeld een hoofdslaapkamer, thuiswerkplek, logeerkamer of hobbyruimte.
De badkamer is functioneel ingericht met een douche, wastafel en badmeubel.
BUITENRUIMTE
Het balkon van circa 7 m² is gelegen op het zuidzuidoosten en voorzien van een elektrisch zonnescherm — ideaal om in de ochtend en middag van de zon te genieten, met voldoende ruimte voor een kleine zitopstelling.
BERGING, PARKEREN & VOORZIENINGEN
• Grote inpandige berging met elektra, direct bij de entree
• Eigen carport op eigen terrein
• Lift aanwezig in het gebouw
• Mechanische ventilatie
• Betaald parkeren in de omgeving; parkeervergunning mogelijk
• Openbare laadpalen voor elektrische auto’s in de straat
Deze voorzieningen maken het appartement extra comfortabel en geschikt voor verschillende levensfasen.
LIGGING & OMGEVING
Het Marshallplein ligt in een rustige, groene woonwijk waar wonen, voorzieningen en bereikbaarheid goed samenkomen.
WINKELS
Op korte afstand bevindt zich winkelcentrum De Bogaard, met een breed aanbod aan winkels en dagelijkse voorzieningen. Daarnaast zijn er twee kleinere winkelcentra in de directe omgeving met gratis parkeergelegenheid. Ook het sfeervolle Oud Rijswijk ligt op korte afstand.
HORECA & ONTSPANNING
In Oud Rijswijk en rondom De Bogaard vind je diverse restaurants, cafés en terrassen. Daarnaast zijn er meerdere parken en groene zones in de omgeving voor ontspanning en recreatie — ideaal voor wandelen, sporten of rustig buiten zijn.
OPENBAAR VERVOER & BEREIKBAARHEID
De bereikbaarheid is uitstekend, zowel met het openbaar vervoer als met de auto:
• Tram 17
• Bus 18 en 23
• Trein via Station Rijswijk
• Metrostation Rijswijk
• Goede aansluiting op uitvalswegen richting Den Haag, Delft en Rotterdam
Hierdoor is de woning ook zeer geschikt voor expats en forenzen.
BIJZONDERHEDEN
• Woonoppervlakte: ca. 100 m²
• 4 kamers, waarvan 3 slaapkamers
• Energielabel: A++
• Bouwjaar: 1979
• Balkon op ZZO met elektrisch zonnescherm (2019)
• Vernieuwde luxe keuken (2019)
• Speciale haard in de woonkamer (2019)
• Hardhouten posten en hoge binnendeuren (2021)
• Eigen carport en ruime berging
• Oplevering: in overleg
VERKOOPINFORMATIE
Heeft u interesse in deze woning, maar moet uw eigen woning nog worden verkocht? Wij denken graag met u mee. Neem gerust contact op met REMAX Totaal Makelaars | Team Kempen voor een vrijblijvend gesprek over de mogelijkheden en een eventuele verkoopstrategie.
Benieuwd of dit jouw nieuwe thuis kan worden? We laten je de woning graag in het echt zien.
REMAX TOTAAL MAKELAARS
Bij REMAX Totaal Makelaars | Team Kempen werken wij niet volgens een standaard draaiboek.
Wij kijken, analyseren en handelen op basis van wat in dát moment het beste is.
Soms zit het verschil in timing. Soms in strategie. En soms in het durven afwijken van de gebaande paden.
Daar waar anderen stoppen, denken wij verder.
Niet impulsief, maar doordacht. Niet standaard, maar passend.
Waar de REMAX ballon verschijnt, ontstaan kansen.
REMAX Totaal Makelaars
Team Kempen | Raymond & Libby
ENGLISH VERSION
MOVE-IN READY, 100 M², A++ AND PRIVATE CARPORT – COMFORTABLE LIVING
Located on the green Marshallplein in Rijswijk, this spacious, bright and excellently maintained 4-room apartment of approximately 100 m² is situated on the second floor of a well-kept apartment complex. What makes this property truly special is the recent large-scale sustainability upgrade (2024), allowing you to enjoy the comfort of a newly built home while living in a quiet and green residential environment.
With three full-size bedrooms, a generous living room, a spacious designer kitchen, a sunny balcony and a private carport, this apartment offers a pleasant combination of space, comfort and convenience — ideal for starters looking to grow, seniors seeking comfortable single-level living, or expats in search of a well-connected, move-in ready home. Properties from 1979 that have been upgraded to this extent are rarely found — and here you won’t need to invest anything yourself.
SUSTAINABLE & FUTURE-PROOF
This apartment is part of an extensive sustainability project (total investment approximately € 5.5 million), which has brought the entire complex to a very high standard. The result is an energy-efficient, comfortable and future-proof home, including:
• Energy label A++
• Heat pumps and solar panels
• Roof, floor, façade and wall insulation (approx. 16 cm)
• Hardwood window frames with triple glazing
• New electrical panel and smart meter
These measures not only ensure lower energy costs, but also a quieter, more pleasant and more stable indoor climate — in both summer and winter. This makes the home particularly attractive for those who value comfort and predictable living expenses.
LIVING ROOM
The generous living room of approximately 31 m² is well laid out and features large windows, providing abundant natural light and an open, unobstructed view. The layout offers ample space for both a comfortable seating area and a separate dining area, making it ideal for daily living as well as entertaining guests.
KITCHEN (2019)
The spacious designer kitchen of approximately 17 m² has been thoughtfully designed and finished with high-quality materials. The careful craftsmanship and well-considered layout clearly show that no compromises were made on quality or comfort.
The kitchen is equipped with, among other features:
• AEG built-in appliances (pyrolytic oven, dishwasher, fridge-freezer)
• ATAG gas-on-glass hob and extractor hood
• Integrated washing machine and dryer (remain optionally)
• Generous worktop and storage space
• Philips Hue lighting
The overall impression is that of a high-quality, professional working kitchen: sleek, solid and pleasant to use — a space designed for everyday cooking enjoyment.
BEDROOMS & BATHROOM
The apartment offers three well-proportioned bedrooms, suitable for various purposes — such as a master bedroom, home office, guest room or hobby space.
The bathroom is functionally designed and features a shower, washbasin and vanity unit.
OUTDOOR SPACE
The balcony of approximately 7 m² is located on the south-southeast and is fitted with an electric sunshade — ideal for enjoying the sun in the morning and afternoon, with enough space for a small seating area.
STORAGE, PARKING & FACILITIES
• Large indoor storage room with electricity, directly by the entrance
• Private carport on own premises
• Elevator in the building
• Mechanical ventilation
• Paid parking in the area; parking permit available
• Public electric vehicle charging points in the street
These facilities make the apartment extra comfortable and suitable for different stages of life.
LOCATION & SURROUNDINGS
Marshallplein is located in a quiet, green residential area where living comfort, amenities and accessibility come together.
SHOPS
Shopping center De Bogaard is within short distance and offers a wide range of shops and daily amenities. In addition, there are two smaller shopping centers nearby with free parking. The charming historic center of Oud Rijswijk is also close by.
DINING & LEISURE
In Oud Rijswijk and around De Bogaard you will find various restaurants, cafés and terraces. There are also several parks and green areas nearby, ideal for walking, sports or relaxation.
PUBLIC TRANSPORT & ACCESSIBILITY
The location is easily accessible by both public transport and car:
• Tram 17
• Bus 18 and 23
• Train via Rijswijk Station
• Rijswijk metro station
• Good connections to main roads towards The Hague, Delft and Rotterdam
This makes the property particularly suitable for expats and commuters.
KEY FEATURES
• Living area: approx. 100 m²
• 4 rooms, including 3 bedrooms
• Energy label: A++
• Year of construction: 1979
• Balcony facing SSE with electric sunshade (2019)
• Renovated luxury kitchen (2019)
• Special fireplace in the living room (2019)
• Hardwood posts and high interior doors (2021)
• Private carport and spacious storage room
• Delivery: by mutual agreement
SALES INFORMATION
If you are interested in this property but still need to sell your own home, we are happy to think along with you. Please feel free to contact REMAX Totaal Makelaars | Team Kempen for a no-obligation discussion about your options and a possible sales strategy.
Curious whether this could be your new home? We would be delighted to show you the property in person.
REMAX TOTAAL MAKELAARS
At REMAX Totaal Makelaars | Team Kempen, we do not work according to a standard playbook.
We observe, analyze and act based on what is best in that moment.
Sometimes the difference lies in timing. Sometimes in strategy. And sometimes in the courage to step off the beaten path.
Where others stop, we continue thinking.
Not impulsively, but thoughtfully. Not standard, but tailored.
Where the REMAX balloon appears, opportunities arise.
REMAX Totaal Makelaars
Team Kempen | Raymond & Libby
































































