Tuin liefhebbers opgelet!
In de gewilde wijk Houtwijk gelegen keurig onderhouden 3 kamer (mogelijkheid tot het creëren van een 4e kamer) benedenwoning met een zeer verrassende groene achtertuin. De woning is keurig onderhouden, heerlijk rustig gelegen en op loopafstand van winkelcentrum Houtwijk, scholen, park, speeltuin, Loosduinen. En circa tien minuten van het strand.
Kortom een woning welke zeker een bezichtiging waard is!
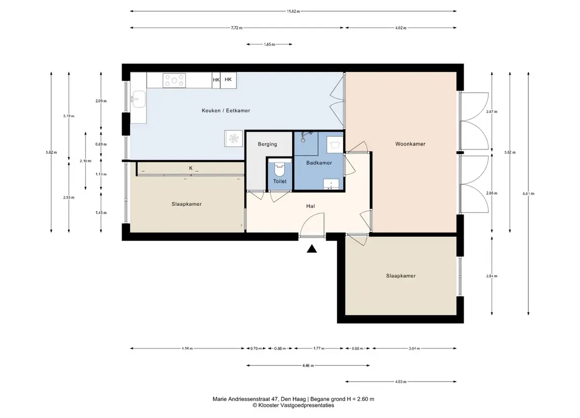
Indeling
Afgesloten portiek, toegang tot de woning op de begane grond. Hal welke toegang geeft tot alle vertrekken. De indeling is door de huidige eigenaar slim veranderd. De woonkamer is aan de achterzijde gelegen waardoor deze zeer tuingericht is. De keuken is hierdoor aan de voorzijde gesitueerd en v.v. 5 pits gasfornuis, afzuigkap, dubbele oven, vaatwasser en apothekerskast. De keuken is heerlijk ruim en hierdoor prima te gebruiken als leefkeuken. Vanuit de woonkamer heeft u toegang tot de heerlijke achtertuin met verrassende afmetingen, diverse zithoeken en riant tuinhuis. De ouderslaapkamer is aan de voorzijde gelegen en voorzien van ruime inbouwkast. De hal is v.v. separate toilet met fontein en naastgelegen berging alwaar opstelplaats cv combi ketel (Intergas, bouwjaar 2018). De badkamer is basic doch keurig netjes en v.v. douche, wastafelmeubel, handdoekradiator en wasmachineopstelling. De tweede slaapkamer is eveneens van prima formaat en aan de achterzijde van de woning gelegen.
Een heerlijke woning met diverse mogelijkheden en een genot voor iedere tuinliefhebber
Bijzonderheden
- Type woning: benedenwoning
- Woonoppervlak: Ca. 81m2
- De V.v.E. is actief, bijdrage € 134,20 per maand
- De grond is belast met erfpacht, de canon is tot 30-11-2034 afgekocht, de grondwaarde bedraagt € 6178,22
- Verwarming en warm water middels cv-combi ketel (bouwjaar 2018)
- De kozijnen zijn in 2023 geheel vernieuwd naar kunststof kozijnen met dubbel glas
- De keuken is in 2020 vernieuwd
- De woning beschikt over een aparte schuur in het portiek
- de woning is gelegen in een beschermd stadsgezicht
- gezien het bouwjaar van de woning zullen wij de materialen en ouderdom clausule opnemen in de koopovereenkomst
- oplevering in overleg