Comfortabel en duurzaam wonen in Maasland!
In een rustige, kindvriendelijke woonwijk in Maasland ligt deze goed onderhouden tussenwoning met energielabel A. De woning is gebouwd begin jaren ’90 en onderscheidt zich door een fijne indeling, meerdere dakkapellen, een moderne keuken en badkamer én een hoog niveau van isolatie. Een comfortabele gezinswoning op een prettige locatie in het groene Midden-Delfland.
Indeling
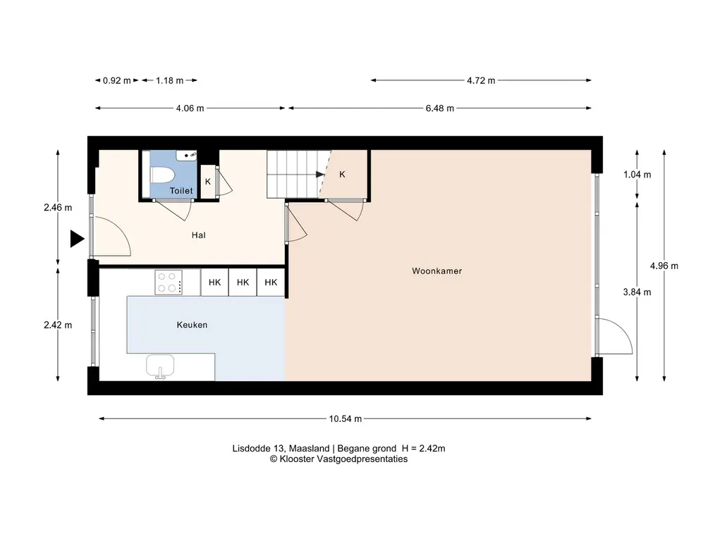
Begane grond
Via de entree kom je binnen in de ruime hal met toiletruimte, meterkast en trapopgang. Aan de voorzijde bevindt zich de moderne keuken, geplaatst in 2019 en uitgevoerd in een tijdloze en nette stijl. De keuken verkeert in zeer goede staat en is voorzien van diverse inbouwapparatuur.
De tuingerichte woonkamer is licht en ruim opgezet en biedt via de openslaande deur toegang tot de achtertuin.
Eerste verdieping
Op de eerste verdieping bevinden zich drie goed ingedeelde slaapkamers. De verdieping is voorzien van aan beide kanten een dakkapel. De badkamer is in 2001 vernieuwd en beschikt over een ligbad, douche, wastafel en een tweede toilet. Dankzij de praktische indeling is deze verdieping ideaal voor een gezin.
Tweede verdieping
De tweede verdieping is verrassend licht door de 4 velux dakramen. Hier bevindt zich een volwaardige vierde slaapkamer en extra bergruimte. Daarnaast is er een vliering aanwezig, ideaal voor opslag.
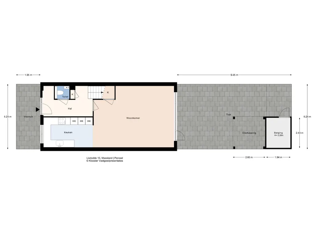
Buitenruimte
De achtertuin is onderhoudsvriendelijk aangelegd en biedt voldoende ruimte om te genieten van het buitenleven. Achterin de tuin staat een vrijstaande berging van circa 4,7 m², geschikt voor fietsen en opslag.
De achtertuin is gelegen op het zuid-westen en voorzien van een overkapping.
Kenmerken
- Bouwjaar: 1991
- Gebruiksoppervlakte wonen: ca. 118,7 m²
- Perceeloppervlakte: ca. 120 m²
- Inhoud: ca. 385 m³
- 4 slaapkamers
- Voorzien van dakkapellen
- Keuken uit 2019, in zeer goede staat
- Energielabel A
- Goed geïsoleerde woning (dak-, gevel- en vloerisolatie)
- CV-ketel (Remeha Avanta HR)
- 8 zonnepanelen (geplaatst in 2022)
- Achtertuin gelegen op het zuid-westen
- Vrijstaande berging
- Volledig eigendom
Maasland & Midden-Delfland
Maasland is een sfeervol en geliefd dorp binnen de gemeente Midden-Delfland. Je woont hier rustig en groen, met volop natuur in de directe omgeving, terwijl steden als Delft, Rotterdam en Den Haag uitstekend bereikbaar zijn. Het dorp beschikt over diverse voorzieningen zoals scholen, sportverenigingen en winkels. Een ideale woonomgeving voor wie landelijk wil wonen met stedelijke voorzieningen binnen handbereik.
Kadastrale gegevens
Gemeente: Maasland
Sectie: C
Perceelnummer: 2859
Perceelgrootte: 120 m²
Eigendom: Volle eigendom
Enthousiast geworden?
Maak dan snel een afspraak voor een bezichtiging en ervaar zelf het comfort en de ruimte van deze fijne woning aan de Lisdodde 13 in Maasland. Je bent van harte welkom!




















































