Wonen op een centrale locatie in Den Haag: Leyweg 525-C
Zoek je een fijn, ruim appartement met alle voorzieningen binnen handbereik? Ontdek dan deze ruime maisonnette aan de Leyweg 525-C. Gelegen in de groene en rustige wijk Morgenstond, biedt deze woning het comfort van een modern appartement én het praktische van twee woonlagen. Met drie slaapkamers, een lift én een verrassend lichte woonkamer, is dit de ideale plek voor jonge stellen die net samen hun leven willen opbouwen, maar zeker ook voor ouderen die waarde hechten aan gemak en bereikbaarheid.
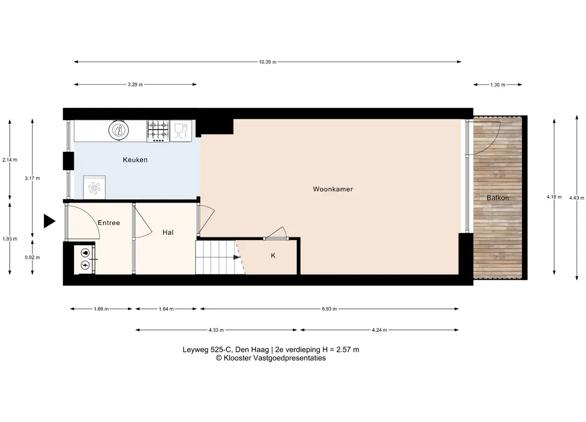
Indeling
Afgesloten portiek, trap en lift welke toegang geven tot de woonverdieping, entree woning hal v.v. meterkast (5 groepen) en garderobe nis, vanuit de hal met tussendeur toegang tot de ruime en gezellige woonkamer met trapkast en open keuken. De keuken is basic en wellicht iets gedateerd maar deze kan eenvoudig gewrapt worden. De keuken is v.v. 4 pits gas kookplaat, afzuigkap, koel-/vriescombinatie, vaatwasser en opstelplaats boiler (80L). De woonkamer is heerlijk licht en geeft toegang tot het zonnige balkon met zonnescherm (zon van opkomst tot +/- 16.30 uur). 2e verdieping: Overloop v.v. berging alwaar wasmachineaansluiting (bovenlader) zeer riante slaapkamer aan de achterzijde van de woning (over de gehele breedte) en twee prettige slaapkamers aan de voorzijde van de woning waarvan 1 met vaste kast. De badkamer is v.v. hoekbad, toilet, wastafelmeubel en handdoekradiator.
Bijzonderheden
- Type woning: galerijflat / maisonnette
- Woonoppervlak: ca 86 m2
- Bouwjaar: 1966
- De grond is belast met erfpacht, de canon bedraagt 100 euro per jaar en loopt in 2028 af (herziening is geruime tijd geleden aangevraagd en kan ieder moment ontvangen worden)
- De VvE is actief, de maandelijks bijdrage is € 291,- per maand incl. voorschot stookkosten, opstalverzekering en glazenwasser
- Verwarming middels blokverwarming
- Warm water middels boiler (80L huur)
- De woning beschikt over een eigen berging en parkeerplaats
- Uitgevoerde werkzaamheden: bovenverdieping + keukenraam vervangen kunststof met HR++ glas (april 2023), woonkamer achterzijde raam vervangen naar HR++ glas in bestaande houten kozijn (juni 2025)
Interesse? Kom vrijblijvend kijken!
Zie je de potentie en ben je benieuwd naar de sfeer? Neem gerust contact met ons op voor een bezichtiging. Proef zelf hoe fijn het voelt om in Morgenstond thuis te komen. Wij laten je graag alle mogelijkheden van deze ruime woning aan Leyweg 525-C ontdekken!

























































