Te huur: Horeca/Winkelruimte – Koestraat, Tilburg centrum
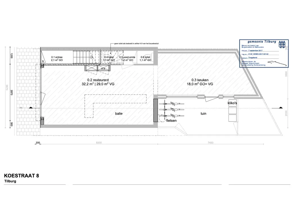
Aan de gezellige Koestraat, pal tegen het centrum van Tilburg, ligt deze zelf in te richten horeca- of winkelruimte. Een unieke kans voor ondernemers die hun eigen look & feel willen creëren. De begane grond beschikt over een vergunde bijeenkomst functie van ca. 55 m², en is geschikt voor onder andere een koffiezaak, lunchconcept, take - away, delicatessenwinkel of specialty store. De ruimte wordt casco opgeleverd en kan volledig naar wens worden afgewerkt.
Deze locatie biedt uitstekende zichtbaarheid richting straat en heeft een open plattegrond met veel daglicht, waardoor er volop flexibiliteit is in indelingsmogelijkheden. Sanitair en keukenruimte zijn reeds in de plattegrond voorzien, wat diverse horeca concepten faciliteert. Waar veel panden weinig vrijheid bieden, kunt u hier daadwerkelijk bouwen aan uw eigen merk en sfeer; of het nu gaat om een bakkerij met open keuken, een moderne koffiebar of een knusse buurtzaak.
De Koestraat is een centraal gelegen straat met winkels, horeca en een dagelijkse passanten stroom. Auto parkeren is direct voor de deur mogelijk en openbaar vervoer bevindt zich op loopafstand.
De huurprijs bedraagt € 1.450,- per maand exclusief btw, met een waarborgsom van drie maanden huur.
Heeft u interesse in deze ruimte en ziet u de mogelijkheden? Neem dan gerust contact met ons op voor een bezichtiging. Wij denken graag met u mee.











