Bent u op zoek naar een beknopte maar zeer betaalbare eengezinswoning, dan bent u hier aan het juiste adres!
Deze 3/4 kamer woning heeft een woonoppervlakte van 93,4 m2 en bevindt zich op een perceel met een oppervlakte van 96 m2. Het is vrij eenvoudig om een derde slaapkamer te realiseren. De woning is gebouwd in 1939, is goed onderhouden en is in 2020 geheel gerenoveerd opgeleverd.
Heerlijk wonen in Den Haag. Dat kan goed in deze buurt. De woning is gelegen in de buurt Moerwijk-Noord. Dit is een kindvriendelijke buurt met relatief veel gezinnen.
De woning is zeer goed bereikbaar met veel voorzieningen in de buurt. Op korte afstand met openbaar vervoer of fiets bevinden zich Treinstations Hollands Spoor, Station Moerwijk en het centrum van Den Haag. Winkelcentrum Leyweg en het Zuiderpark liggen vlakbij. Net als het strand van Scheveningen of het strand van Kijkduin. Zowel basis- en hogescholen bevinden zich in de buurt en op loopafstand bevindt zich een supermarkt. Daarnaast zijn de dichtstbijzijnde uitvalsweg in de nabije omgeving op slechts 7 minuten rijden.
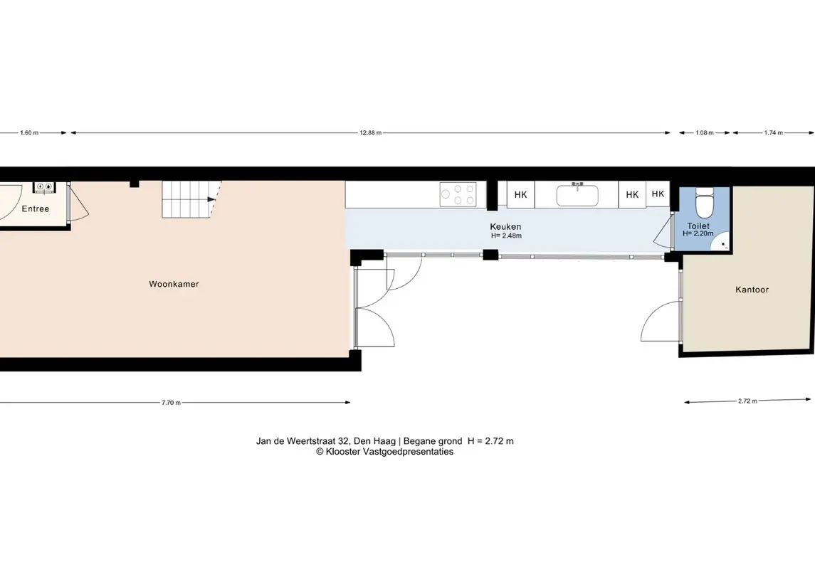
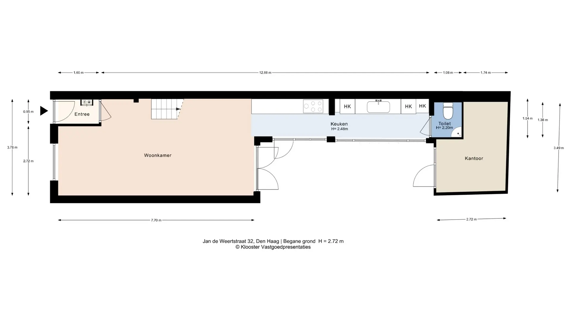
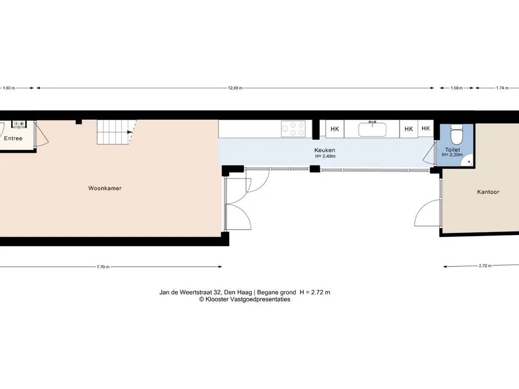
Indeling
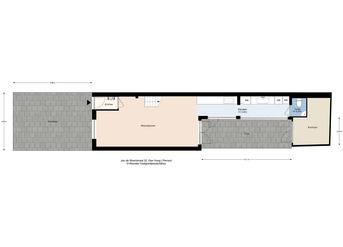
Middels ruime voortuin toegang tot de woning, hal met meterkast en voldoende ruimte voor een garderobe,
Via de deur met glasroedeverdeling bereikt men de zeer royale woon-en eetkamer met semi-open dubbele keuken aan de achterzijde. De keuken beschikt over inbouwapparatuur, waaronder een gaskookplaat met afzuigkap, vaatwasser, koelkast en een combi-oven/magnetron. Modern toilet, fonteintje en verwarming. Via dubbele openslaande deuren bereikt men de achtertuin. De achtertuin is gesitueerd op het noordwesten. Er is een stenen en verwarmde schuur aanwezig welke gebruikt is als kantoor aan huis.
Eerste verdieping:
Met een vaste trap bereik je de eerste verdieping. Overloop, ruime slaapkamer aan de voorzijde. De moderne badkamer is voorzien van een douche, wastafelmeubel en een tweede toilet.
Tweede verdieping:
Met een vaste trap bereik je de tweede verdieping. Ruime hoofdslaapkamer met dakkapellen aan beide zijde en aan de achterzijde openslaande deuren. Hier is eenvoudig aan dakterras te realiseren. Het is ook mogelijk om 2 aparte slaapkamers te realiseren op de tweede verdieping.
Bijzonderheden
- Bouwjaar 1939;
- GBO Wonen 85 m²;
- Gelegen erfpacht grond, jaarlijkse canon €202,-;
- Renovatie 2020;
- Energielabel D;
- CV-ketel (2017);
- Geheel voorzien van dubbel glas
- Instap klaar en goed onderhouden;
- Leuke, kindvriendelijke straat;
- Oplevering in overleg, kan snel.














































