Ben je op zoek naar een uniek en luxueus appartement waar sfeer, comfort én locatie samenkomen? Laat je dan verrassen door dit prachtige dubbele bovenhuis aan de Jacob Catsstraat 1-B, gelegen in het hart van Den Haag. Hier vind je niet zomaar een woning, maar een thuis dat werkelijk alles biedt voor stellen die houden van karakter met een modern tintje.
Het begint al bij binnenkomst. Zodra je de eerste stap over de drempel zet, proef je direct de historie van het pand uit 1850 – zonder in te leveren op hedendaags comfort of luxe. Ooit gebouwd in een tijd waarin vakmanschap en detaillering hoog in het vaandel stonden, is dit huis inmiddels voorzien van alle gemakken van nu. Zo heeft de bovenwoning zijn authentieke elementen behouden, waaronder de schitterende houten balken in de woonkamer, die niet alleen voor sfeer zorgen, maar ook een prachtig stijlstatement maken.
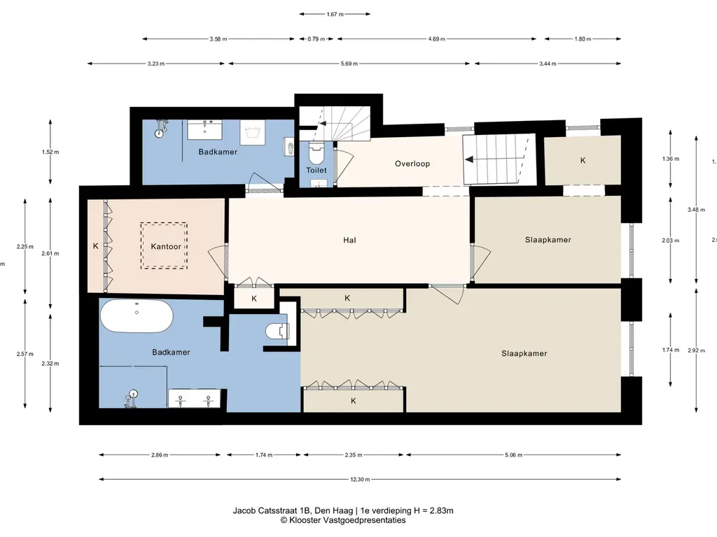
Indeling
De woning is toegankelijk via de begane grond, een hal met meterkast en een binnentrappenhuis naar de eerste verdieping. Op de overloop bevindt zich een ruime slaapkamer aan de voorzijde. De hoofdslaapkamer is aan de achterzijde gelegen en is zeer ruim, met veel opbergruimte, een inloopkast en een en-suite badkamer. De badkamer is voorzien van een dubbele douche, een ligbad, een dubbele wastafel en elektrische vloerverwarming. De aangrenzende kamer wordt momenteel gebruikt als studeerkamer/kantoor. De tweede badkamer is een absolute aanrader voor gasten en beschikt over een douche, wastafel, mechanische ventilatie, een aansluiting voor een wasmachine en een cv-ketel. Op de overloop bevindt zich een ruime inbouwkast. Een vaste trap leidt naar de tweede verdieping, die momenteel in gebruik is als woon-/eetkamer met een open keuken, toegang tot het ruime terras en de mezzanine. De woonkamer is ruim en de open keuken is uitgerust met een 4-pits inductiekookplaat, vaatwasser, oven, koelkast/vriezer en cv-ketel. De woon-/eetkamer geeft ook toegang tot het ruime en zonnige terras, dat is voorzien van een nieuwe composietvloer en een jacuzzi. De mezzanine is een welkome extra ruimte.
Bijzonderheden
- Type woning: Dubbel bovenhuis
- Woonoppervlakte: circa 130 m²
- Bouwjaar: 1850
- De Vereniging van Eigenaren (VvE) is actief, maandelijkse bijdrage € 47
- De woning is volledig voorzien van dubbel glas met houten kozijnen
- De woning is in 2017 volledig gerenoveerd
- Plat dak vervangen in 2018
- Terras voorzien van composietvloer in 2021
- Buitenrenovatie voltooid in 2024
- Riant dakterras mét jacuzzi voor ultieme ontspanning
- Moderne keuken en badkamer ensuite
- Ideaal gelegen in het hart van Den Haag
- Perfecte match voor stellen die kwaliteit en sfeer waarderen
Laat je hart sneller kloppen voor Jacob Catsstraat 1-B! Kom langs en proef de bijzondere sfeer van dit unieke appartement. Wie weet noem jij het binnenkort wel jouw thuis.
Jacob Catsstraat 1b The Hague:
Are you looking for a unique and luxurious apartment where ambiance, comfort, and location converge? Then be amazed by this beautiful double upper house at Jacob Catsstraat 1-B, located in the heart of The Hague. Here you'll find more than just a house, but a home that truly offers everything for couples who appreciate character with a modern touch.
It all begins upon entering. As soon as you step over the threshold, you'll immediately sense the history of the 1850 building—without compromising on contemporary comfort or luxury. Built in an era when craftsmanship and attention to detail were paramount, this house has been equipped with all the modern conveniences. The upper house has retained its authentic features, including the beautiful wooden beams in the living room, which not only add to the ambiance but also make a stunning style statement.
Layout:
The house is accessed via the ground floor, a hallway with the meter cupboard, and an internal staircase to the first floor. A spacious bedroom is located on the landing at the front of the house. The master bedroom is located at the rear of the house and is very spacious, with ample storage space, a walk-in closet, and an en-suite bathroom. It features a double shower (one of which is not working), a bathtub, double sinks, and electric underfloor heating. The adjacent room is currently used as a study/office. The second bathroom is highly recommended for guests and includes a shower, sink, mechanical ventilation, a washing machine connection, and a central heating boiler. A spacious built-in wardrobe is located on the landing. A staircase leads to the second floor, which is currently used as a living/dining room with an open-plan kitchen, access to the spacious terrace, and a mezzanine. The living room is spacious, and the open-plan kitchen is equipped with a 4-burner induction cooktop, dishwasher, oven, refrigerator/freezer, and central heating boiler. The living/dining room also provides access to the spacious and sunny terrace, which has a new composite floor and a jacuzzi. The mezzanine is a welcome additional space. Details:
- Property type: Semi-detached house
- Living area: approximately 130 m²
- Year built: 1850
- The Homeowners' Association (VvE) is active, monthly fee €47
- The house is fully double-glazed with wooden frames
- The house was completely renovated in 2017
- Flat roof replaced in 2018
- Terrace fitted with composite flooring in 2021
- Exterior renovation completed in 2024
- Spacious roof terrace with a jacuzzi for ultimate relaxation
- Modern kitchen and ensuite bathroom
- Ideally located in the heart of The Hague
- Perfect match for couples who appreciate quality and ambiance
Let your heart beat faster for Jacob Catsstraat 1-B! Come visit and experience the special atmosphere of this unique apartment. Who knows, you might soon call it your home.











































































