Instap-klaar, hoogwaardig afgewerkt, centrale locatie, smaakvol, 4 slaapkamers, volledig gerenoveerd, geweldig uitzicht en dit zijn nog maar enkele begrippen welke het gevoel zal omschrijven bij het binnentreden van dit fantastische appartement.
Het appartement is gelegen in de directe omgeving van winkelgebied Monnickendamplein en het verder gelegen winkelcentrum aan de Leyweg, speelvoorzieningen en openbaar vervoer. Het strand en de gezellige badplaats Kijkduin bevinden zich op ca. 15 fietsminuten afstand!
Kortom een heerlijk appartement welke absoluut een bezichtiging waard is!
Indeling
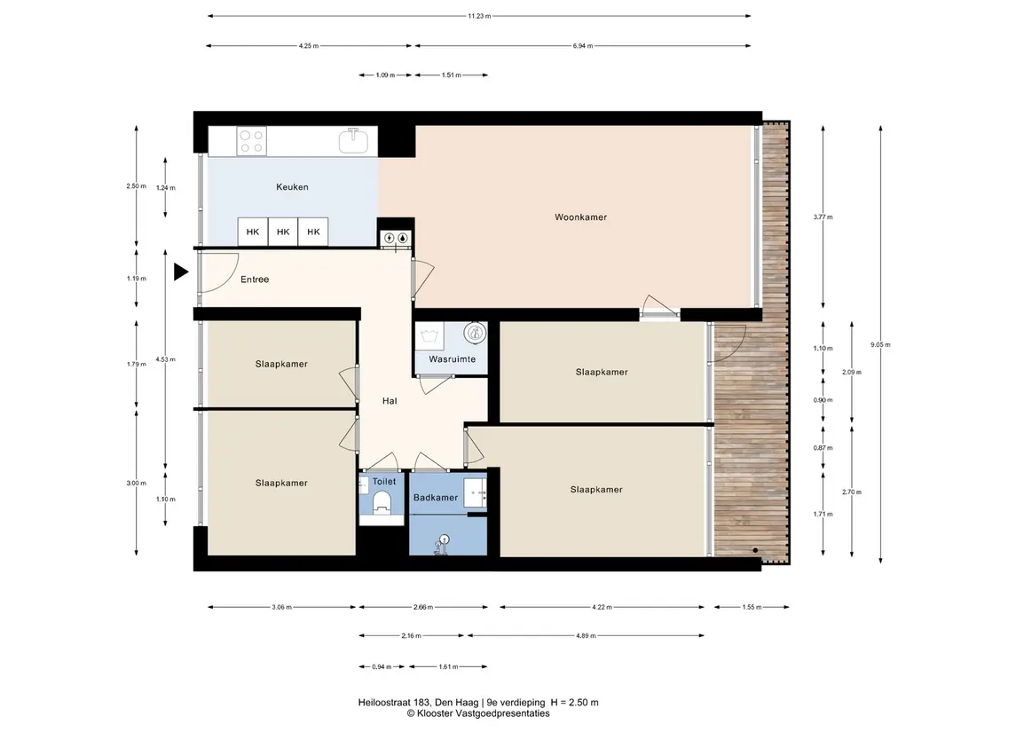
Op de 9e verdieping gelegen totaal gerenoveerd 5 kamer appartement met fenomenaal uitzicht. Afgesloten keurig onderhouden hoofdentree met elektronisch bedienbare deuren. Tussenhal met 3 liften. Galerij. Entree woning met tochthal, gang met meterkast, De eerst indruk is vaak de beste; een zeer frisse en ruime ontvangsthal met toegang tot alle vertrekken. De hal is v.v. meterkast en modern hangend toilet met fontein. De Taatsdeur naar de woonkamer toe geeft direct een moderne en industriële blik. De woonkamer is ruim opgezet en geeft toegang tot de naastgelegen ruimte welke u tal van mogelijkheden geeft waaronder: eetkamer, leeskamer, studeerkamer of wellicht een tv of speelkamer. De open keuken is zeer smaakvol opgezet en v.v. inductie kookplaat met geïntegreerd afzuigsysteem, vaatwasser, koel-/vriescombinatie en tijdens het koken een fenomenaal uitzicht over de skyline van Den Haag, hoe gaaf is dat! Aan de voorzijde treft u twee slaapkamer en aan de achterzijde ook nog een slaapkamer. De berging in de hal is v.v. boiler en opstelplaats wasmachine-/droger. De badkamer is prachtig afgewerkt en v.v. wastafelmeubel en ruime inloopdouche. De naastgelegen toilet is eveneens modern afgewerkt.
Bijzonderheden
- Type woning: galerijflat
- Woonoppervlak: ca. 94m2
- Actieve VVE met professionele bestuurder, voorschot bijdrage € 221,36 per maand (begroting 2024)
- Voorschotstookkosten € 143,97 per maand, (begroting 2024)
- Blokverwarming aan gesloten op stadsverwarming
- Boiler in eigendom van de verkoper.
- Gedeeltelijk dubbel glas
- Energielabel C geldig tot 17-02-2033
- Parkeren op eigen terrein met gemeentelijke vergunning voor tussen 18:00-00:00 uur
