Welkom in deze sfeervolle en karakteristieke vooroorlogse woning uit 1935. Gelegen in de geliefde wijk Putten, onderdeel van de Sintenbuurt, stadsdeel Stratum in Eindhoven.
Het is een kindvriendelijke buurt met veel groen in de omgeving en goede voorzieningen. Denk aan basisscholen in de nabije omgeving, supermarkt op korte afstand en het centrum van Eindhoven op fietsafstand.
De bereikbaarheid is uitstekend, uitvalswegen zijn eenvoudig te bereiken en openbaar vervoer is in de buurt aanwezig.
De woning biedt veel leefruimte, een ruime tuin en authentieke details die kenmerkend zijn voor de jaren ’30. Perfect voor gezinnen, thuiswerkers of iedereen die de levendigheid van de stad wil combineren met de rust en ruimte van een woonwijk.
Deze woning is geschikt voor:
Gezinnen die behoefte hebben aan meerdere slaapkamers en leefruimte.
Kopers die waarde hechten aan een karakteristieke woning met potentie om verder te moderniseren.
Mensen die graag bij het centrum van Eindhoven willen wonen doch dichtbij uitvalswegen.
Iedereen die ruimte en een fijne tuin belangrijk vindt.
Algemeen
Bouwjaar: 1935
Woonoppervlak: ongeveer 121 m²
Perceeloppervlak: ca. 214 m²
Inhoud: 621 m³
Energielabel: C
Indeling van de woning
Begane grond
U betreedt de woning via de hal met toilet, trapopgang en toegang tot de kelder. Vanuit de hal komt u in de royale woonkamer. Met aan de voorkant zicht op de Heezerweg en vanuit de achterkant kijkt u uit op de achtertuin.
De keuken is aan de achterzijde gelegen en beschikt over diverse inbouwapparatuur. De keuken is onder andere voorzien van een afzuigkap, een kookplaat en een vaatwasser.
Vanuit de keuken bereikt u de aangebouwde garage, met daarachter een werk- of hobbyruimte. Via een lift is de vliering van de garage bereikbaar voor extra opslag.
Eerste verdieping
Hier bevinden zich twee ruime slaapkamers en een derde kleinere kamer, ideaal als studeer- of babykamer.
De badkamer is compleet uitgerust met ligbad, wastafel, toilet en douche.
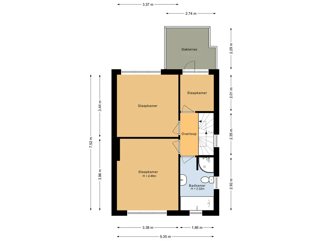
Zolder
De royale zolderverdieping biedt ruimte voor twee extra slaapkamers. Op de overloop bevindt zich de stookruimte met cv-installatie.
Bijzonderheden
-Karakteristieke vooroorlogse woning uit 1935
-Authentieke details die kenmerkend zijn voor de jaren ’30
-Potentie voor modernisering: aanpassingen in keuken, badkamer en afwerking kunnen de woning verder verbeteren
-Ruim woonoppervlak en perceel, veel leefruimte binnen en buiten
-Parkeergelegenheid: gratis aan de openbare weg aan de voorzijde van de woning, op de oprit en in de aangebouwde garage
-Eigen achterom
-Ruime aangebouwde garage en berging
-Voorzieningen in omgeving: winkels, scholen, openbaar vervoer, uitvalswegen en recreatie zijn allemaal dichtbij
-Kindvriendelijke omgeving
Ben je nieuwsgierig geworden? Neem dan snel contact op voor een bezichtiging om zelf de sfeer, indeling, afwerking en mogelijkheden van dit huis te ervaren.
Deze woning biedt je de kans om iets moois te creëren, kom kijken en laat je inspireren!














































