Ben je op zoek naar een appartement in het levendige centrum, met een ideale indeling, zonnig balkon en lekker vrij uitzicht? Dan wil je hier komen kijken! Geen zin om te koken? Je loopt de deur uit en je hebt tientallen sfeervolle restaurants met eten uit alle werelddelen om uit te kiezen. Einde werkdag nog even afsluiten met een drankje op het terras? Aan de overkant van de straat kun je al terecht! Je woont hier op een steenworp afstand van de Meent en de Binnenrotte. Als Feyenoord weer kampioen wordt kun jij live meegenieten van het gejuich op de Coolsingel. Hartje centrum dus...
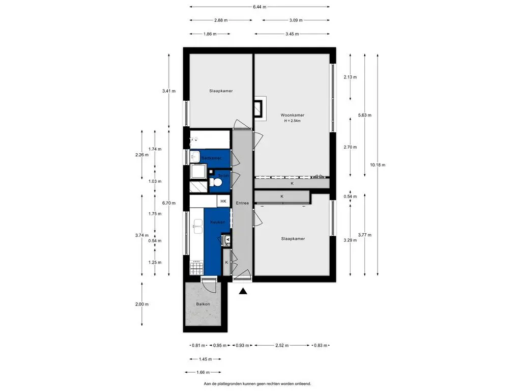
Heb je je eindelijk losgerukt van het stadse leven dan stap je jouw verzorgde portiek binnen. Je nieuwe appartement heeft een ideale indeling. De beide slaapkamers zijn lekker ruim en liggen ver uit elkaar; mocht er sprake zijn van een huisgenoot of kind dan is er wederzijds geen last van gesnurk of anderszins. De grootste slaapkamer heeft een flinke ingebouwde kledingkast. Deze kamer ligt rechts van de gang.
Links vind je de keurige keuken, in L-vormige opstelling. Van hieruit heb je tevens toegang tot het inpandig balkon dat ongeveer westelijk gelegen is en op mooie dagen aan het einde van de middag garant staat voor een heerlijke plek om zo midden in de stad toch even tot rust te komen. Het is niet groot, maar het is wel van jou!
Voorbij de keuken tref je het aparte toilet en de badkamer met ligbad. Je kunt er nog een tijdje mee vooruit maar een andere indeling en tegelkeuze zouden het jouw droombadkamer kunnen maken. It's up to you! Loop je nog iets verder door dan loop je de 2e slaapkamer binnen, met 2m88 x 3m41 nog steeds ruim bemeten. Ben je een lichte slaper dan is dit de plek voor jou vanwege de ligging aan de achterzijde aan het besloten Meenthof. Maar een lekker ruim kantoor aan huis zou het natuurlijk ook gewoon kunnen zijn.
Het klapstuk is de woonkamer. Op de uiterste hoek van het appartement gelegen heb je hier vanuit de grote raampartij uitzicht over de Goudsesingel (met veel groen) en zie je dagelijks de bedrijvigheid bij het leukste makelaarskantoor van Rotterdam. 's Avonds in het donker is het uitzicht zo mogelijk nog leuker. Tegen de zijmuur is een op maat gemaakte inbouwkast gebouwd. Laat hier jouw favoriete kleuren op los en je maakt er een echte eye-catcher van. Je krijgt van ons vast de kleurenwaaier mee om te dromen...
De woonkamer heeft een rechthoekige vorm waardoor een aparte eethoek (leuke ronde eettafel?) en knusse zithoek hier prima naast elkaar kunnen bestaan. Kom je kijken of je het voor je ziet?
Bijzonderheden:
- Grote berging (10 m2)
- Eigen grond
- Zonnig balkon
- 2 Ruime slaapkamers
- Hartje centrum
Je bent van harte welkom voor een bezichtiging!
Remko Schrijver
meer.Makelaar
