Verkaveling "De Bleeken": Laatste halfopen BEN nieuwbouwwoning, op een zeer centrale locatie te Retie.
Gelegen op wandelafstand van centrum Retie en Provinciaal Groendomein Prinsenpark.
Bovendien op enkele autominuten van de Europese school te Mol en de snelweg Eindhoven-Antwerpen (E34).
Dit unieke, ecologische project werd gebouwd naar een ontwerp van architectenbureau AIM en bestaat in totaal uit 5 circulaire nieuwbouwwoningen.
De basis is houtbouw, gecombineerd met een afwerking met CircuWallPanels en Equitone gevelpanelen.
Voor de gevels, daken en vloeren zijn uitsluitend ecologische materialen gebruikt, en het hout springt zowel binnen als buiten in het oog, met als resultaat een warm en eigentijds ontwerp.
Deze woningen zijn klaar voor de toekomst.
Geavanceerde technieken bij de isolatie, warmtepompen, zonnepanelen, etc. zorgen voor ene maximum E-peil van 30.
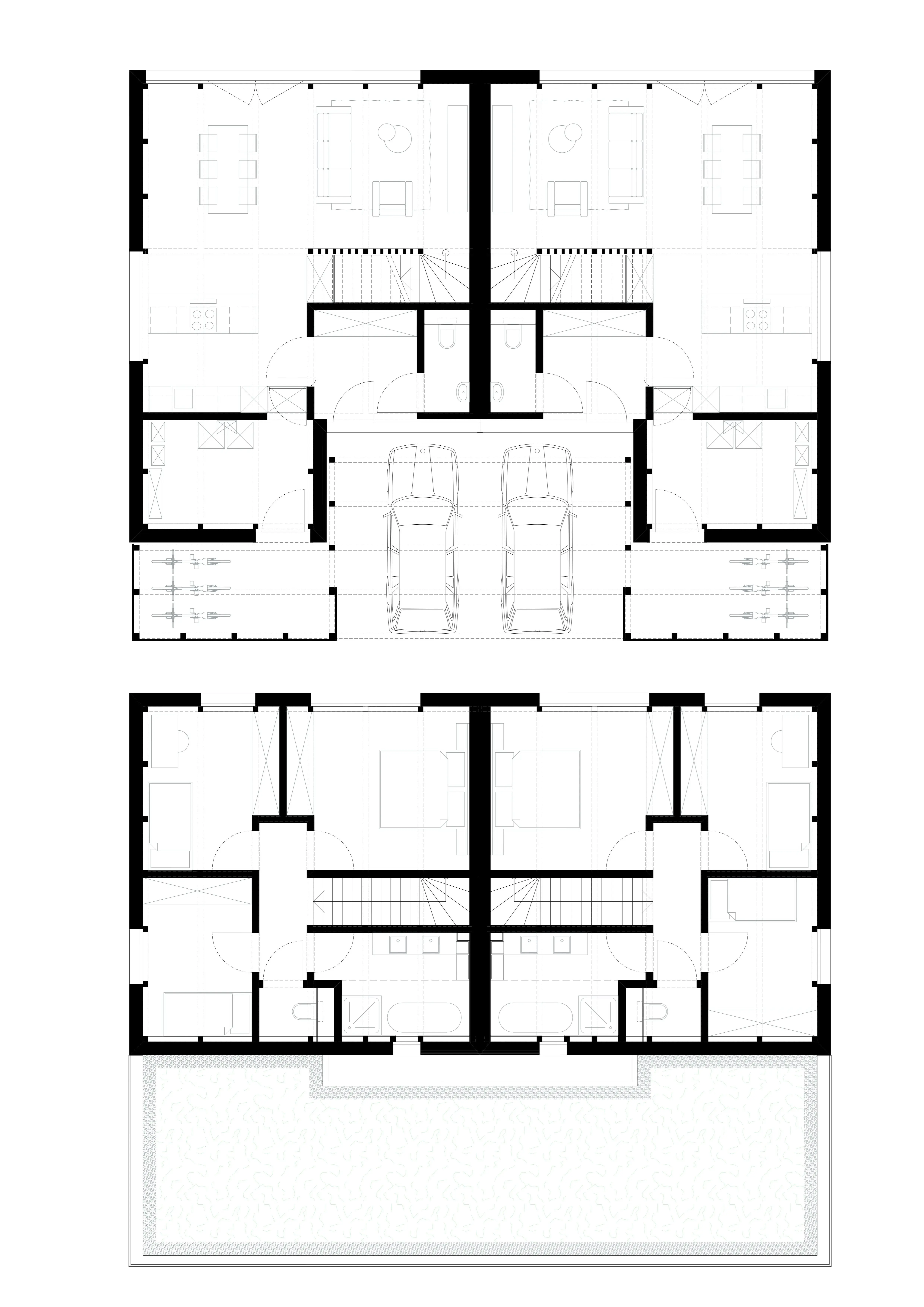
Indeling gelijkvloers:
U betreedt de woning via de inkomhal met vestiaire en gastentoilet.
Vervolgens stapt u binnen in de lichte en open leefruimte, waar moderne architectuur en natuurlijke (houten) elementen samenkomen.
De grote ramen zorgen voor een overvloed aan natuurlijk licht en creëren - in combinatie met de houten structuren - tegelijk een warme, uitnodigende sfeer.
Het hart van de woning is de woonkamer die naadloos overgaat in de moderne leefkeuken met aanpalende koele berging.
Deze keuken is volledig uitgerust met hoogwaardige inbouwapparatuur en een handig en ruim kookeiland.
De lichte leefruimte geeft bovendien toegang tot het zuidoost georiënteerde terras.
Dit is de ideale plek om vrienden en familie te ontvangen en te genieten van gezellige avonden.
Indeling verdieping:
De vaste houten trap brengt u naar de bovenverdieping.
Er is tevens een praktische berging onder deze trap.
De bovenverdieping beschikt over 3 volwaardige slaapkamers, elk ontworpen met oog voor stijl en comfort.
De stijlvolle doch functionele badkamer is voorzien van zowel douche als ligbad en een dubbele wastafel die voldoende ruimte biedt voor dagelijks routines.
Overal zijn duurzame, kwaliteitsvolle materialen gebruikt.
Er is tot slot nog een apart toilet in de nachthal.
Buitengebeuren:
Aan de voorzijde is er private parkeergelegenheid, waarvan één overdekte plaats.
Fietsen en containers stalt u uit het zicht in daarvoor voorziene buitenberging.
De fraai aangelegde, private tuinen zijn voorzien van een groot zonneterras, omheind en georiënteerd op het zuidoosten.

















