Welkom aan de Ganzerikstraat 46 in Bergen op Zoom! Deze keurig afgewerkte en verrassend ruime hoekwoning van het type drive-in woning, biedt alles wat je zoekt: ruimte, comfort en een gunstige ligging.
Bekijk de Virtual Tour onder het kopje video op onze website voor een digitale rondleiding door de woning.
Gelegen in een rustige en kindvriendelijke woonomgeving, op korte afstand van scholen, het stadscentrum én uitvalswegen, is dit het ideale huis voor gezinnen, thuiswerkers of (her)starters.
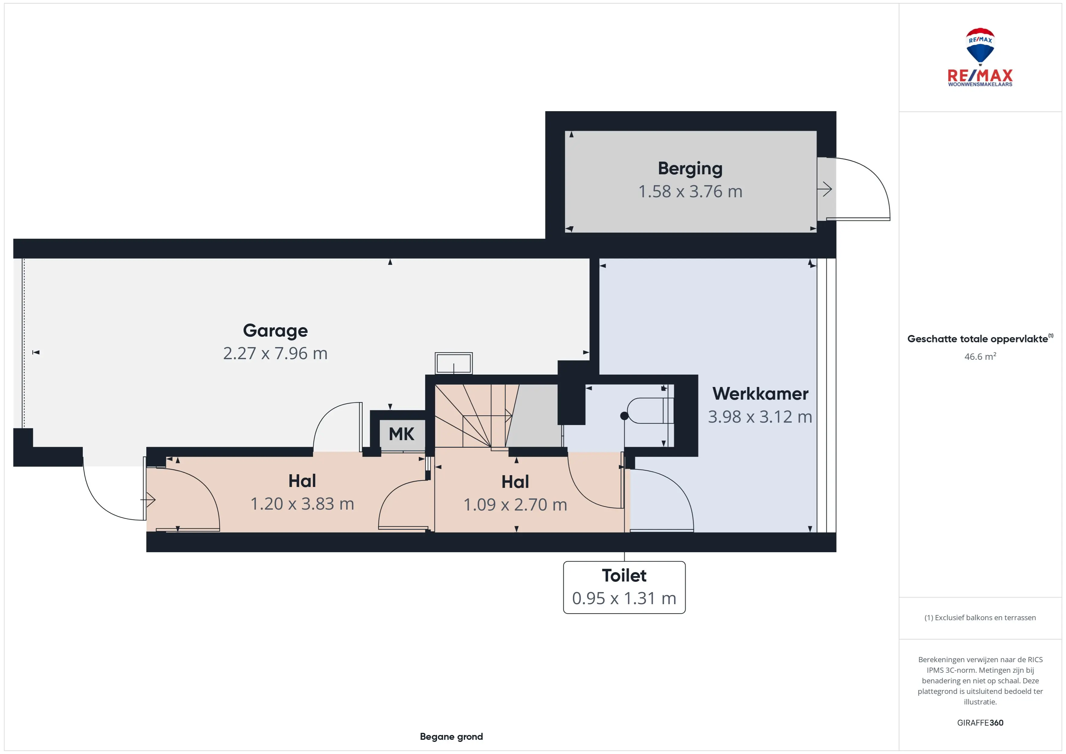
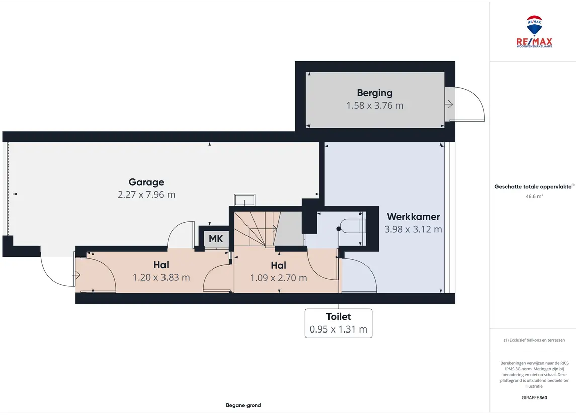
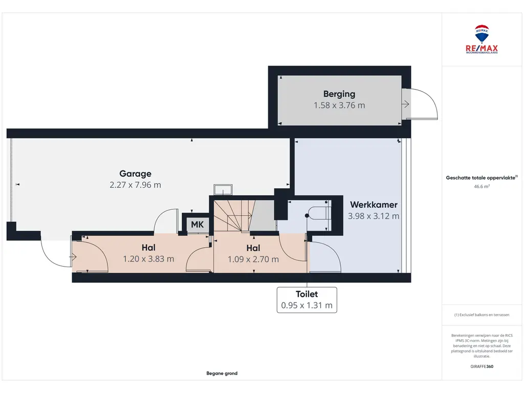
Begane grond
Bij binnenkomst in de hal bevinden zich hier de meterkast, toegang tot de inpandige garage/berging en via de gang het toilet en een slaap-/werkkamer. De verwarmde garage is multifunctioneel inzetbaar en beschikt ook over aansluitingen voor wasapparatuur. De kamer op de begane grond is momenteel ingericht als bijkeuken/opslag, echter kan ook ideaal als logeerkamer, werkkamer of hobbyruimte fungeren.
1e verdieping
De sfeervolle woonkamer aan de voorzijde is afgewerkt met een plavuizen vloer en dankzij de grote raampartijen is er volop natuurlijk daglicht. Hier creëer je met gemak een gezellige zithoek, los van de keuken. Ook is er in de hoek van de kamer een gezellige speelruimte voor de kinderen te creëren of een eventuele werkplek. De keurige, afgesloten keuken is van alle gemakken voorzien: een 5-pits gaskookplaat, afzuigkap, combimagnetron, vaatwasser, koelkast en volop kastruimte. Er is ook voldoende plek voor een gezellige eethoek, waardoor je echt van een woonkeuken kunt spreken. Via de keuken heb je toegang tot het zonnige balkon aan de achterzijde van de woning. Met een paar treden ben je ook in de achtertuin.
2e verdieping
Op de overloop bevindt zich een lichtkoepel en twee handige inbouwkasten, waarvan één met de opstelplaats van de Cv-ketel. Er bevinden zich twee slaapkamers aan de voorzijde, beide met een nette laminaatvloer. De ruime slaapkamer aan de achterzijde biedt volop ruimte voor een 2-persoonsbed en kast. De badkamer is compleet uitgerust met een inloopdouche, toilet, wastafelmeubel en designradiator. Een lichtkoepel én een raam zorgen voor aangenaam daglicht.
Tuin
De achtertuin is onderhoudsvriendelijk ingericht met strak straatwerk, kunstgras en enkele borders met beplanting. Dankzij de ligging is hier altijd wel een fijn plekje in de zon te vinden. Liever wat hoger zitten? Het balkon biedt een heerlijke uitwijkmogelijkheid. Ook is er een prachtige overkapping om de schaduw op te kunnen zoeken of soms wat meer uit de wind te kunnen zitten. De tuin is ofwel via de achterpoort te bereiken of via een trap vanaf het balkon van de eerste verdieping.
Vanuit de achtertuin is er ook nog toegang tot de aangebouwde berging en via de straat is er een afgesloten ruimte voor bijvoorbeeld de containers.
Algemeen
- Dakbedekking vervangen in 2019
- Vrijwel geheel voorzien van kunststof kozijnen (excl. voordeur en deur naar garage)
- Gedeeltelijk rolluiken
- Gedeeltelijk screens
- Zonnescherm aan de achterzijde
Ben jij op zoek naar een instapklare en speelse woning met veel ruimte en een praktische indeling? Dan is de Ganzerikstraat 46 in Bergen op Zoom zeker een bezichtiging waard!






















































