Omschrijving:
Vrijstaande levensloopbestendige bungalow aan het water – rust, ruimte en comfort!
Op zoek naar comfort, privacy en wonen aan het water? Deze vrijstaande bungalow met garage en eigen oprit biedt het allemaal – en meer! Gelegen op een rustige, groene locatie aan doorgaand vaarwater, is dit de ideale plek voor wie gelijkvloers wil wonen zonder in te leveren op ruimte en vrijheid.
Deze levensloopbestendige woning beschikt over een ruime slaapkamer én een moderne badkamer op de begane grond – ideaal voor wie graag alles binnen handbereik wil hebben. De lichte tuingerichte woonkamer met uitzicht op het water geeft een oase aan rust en ruimte.
Indeling
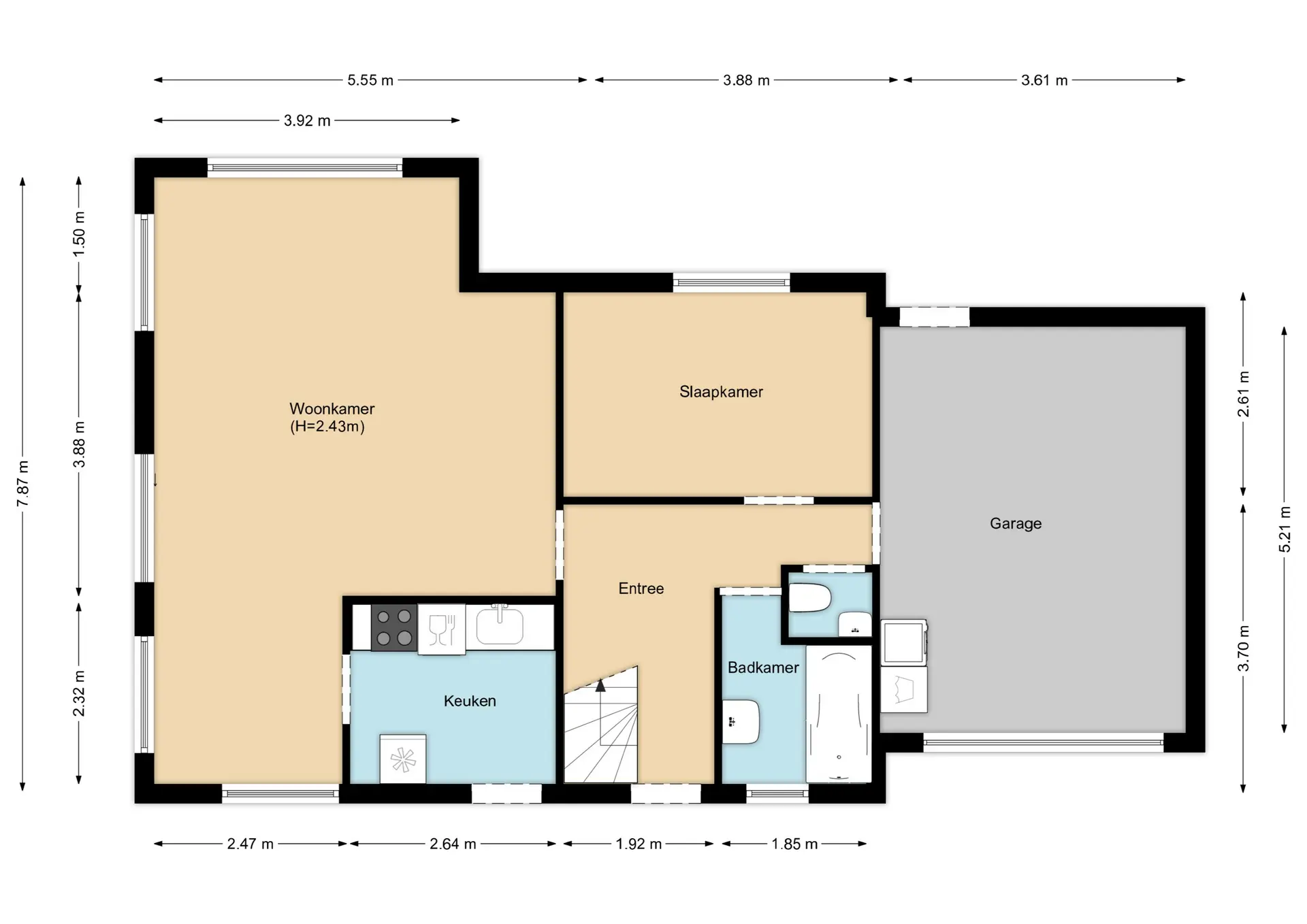
Begane grond
Entree/hal, meterkast, trapopgang naar de eerste verdieping, toegang tot de woonkamer, tevens bereikt u via de hal de badkamer met ligbad en een royale slaapkamer ideaal voor diegene die gelijkvloers wil wonen. De woonkamer is heerlijk ruim en licht doormiddel van de grote raampartijen en via de kunststof schuifpui stapt u de fraai aangelegde tuin in. De fijne keuken is netjes uitgevoerd en voorzien van diverse apparatuur.
Eerste etage
Via de vaste trap komt u op de eerste etage hier treffen we een tweetal slaapkamers en de tweede badkamer, welke voorzien is van een inloopdouche met stoomcabine en toilet.
Tuin
Evenals de gehele woning is ook de tuin keurig en verzorgd aangelegd. Door de grote raampartijen en de schuifpui heeft een heerlijke connectie met de tuin door de divers aangelegde vlonderpartijen is het hier goed toeven en kunt u lekker aan het water genieten van de ondergaande zon, of nog beter lekker met de boot erop uit het geheel is immers gelegen aan doorgaand vaarwater.
Bent u net zo enthousiast over deze woning? Bel voor een afspraak dan begeleid ik u persoonlijk rond.
Bijzonderheden:
• levensloop bestendig wonen
• Doorgaand vaarwater
• Garage, eigen parkeergelegenheid
• Kunststof kozijnen
• Ruim perceel
• Nabij Ijsselmeer
