MODERNE DRIVE-IN-WONING MET PANORAMISCH UITZICHT OVER DE DONGEVALLEI
Ben je op zoek naar een verrassende gezinswoning met een speelse indeling, veel licht en een adembenemend vrij uitzicht? Dan zal deze moderne drive-in-woning in de Reeshof je direct aanspreken. Dankzij de split-level-opzet, het hoge afwerkingsniveau en de volledig glazen achtergevel is dit huis absoluut uniek in zijn soort. Hier woon je eigentijds, comfortabel en in direct contact met de natuur – midden in een rustige, kindvriendelijke woonomgeving.
Binnenkomst
Via de voordeur stap je de ruime hal binnen, waar meteen de moderne uitstraling van de woning opvalt. Vanuit hier heb je toegang tot het trappenhuis én enkele treden omlaag naar het souterrainniveau.
Begane grond (souterrainniveau)
Op dit niveau bevindt zich een praktische hal met toiletruimte, de grote garage met witgoedaansluitingen en toegang tot een verrassend ruime slaapkamer. Deze kamer is heerlijk licht, kijkt uit op de serre en beschikt over een eigen badkamer met douche en wastafelmeubel. Ideaal als logeer- of werkkamer, of juist als zelfstandige werkruimte of atelier aan huis. Achter de slaapkamer bevindt zich nog een royale bergruimte, gelegen onder de serre.
Eerste verdieping
Een fraaie open houten trap brengt je naar de ruime living, waar het licht direct alle aandacht trekt. De volledig glazen achtergevel zorgt niet alleen voor een schitterend uitzicht over de Dongevallei, maar laat ook de hele verdieping baden in daglicht. De woonkamer is voorzien van een airco en heeft een vide met doorkijk naar de serre beneden – wat het gevoel van ruimte nog eens versterkt.
De serre, enkele treden lager gelegen, vormt een prachtig verlengstuk van de living. Met het hoge plafond, de glazen wanden en het uitzicht over de vallei is dit een inspirerende plek voor een zitruimte, atelier of muziekkamer.
Via de serre loop je zo de zonnige tuin in.
Aan de voorzijde van de woning bevindt zich de open keuken. Deze is voorzien van een lang werkblad met spoelbak, diverse kastruimte en moderne inbouwapparatuur, waaronder een inductie kookplaat, afzuigkap, combi-oven, vaatwasser en koelkast met vriesruimte. Hier is voldoende plek voor een grote eettafel, perfect voor lange diners met familie of vrienden.
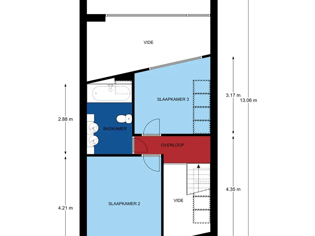
Tweede verdieping
Via het statige trappenhuis met lichtkoepel bereik je de bovenste verdieping. De overloop geeft toegang tot twee goed bemeten slaapkamers, beide voorzien van een nette laminaatvloer en grote raampartijen. De moderne badkamer is geheel betegeld en uitgerust met douche, dubbele wastafel met meubel, toilet en spiegel met verlichting. Ook hier zorgt een lichtkoepel voor extra veel daglicht.
Buitenleven
De achtertuin ligt op het zonnige zuidwesten en is grotendeels onderhoudsvriendelijk aangelegd met siertegels. Door de ligging direct aan de Dongevallei geniet je hier van een weids uitzicht, rust en privacy. Het vrije zicht over het natuurgebied – waar regelmatig Schotse Hooglanders grazen – maakt het buitenleven hier echt bijzonder.
Omgeving
De woning ligt in een rustig straatje zonder doorgaand verkeer, achter de Bijsterveldenlaan. De wijk is kindvriendelijk en groen opgezet, met het Reeshofpark op slechts 100 meter afstand. Winkels, scholen, kinderopvang, sportvoorzieningen en openbaar vervoer zijn allemaal in de directe nabijheid te vinden. Ook de bereikbaarheid is uitstekend: via de uitvalswegen sta je in korte tijd in Breda, ’s-Hertogenbosch, Eindhoven, Rotterdam of Antwerpen.
Bijzonderheden:
- Moderne drive-in-woning met speelse split-level-indeling
- Drie slaapkamers en twee badkamers
- Grote serre met panoramisch uitzicht
- Volledig glazen achtergevel, veel licht en ruimte
- Tuin op het zuidwesten, grenzend aan natuurgebied
- Verwarming via stadsverwarming
- Uitstekend geïsoleerd en zeer veilig ontworpen
- Bouwjaar 1998
Kortom: een woning die je echt gezien moet hebben om het unieke karakter en het uitzicht te ervaren. Laat je verrassen door het licht, de ruimte en de bijzondere indeling – maak snel een afspraak voor een bezichtiging!
BOD UITBRENGEN
Heb je de woning bezichtigd en wil je een bod uitbrengen? Via jouw persoonlijke online account kun je dit eenvoudig en veilig doen. Ons biedingsportaal helpt je stap voor stap bij het opstellen van een doordacht bod. Alleen de verkoper en RE/MAX Optimus Makelaars hebben inzicht in jouw bod; andere geïnteresseerden kunnen dit niet zien. Conform de wetgeving die geldt sinds 1 januari 2023 worden alle biedingen pas ná de definitieve verkoop inzichtelijk gemaakt voor de overige bieders.
VERKOOP VAN JE EIGEN WONING
Wil je een nieuw huis kopen, maar moet je je huidige woning nog verkopen? RE/MAX Optimus Makelaars komt graag vrijblijvend bij je langs voor een gratis waardebepaling. Tijdens een persoonlijk gesprek geven we je inzicht in de marktwaarde en vertellen we hoe wij je woning optimaal kunnen presenteren. Zo weet je precies waar je aan toe bent.
BELANGRIJKE INFORMATIE
NEN2580 Meetinstructie
Voor het bepalen van de gebruiksoppervlakte hanteren wij de NEN2580-meetinstructie. Deze richtlijn zorgt voor meer duidelijkheid en uniformiteit, maar kleine verschillen kunnen altijd ontstaan, bijvoorbeeld door interpretatie of afronding.
Koopovereenkomst pas geldig na ondertekening
Een mondeling akkoord tussen koper en verkoper is juridisch niet bindend. Pas wanneer beide partijen de koopovereenkomst hebben ondertekend, is er sprake van een rechtsgeldige koop. Dit is vastgelegd in artikel 7:2 van het Burgerlijk Wetboek. Een conceptovereenkomst of bevestiging per e-mail geldt dus niet als officieel contract.
Disclaimer
De informatie over deze woning is zorgvuldig samengesteld. Toch kan RE/MAX Optimus Makelaars b.v. geen aansprakelijkheid aanvaarden voor eventuele onjuistheden of onvolledigheden. De gegevens zijn bedoeld als uitnodiging tot het doen van een bod of het starten van onderhandelingen, en vormen geen bindend aanbod.


































