Sfeervol wonen achter een karakteristieke gevel uit 1887
Achter de sierlijke en rijk gedetailleerde gevel uit 1887 gaat een verrassend lichte en moderne benedenwoning schuil, mét energielabel A. De woning is recent gerenoveerd en uitgebouwd met een prachtige lichtstraat waardoor de woonruimte baadt in het daglicht. Het resultaat is een fijne combinatie van historische charme en hedendaags wooncomfort, midden in een van de meest gewilde buurten van Rotterdam.
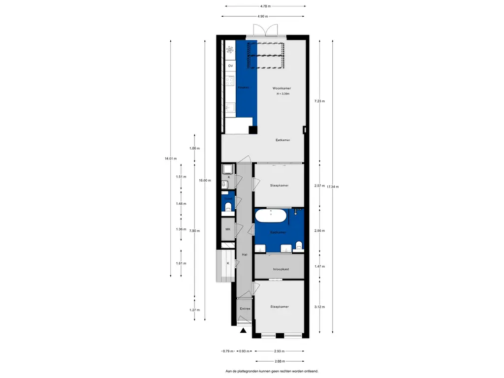
De woon-/eetkamer met open keuken vormt echt het hart van het huis. Dankzij de uitbouw van ruim 20 m², de lichtstraat en de openslaande deuren is dit een plek waar binnen en buiten naadloos in elkaar overlopen. De moderne keuken met bar nodigt uit tot lange avonden koken en tafelen. Aan de voorzijde ligt een kamer ensuite, nu ingericht als werk-/studeerkamer, die met stoere stalen schuifdeuren afsluitbaar is.
De tuin als verlengstuk van je woonkamer; de tuin van circa 15 meter diep voelt als een eigen groene oase. Direct achter de woonkeuken ligt een groot terras, perfect om de eerste zonnestralen mee te pakken of met vrienden te borrelen. Iets lager ligt een ruim terras dat vele mogelijkheden biedt en achterin een sfeervolle overkapping waar plek is voor een buitenkeuken en barbecue. Hier geniet je het hele jaar door van een fijne buitenruimte midden in de stad.
De badkamer mag met recht een blikvanger genoemd worden: modern, stijlvol en royaal opgezet. Met een ligbad, inloopdouche, tweede toilet, dubbele wastafels met spiegelkasten en een handdoekradiator voelt dit meer als een spa dan een standaard badkamer. Een plek om echt tot rust te komen.
De hoofdslaapkamer aan de voorzijde is ruim opgezet en beschikt over airconditioning, een walk-through-closet én directe toegang tot de badkamer.
Dit appartement ligt op de grens van het Liskwartier en het Oude Noorden, twee geliefde wijken die bekendstaan om hun groene singels, creatieve ondernemers en levendige sfeer. Om de hoek liggen de Bergsingel en Noordsingel, perfect voor een wandeling. Het Hofbogenviaduct – straks het langste dakpark van Nederland – wordt hier een groene stadsboulevard met ruimte om te wandelen, te ontspannen en te sporten. In de buurt vind je leuke koffiebars, restaurants, sportfaciliteiten en de wekelijkse oogstmarkt op het Noordplein. En voor de dagelijkse boodschappen zijn meerdere supermarkten lopend bereikbaar. Met nog geen 10 minuten wandelen ben je op Rotterdam Centraal en ook de uitvalswegen A20 en A13 liggen dichtbij. Nóg dichterbij... op 1 minuut lopen vind je op het Eudokiaplein o.a. de AH, Praxis en Kruidvat. Alles om de hoek!
Begane grond:
Entree in tochtportaal, hal met toegang tot alle vertrekken
Trapkast, meterkast, toilet met fonteintje, berging met aansluiting voor wasapparatuur en cv-ketel
Ruime woon-/eetkamer met open keuken, uitbouw (ca. 20 m²), lichtstraat en openslaande deuren naar de tuin
Moderne keuken met inbouwapparatuur en bar
Kamer en-suite, thans in gebruik als werk-/studeerkamer, afsluitbaar met stalen schuifdeuren
Hoofdslaapkamer aan de voorzijde met airconditioning, walk-in-closet en badkamer ensuite
Luxe badkamer met ligbad, inloopdouche, tweede toilet, dubbele wastafels met spiegelkasten en handdoekradiator
Tuin:
Ca. 15 meter diep, verdeeld in drie niveaus:
Verhoogd terras direct achter de woonkeuken
Lagergelegen terras met borders
Achterin een sfeervolle houten overkapping, ingericht als buitenkeuken
Bijzonderheden
Bouwjaar: 1887
Gelegen op eigen grond
Actieve VvE met gezonde reserve
Voorzien van dubbele beglazing
Verwarming en warm water via cv-combiketel
Energielabel A
Remko Schrijver
meer.Makelaar






























