Maak kennis met deze charmante benedenwoning in een mooi stukje Rotterdam! Gelegen in het rustige en schilderachtige Kleiwegkwartier, biedt dit huis een perfecte combo van historische charme en modern comfort. Gebouwd in 1933 en vakkundig gerenoveerd tot aan hedendaagse normen, dit appartement is klaar om je een comfortabel en warm thuis te bieden.
De locatie zorgt voor een ideale combinatie van rustige woonomgeving en stedelijke gemakken. In een rustige wijk van Rotterdam kun je een ontspannen leven leiden, weg van de drukte van de stad, terwijl je nog steeds dicht bij alles bent wat je nodig hebt. Dit is een geweldige kans om je te vestigen in een dromerige woonwijk die steeds populairder wordt bij gezinnen.
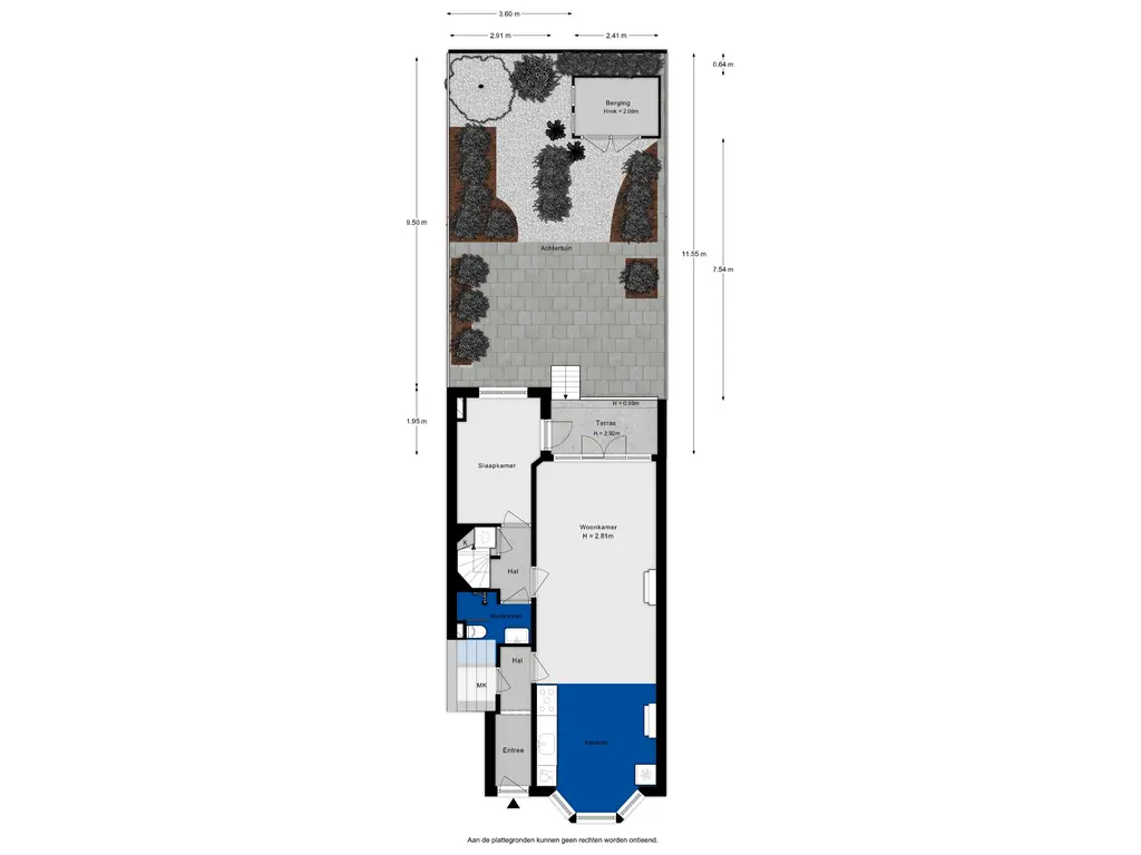
Dit appartement is afgewerkt met een scherp oog voor detail en functionaliteit. Het beschikt over een woonoppervlakte van 66 vierkante meter, ingedeeld in 3 sfeervolle kamers, met twee slaapkamers. De goede isolatie zorgt voor comfort in alle seizoenen en draagt bij aan de energiezuinigheid van het huis, wat wordt bevestigd door het energielabel.
Bij binnenkomst op de begane grond word je verwelkomd door een gezellige woonkamer en een ruime functionele keuken. Het natuurlijke licht dat door het grote raam valt, verbetert het ruimtelijk gevoel van de etage, terwijl de authentieke details en afwerkingen extra karakter toevoegen.
De slaapkamers en de badkamer op deze verdieping bieden comfortabele privéruimtes voor ontspanning. De badkamer is voorzien van moderne voorzieningen zoals een inloopdouche en een net en praktisch wastafelmeubel.
De buitenruimte is de echte traktatie, met een goed onderhouden tuin op het zuiden. Het is een ideale plek om te ontspannen na een lange dag, om te genieten van een gezellige barbecue, of om het perfecte decor voor een weekend brunch onder de zon te bieden.
Voor je auto is er voldoende parkeergelegenheid, met betaald parkeren of parkeervergunningen beschikbaar. Een extra pluspunt is de vrijstaande berging, perfect voor extra opslag of als werkruimte voor doe-het-zelvers.
Bijzonderheden van deze woning omvatten:
- Ligging in het rustige Kleiwegkwartier
- Zonnige tuin op het zuiden, keurig aangelegd
- Totale woonoppervlakte van 66 m²
Overweeg je je volgende stap in de vastgoedmarkt te zetten, dan is dit zeker een bezoek waard. Dit is je kans om een stukje Rotterdamse historie te bezitten, aangepast aan moderne woonstandaarden. Wacht niet te lang en bel vandaag nog voor een bezichtiging! Je bent van harte welkom!
Remko Schrijver
meer.Makelaar
